Active

$1,150,000

Características:
  • Quartos
  • 0 Banheiros
  • 386 m²
Visão Geral
  • ID: MFRO6388463
  • Quartos:
  • Banheiros: 0
  • Tamanho: 386 m²
Detalhes do Imóvel
Observações
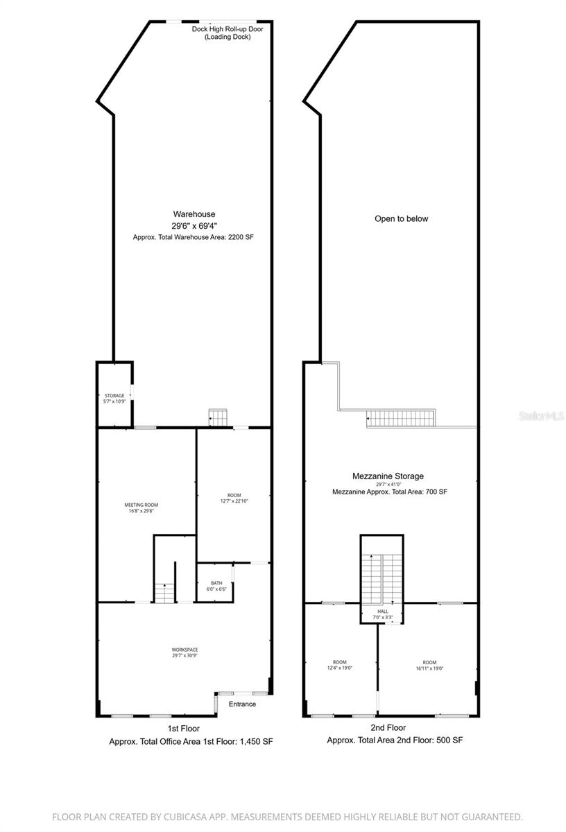
Localizada no Drewtina Commerce Center no Crownpointe Commerce Park, no coração de Orlando, esta unidade de condomínio comercial bem conservada oferece um ambiente profissional e funcional para uma variedade de usos comerciais. Construído em 2006, o edifício apresenta uma elegante fachada em travertino italiano, janelas grandes que proporcionam luz natural abundante, amplo estacionamento e áreas de carga convenientes. Esta unidade consiste em aproximadamente 1.950 SF de espaço de escritório, 2.000 SF de área de armazém e 650 SF de armazenamento em mezanino, proporcionando um layout versátil de espaço flexível adequado para escritórios, distribuição, showroom ou operações industriais leves. A propriedade inclui uma porta de enrolar na parte traseira, permitindo carga e descarga eficiente e acomodando reboques de trator de tamanho normal. Uma excelente oportunidade tanto para proprietários-utilizadores como para investidores que procuram um condomínio industrial/escritório bem localizado. O vendedor exigirá um arrendamento de até 3 meses a US$ 8.000/mês para realocar as operações a partir do dia do fechamento.
Considerações Financeiras
Preço:
$1,150,000
Taxa de HOA:
N/D
Valor do Imposto:
$14926.16
Preço por m²:
$244.68
Descrição Legal do Imposto:
CONDOMÍNIO CENTRO COMERCIAL DREWTINA 7618/4825 UNIDADE 3 BLDG A
Características Exteriores
Tamanho do Lote:
4158
Características do Lote:
N/D
Beira-mar:
Não
Vagas de Estacionamento:
N/D
Estacionamento:
N/D
Telhado:
N/D
Piscina:
Não
Características da Piscina:
N/D
Características Interiores
Quartos:
Banheiros:
0
Aquecimento:
N/D
Resfriamento:
Somente escritório
Eletrodomésticos:
N/D
Mobiliado:
Não
Andar:
N/D
Níveis:
N/D
Características Adicionais
Subtipo de Imóvel:
Industrial
Estilo:
N/D
Ano de Construção:
2006
Tipo de Construção:
Incline as paredes
Vagas na Garagem:
Não
Vagas Cobertas:
N/D
Orientação da Fachada:
N/D
Animais Permitidos:
Não
Condição Especial:
Nenhum
Características Adicionais:
N/D
Características Adicionais 2:
N/D
Mapa
  • Endereço
    6881 KINGSPOINTE PKWY #3
Fale com um profissional
Por Que Nos Escolher?
  • Comunicação e Transparência
  • Negociação Qualificada
  • Rede Profissional Robusta
  • Suporte Pós-Venda
Propriedades em Destaque

Imóveis relacionados

avt
Daniel Dourado
$ 1,025,000
avt
Daniel Dourado
$ 650,000
avt
Daniel Dourado
$ 1,899,000
avt
Daniel Dourado
$ 925,000
avt
Daniel Dourado
$ 207,000
avt
Daniel Dourado
$ 2,300,000
img
  • Featured
  • Active
Industrial

2524 ORANGE BLOSSOM TRL NW

  • 0
  • 44 m²
avt
Daniel Dourado
$ 1,500,000
avt
Daniel Dourado
$ 790,000
img
  • Featured
  • Active
Industrial

Warehouse JARDINES CAROLINA, ROSENDO VELA ACOSTA ST. #6A & 6B

  • 0
  • 0 m²
avt
Daniel Dourado
$ 4,500,000
avt
Daniel Dourado
$ 2,693,480
avt
Daniel Dourado
$ 1,174,750
avt
Daniel Dourado
$ 2,100,000