Active

$1,700,000

Características:
  • Quartos
  • 0 Banheiros
  • 1233 m²
Visão Geral
  • ID: MFRTB8340388
  • Quartos:
  • Banheiros: 0
  • Tamanho: 1233 m²
Detalhes do Imóvel
Observações
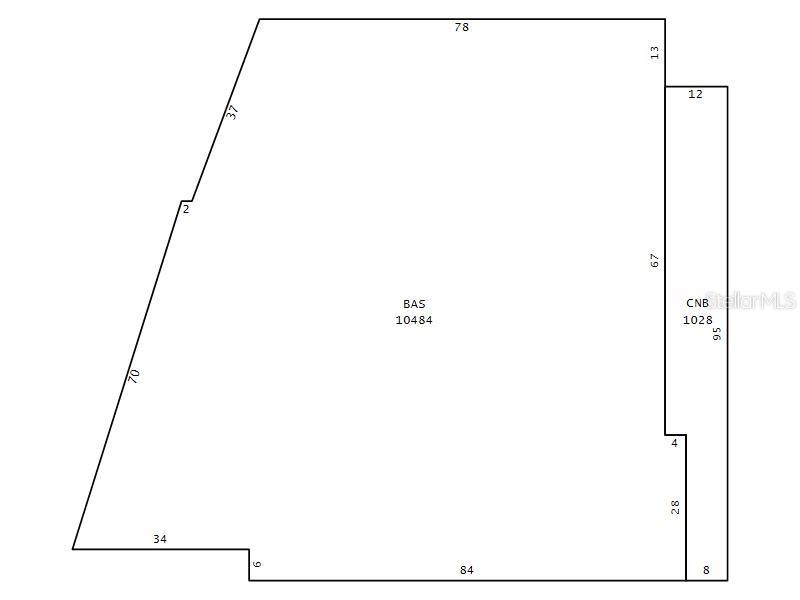
O Florida Commercial Group apresenta propriedade industrial para venda! Aqui está um local perfeito para empresas de armazém, fabricação, industrial leve ou distribuição. O edifício 1 é um edifício de concreto de 11.521 +/- SF com um teto de metal composto por espaço de armazenamento e espaço para entregas de caminhões semi e grandes. Há também uma porta de carregamento que fica na 12th Street. A altura clara do edifício é de 20 '. O edifício 2 é 1.760 +/- SF, é um bloco de concreto, com tetos de 20 ', dois acionadores em portas de louro e pisos de concreto. A propriedade também é totalmente cercada. O espaço desses edifícios permite muito espaço para armazenamento vertical de estoque ou entregas de material/ produto de alto volume e fabricação/ montagem. Os edifícios ficam logo abaixo de um hectare (0,80 acres) e oferecem visibilidade direta da Busch Blvd. Esta é uma ótima oportunidade para um investidor buscar uma oportunidade de possuir/ usar uma propriedade industrial. Também há muito estacionamento no local. Ligue hoje para uma exibição.
Considerações Financeiras
Preço:
$1,700,000
Taxa de HOA:
N/D
Valor do Imposto:
$13462.3
Preço por m²:
$128
Descrição Legal do Imposto:
TERRAÇO LARANJA LOTES 1 2 3 20 21 E 22 E VIA FECHADA ENTRE OS DITO LOTES E LOTES 18 E 19 E W 1/2 DA VIA FECHADA CONTINENTE AO BLOCO 5 LOTES 1 E 22 SUJEITOS A SERVIÇO DE RR
Características Exteriores
Tamanho do Lote:
35039
Características do Lote:
N/D
Beira-mar:
Não
Vagas de Estacionamento:
N/D
Estacionamento:
Comum, Seguro
Telhado:
Metal
Piscina:
Não
Características da Piscina:
N/D
Características Interiores
Quartos:
Banheiros:
0
Aquecimento:
N/D
Resfriamento:
Nenhum
Eletrodomésticos:
N/D
Mobiliado:
Não
Andar:
Concreto
Níveis:
N/D
Características Adicionais
Subtipo de Imóvel:
Industrial
Estilo:
N/D
Ano de Construção:
1950
Tipo de Construção:
Bloquear
Vagas na Garagem:
Não
Vagas Cobertas:
N/D
Orientação da Fachada:
N/D
Animais Permitidos:
Não
Condição Especial:
Nenhum
Características Adicionais:
N/D
Características Adicionais 2:
N/D
Mapa
  • Endereço
    8911 N 12TH ST
Fale com um profissional
Por Que Nos Escolher?
  • Comunicação e Transparência
  • Negociação Qualificada
  • Rede Profissional Robusta
  • Suporte Pós-Venda
Propriedades em Destaque

Imóveis relacionados

avt
Daniel Dourado
$ 216,000
img
  • Featured
  • Active
Industrial

Carr #2 km KM 56.3 BO. TRINIDAD AVE #1

  • 0
  • 0 m²
avt
Daniel Dourado
$ 600,000
avt
Daniel Dourado
$ 214,530
avt
Daniel Dourado
$ 685,000
avt
Daniel Dourado
$ 2,500,000
avt
Daniel Dourado
$ 358,800
avt
Daniel Dourado
$ 750,000
avt
Daniel Dourado
$ 397,500
avt
Daniel Dourado
$ 399,000
avt
Daniel Dourado
$ 265,900
avt
Daniel Dourado
$ 1,900,000
avt
Daniel Dourado
$ 2,980,000