Active

$999,000

Características:
  • Quartos
  • 0 Banheiros
  • 0 m²
Visão Geral
  • ID: MFRT3444299
  • Quartos:
  • Banheiros: 0
  • Tamanho: 0 m²
Detalhes do Imóvel
Observações
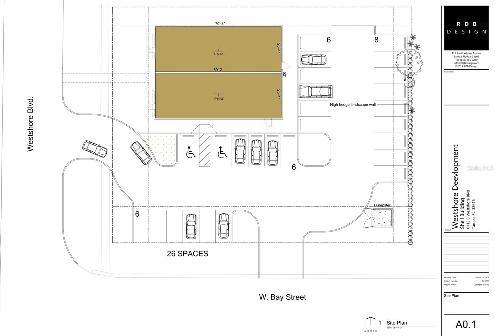
Pré-Construção. A ser construído. Este raro local de varejo / comercial de 1/2 acres possui 130 pés de fachada no West Shore Boulevard e é uma das poucas parcelas comerciais aprovadas perto do distrito de Marina, altamente procurado e está em frente ao complexo da WCI no Westshore Yacht Club. Com uma mudança demográfica tão rápida, desenvolvimento multifamiliar de alta densidade ao sul e residencial de alta qualidade do outro lado da rua, este site é adequado para um usuário de varejo ou escritório que deseja tirar proveito de uma audiência quase em cativeiro como um destino de varanda da frente para residências de clubes de iate no oeste e rio principal, levando o norte em direção ao gandy boulevard. O proprietário do imóvel investiu pesadamente em desenhos de viabilidade e arquitetura com aprovações finais do plano de PD / local para construir um edifício de 3.156 SF com drive-thru aprovado. Há também um plano conceitual do local para um local maior de faixa de varejo / escritório de 3.675 sf sem os espaços de estacionamento planejados e 26 planejados, dando a este site o potencial de uso médico, que requer 6 espaços por 1.000 sf de estacionamento, embora essa mudança provavelmente resulte em uma modificação de zoneamento. Localizado ao sul de Gandy Boulevard, I-275, e perto do muito procurado distrito de Marina e diretamente em frente ao complexo WCI no Westshore Yacht Club. Venda: US $ 999.000 Também disponível para locação
Considerações Financeiras
Preço:
$999,000
Taxa de HOA:
N/D
Valor do Imposto:
$3455.81
Preço por m²:
$316.54
Descrição Legal do Imposto:
Gandy Gardens 3 lote 11 e W 24,25 pés do lote 12 Bloco 21
Características Exteriores
Tamanho do Lote:
11440
Características do Lote:
N/D
Beira-mar:
Não
Vagas de Estacionamento:
N/D
Estacionamento:
N/D
Telhado:
N/D
Piscina:
Não
Características da Piscina:
N/D
Características Interiores
Quartos:
Banheiros:
0
Aquecimento:
N/D
Resfriamento:
Central Aérea
Eletrodomésticos:
N/D
Mobiliado:
Não
Andar:
N/D
Níveis:
N/D
Características Adicionais
Subtipo de Imóvel:
Varejo
Estilo:
N/D
Ano de Construção:
2024
Tipo de Construção:
Bloquear
Vagas na Garagem:
Não
Vagas Cobertas:
N/D
Orientação da Fachada:
N/D
Animais Permitidos:
Não
Condição Especial:
Nenhum
Características Adicionais:
N/D
Características Adicionais 2:
N/D
Mapa
  • Endereço
    6112 S WEST SHORE BLVD
Fale com um profissional
Por Que Nos Escolher?
  • Comunicação e Transparência
  • Negociação Qualificada
  • Rede Profissional Robusta
  • Suporte Pós-Venda
Propriedades em Destaque

Imóveis relacionados

avt
Daniel Dourado
$ 895,000
avt
Daniel Dourado
$ 5,500,000
img
  • Featured
  • Active
Retail

1423 E BRANDON BLVD

  • 0
  • 929 m²
avt
Daniel Dourado
$ 325,000
avt
Daniel Dourado
$ 499,900
avt
Daniel Dourado
$ 2,887,500
avt
Daniel Dourado
$ 590,000
avt
Daniel Dourado
$ 1,600,000
img
  • Featured
  • Active
Retail

3075 BOBCAT VILLAGE CENTER RD

  • 0
  • 256 m²
avt
Daniel Dourado
$ 600,000
avt
Daniel Dourado
$ 390,000
avt
Daniel Dourado
$ 827,400
img
  • Featured
  • Active
Retail

3603 KENILWORTH BLVD

  • 0
  • 109 m²
avt
Daniel Dourado
$ 200,000
avt
Daniel Dourado
$ 230,000