Sold

$325,000

Características:
  • Quartos
  • 0 Banheiros
  • 185 m²
Visão Geral
  • ID: MFRO6301770
  • Quartos:
  • Banheiros: 0
  • Tamanho: 185 m²
Detalhes do Imóvel
Observações
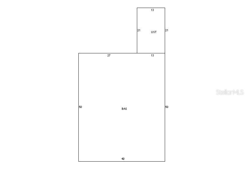
O 437 West Kennedy Boulevard é um investimento de loja de conveniência arrendada pela principal rede no distrito comercial do atacado C-3 de alta visibilidade de Orlando. Situado em um lote de 5.652 pés quadrados, o edifício sólido de blocos foi originalmente construído em 1972 (reformado em 1983) e oferece aproximadamente 2.273 pés quadrados de espaço de varejo-incluindo uma sala de trás versátil que apresenta uma oportunidade de sublocação fácil para renda adicional. O atual arrendamento de cinco anos da NNN, que começou em março de 2024 e vai até março de 2029 (com uma opção de renovação de cinco anos com redução de 10% dos aumentos anuais), oferece fluxo de caixa estável e protegido pela inflação: US $ 21.600 nos anos 1 e US $ 22.680 anualmente em 2 a 5 As responsabilidades dos inquilinos cobrem serviços públicos, manutenção e reparos, impostos imobiliários e seguros, enquanto o proprietário permanece responsável pelo telhado e quatro paredes estruturais externas. Poading durável, piso de azulejos de cortiça de nível comercial, resfriamento central com aquecimento elétrico de ar forçado e interiores de drywall mantidos profissionalmente ressaltam o perfil de propriedade de baixo custo, e a propriedade está dentro da zona de inundação X para um risco mínimo de inundação. Com o valor do bairro subindo quase 7% nos últimos dois anos e uma vantagem imediata por meio de ajustes de aluguel com taxa de mercado, esse ativo com preços competitivos é uma excelente oportunidade para os investidores que buscam renda passiva e crescimento a longo prazo em um dos corredores de varejo mais dinâmicos de Orlando.
Considerações Financeiras
Preço:
$325,000
Taxa de HOA:
N/D
Valor do Imposto:
$3133
Preço por m²:
$138.58
Descrição Legal do Imposto:
Lake Lovely Estates Sub R/121 Lotes 186 e 187 Blk B (menos S 10 pés)
Características Exteriores
Tamanho do Lote:
5652
Características do Lote:
N/D
Beira-mar:
Não
Vagas de Estacionamento:
N/D
Estacionamento:
N/D
Telhado:
N/D
Piscina:
Não
Características da Piscina:
N/D
Características Interiores
Quartos:
Banheiros:
0
Aquecimento:
N/D
Resfriamento:
Central Aérea
Eletrodomésticos:
N/D
Mobiliado:
Não
Andar:
N/D
Níveis:
N/D
Características Adicionais
Subtipo de Imóvel:
Varejo
Estilo:
N/D
Ano de Construção:
1972
Tipo de Construção:
Bloquear
Vagas na Garagem:
Não
Vagas Cobertas:
N/D
Orientação da Fachada:
N/D
Animais Permitidos:
Não
Condição Especial:
Nenhum
Características Adicionais:
N/D
Características Adicionais 2:
N/D
Mapa
  • Endereço
    437 W KENNEDY BLVD
Fale com um profissional
Por Que Nos Escolher?
  • Comunicação e Transparência
  • Negociação Qualificada
  • Rede Profissional Robusta
  • Suporte Pós-Venda
Propriedades em Destaque

Imóveis relacionados

avt
Daniel Dourado
$ 1,799,000
img
  • Featured
  • Active
Retail

400-484 STATE ROAD 436

  • 0
  • 5641 m²
avt
Daniel Dourado
$ 12,000,000
avt
Daniel Dourado
$ 745,000
avt
Daniel Dourado
$ 625,000
avt
Daniel Dourado
$ 1,550,000
avt
Daniel Dourado
$ 1,500,000
img
  • Featured
  • Active
Retail

15 LUIS MUÑOZ RIVERA AVE

  • 0
  • 0 m²
avt
Daniel Dourado
$ 200,000
img
  • Featured
  • Active
Retail

1122 LAKE DR #A-H

  • 0
  • 494 m²
avt
Daniel Dourado
$ 699,000
avt
Daniel Dourado
$ 799,000
avt
Daniel Dourado
$ 2,750,000
avt
Daniel Dourado
$ 1,500,000
avt
Daniel Dourado
$ 246,658