Active

$250,000

Características:
  • Quartos
  • 0 Banheiros
  • 0 m²
Visão Geral
  • ID: MFRW7869963
  • Quartos:
  • Banheiros: 0
  • Tamanho: 0 m²
Detalhes do Imóvel
Observações
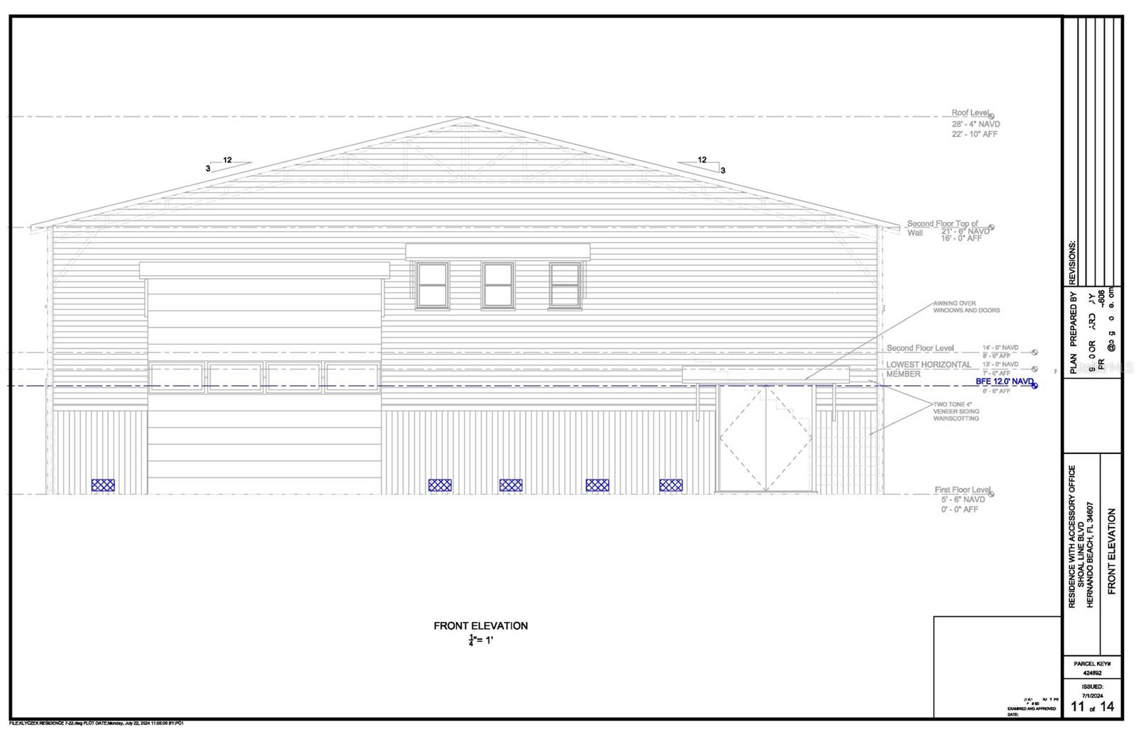
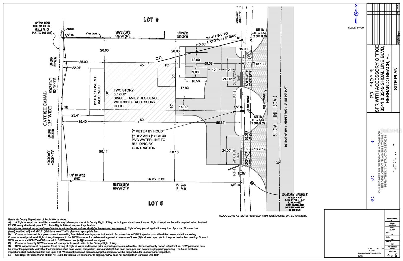
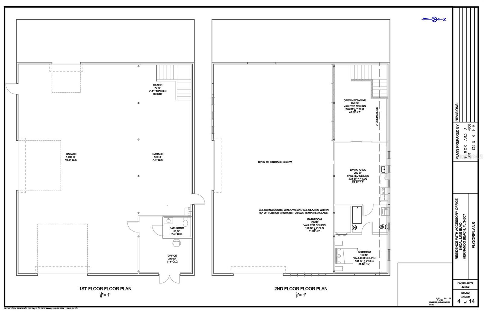
Pré-construção. Para ser construído. TRABALHE E DIVIRTA-SE na bela Hernando Beach, FL. Este lote duplo (0,42 acres) está zoneado C2 oferecendo inúmeras possibilidades! O preço de tabela é APENAS para o terreno baldio, mas os proprietários estão abertos à criatividade e considerariam construir para você. Muito poucos lotes em Hernando Beach têm esta designação de zoneamento flexível! Conserto de barcos, oficina de soldagem, loja de suprimentos marítimos, loja de iscas, varejo, Bed & Breakfast, triplex, você escolhe! O canal largo e profundo oferece acesso indireto ao Golfo. Esta propriedade única foi avaliada para VENDER. O proprietário estava planejando construir uma unidade residencial/de trabalho composta por um armazém de 3.000 m² com uma unidade residencial de 900 m² no 2º andar para um quarto, banheiro/lavanderia, cozinha e sala grande. Os planos específicos do local estão EM MÃO e podem ser negociados com a propriedade se você estiver interessado. Ao construir no canal, você deve atender aos requisitos do Southwest Florida Water Management (SWFWMD) e aos regulamentos da FEMA. Os planos concluídos foram preparados por um engenheiro civil local e atendem a todos os requisitos do SWFWMD e da FEMA, incluindo escoamento de água, proporção de pavimento para espaço verde, requisitos de estacionamento, etc. ) algumas flexibilidades são uma grande vantagem, por exemplo - como uma propriedade residencial, você pode ser seu próprio empreiteiro, apropriar-se da propriedade para obter impostos sobre a propriedade mais baixos, evitar requisitos para deficientes físicos e sprinklers contra incêndio normalmente necessários para construções comerciais. O imóvel já possui endereço 3341 e 3345 Shoal Line - Um endereço Comercial e outro Residencial. Você não receberá um endereço para um terreno baldio até que tenha concluído os planos de construção e os envie junto com sua solicitação de endereço. O pacote de construção completo está pronto para ser submetido à revisão do condado de Hernando para aprovação se esses planos específicos do local forem do seu interesse.
Considerações Financeiras
Preço:
$250,000
Taxa de HOA:
N/D
Valor do Imposto:
$2076
Preço por m²:
$65.1
Descrição Legal do Imposto:
HERNANDO BEACH UNIDADE 14 BLK 131 LOTES 7 E 8
Características Exteriores
Tamanho do Lote:
18120
Características do Lote:
N/D
Beira-mar:
Sim
Vagas de Estacionamento:
N/D
Estacionamento:
N/D
Telhado:
N/D
Piscina:
Não
Características da Piscina:
N/D
Características Interiores
Quartos:
Banheiros:
0
Aquecimento:
N/D
Resfriamento:
Unidade(s) Mini-Split
Eletrodomésticos:
N/D
Mobiliado:
Não
Andar:
N/D
Níveis:
N/D
Características Adicionais
Subtipo de Imóvel:
Uso Misto
Estilo:
N/D
Ano de Construção:
2025
Tipo de Construção:
Tapume metálico
Vagas na Garagem:
Não
Vagas Cobertas:
N/D
Orientação da Fachada:
Leste
Animais Permitidos:
Não
Condição Especial:
Nenhum
Características Adicionais:
N/D
Características Adicionais 2:
N/D
Mapa
  • Endereço
    3345 SHOAL LINE BLVD
Fale com um profissional
Por Que Nos Escolher?
  • Comunicação e Transparência
  • Negociação Qualificada
  • Rede Profissional Robusta
  • Suporte Pós-Venda
Propriedades em Destaque

Imóveis relacionados

avt
Daniel Dourado
$ 250,000
avt
Daniel Dourado
$ 625,000
avt
Daniel Dourado
$ 625,000
avt
Daniel Dourado
$ 599,800
avt
Daniel Dourado
$ 569,000
avt
Daniel Dourado
$ 1,500,000
img
  • Featured
  • Active
Mixed Use

2115 PALM BAY RD NE #2E

  • 0
  • 102 m²
avt
Daniel Dourado
$ 250,000
avt
Daniel Dourado
$ 2,200,000
avt
Daniel Dourado
$ 275,000
img
  • Featured
  • Active
Mixed Use

25415 NE STATE ROAD 26

  • 0
  • 130 m²
avt
Daniel Dourado
$ 330,000