Active

$228,990

Features:
  • 3 Bedrooms
  • 3 Bathrooms
  • 1463 sq ft
Overview
  • ID: MFROM693037
  • Bedrooms: 3
  • Bathrooms: 3
  • Size: 1463 sq ft
Property Details
Remarks
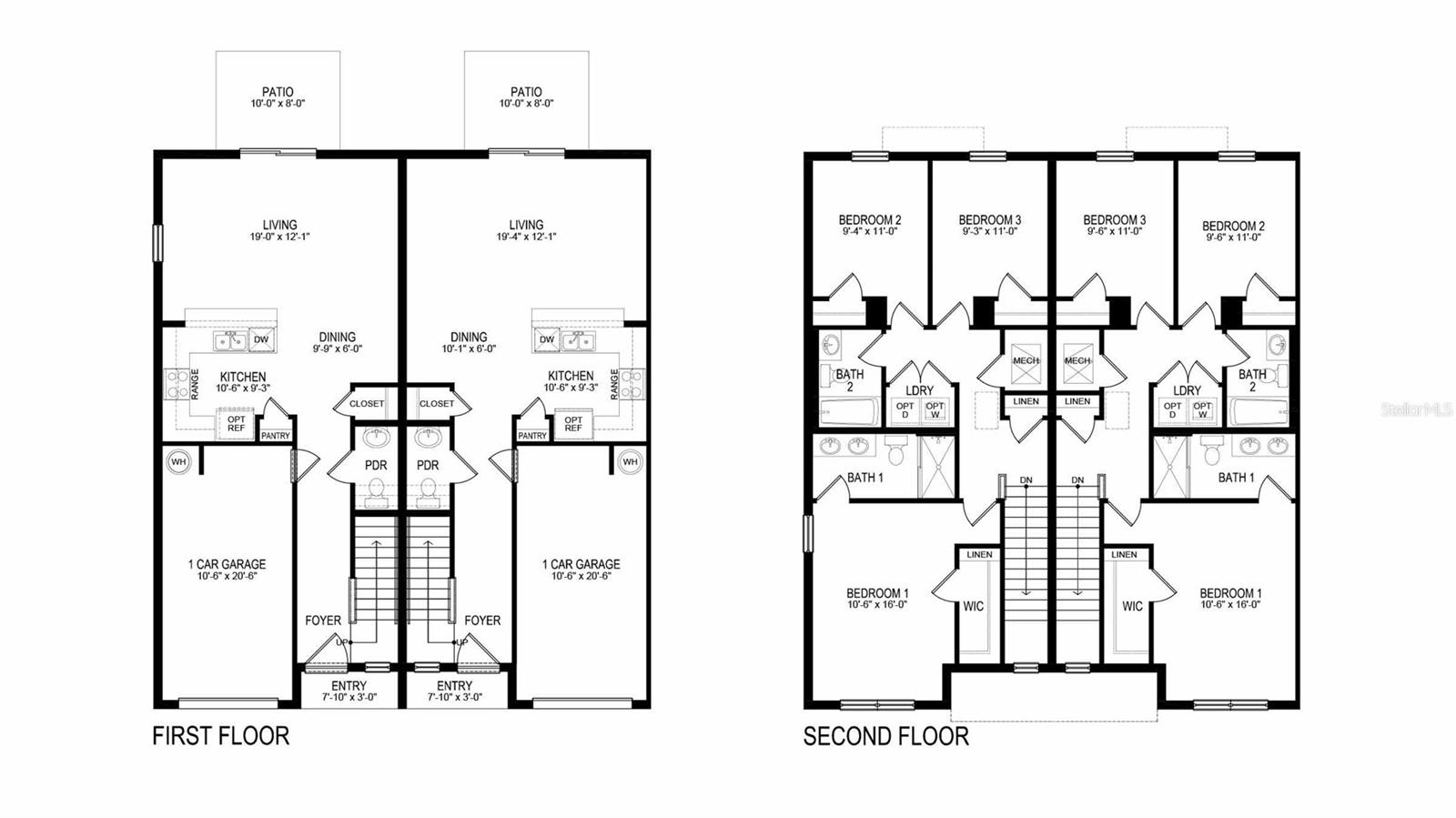
Under Construction. This two-story townhome has an open concept downstairs layout that includes a large open kitchen, a powder room, and spacious family room that overlooks a patio. The second floor includes a spacious Primary Suite with an ensuite bathroom, two additional bedrooms, a 2nd full bathroom, and a laundry area. This home comes with all appliances including a refrigerator, built-in dishwasher, electric range, microwave, washer, and dryer. Pictures, photographs, colors, features, and sizes are for illustration purposes only and will vary from the homes as built. Home and community information including pricing, included features, terms, availability and amenities are subject to change and prior sale at any time without notice or obligation. CRC057592.
Financial Considerations
Price:
$228,990
HOA Fee:
118
Tax Amount:
$0
Price per SqFt:
$156.52
Tax Legal Description:
LOT 142 TWISTED OAKS TOWNHOMES PHASE 1 PB 21 PGS 36-36D
Exterior Features
Lot Size:
1801
Lot Features:
N/A
Waterfront:
No
Parking Spaces:
N/A
Parking:
N/A
Roof:
Shingle
Pool:
No
Pool Features:
N/A
Interior Features
Bedrooms:
3
Bathrooms:
3
Heating:
Electric, Heat Pump
Cooling:
Central Air
Appliances:
Dishwasher, Dryer, Microwave, Range, Refrigerator, Washer
Furnished:
No
Floor:
Carpet, Ceramic Tile
Levels:
Two
Additional Features
Property Sub Type:
Townhouse
Style:
N/A
Year Built:
2024
Construction Type:
Block
Garage Spaces:
Yes
Covered Spaces:
N/A
Direction Faces:
South
Pets Allowed:
Yes
Special Condition:
None
Additional Features:
N/A
Additional Features 2:
Per HOA Guidelines
Map
  • Address
    8396 GOWER TRL
Contact a Professional
Why Choose Us?
  • Communication and Transparency
  • Skilled Negotiation
  • Robust Professional Network
  • After-Sale Support
Featured Properties

Related Properties

avt
Daniel Dourado
$ 315,000
img
  • Featured
  • Active
Townhouse

9779 TRUMPET VINE LOOP

  • 3
  • 3
  • 139 m²
avt
Daniel Dourado
$ 265,000
img
  • Featured
  • Active
Townhouse

3776 82ND AVENUE CIR E #103

  • 3
  • 3
  • 154 m²
avt
Daniel Dourado
$ 349,000
avt
Daniel Dourado
$ 299,999
avt
Daniel Dourado
$ 350,000
avt
Daniel Dourado
$ 380,000
avt
Daniel Dourado
$ 230,000
img
  • Featured
  • Active
Townhouse

632 KENSINGTON LAKE CIR

  • 2
  • 3
  • 129 m²
avt
Daniel Dourado
$ 230,000
avt
Daniel Dourado
$ 330,000
avt
Daniel Dourado
$ 295,000
img
  • Featured
  • Active
Townhouse

20541 GRAND VISTA LN

  • 3
  • 3
  • 184 m²
avt
Daniel Dourado
$ 349,000
avt
Daniel Dourado
$ 240,000