Active

$3,750,000

Features:
  • 4 Bedrooms
  • 5 Bathrooms
  • 3220 sq ft
Overview
  • ID: MFRA4680699
  • Bedrooms: 4
  • Bathrooms: 5
  • Size: 3220 sq ft
Property Details
Remarks
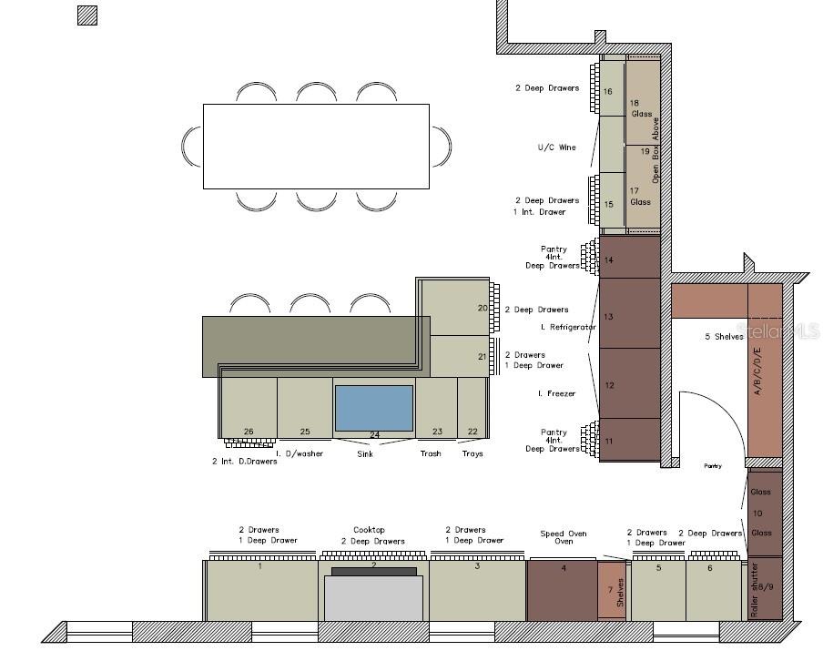
Under Construction. New Construction | Modern Concrete Homes steps from Siesta Key Beach now under construction and scheduled for completion in approximately six months. These two identical, mirror-image modern residences are located on Sarasota Beach, just one short block from the world-renowned Siesta Key Beach. Built with solid concrete construction and full hurricane-rated specifications, these three-story homes are designed for durability, peace of mind, and refined coastal living. Each residence offers approximately 3,200 square feet under air, featuring four bedrooms, four and a half bathrooms, and a spacious, open-concept layout. The homes feature European kitchen cabinetry, upscale appliances, and contemporary finishes throughout. A private elevator provides seamless access from the two-car garage to all levels, enhancing comfort and everyday convenience. Outdoor living is thoughtfully integrated with a private swimming pool and a rooftop lookout terrace, ideal for entertaining, enjoying island breezes, and taking in sunsets. At this stage of construction, buyers have the unique opportunity to customize interior finishes, allowing for personal design preferences while still enjoying the benefits of brand-new, modern construction. Offering walk-to-beach proximity, modern architecture, concrete construction, and the flexibility of customization, these residences represent a rare opportunity to secure a luxury home on one of Florida’s most desirable barrier islands.
Financial Considerations
Price:
$3,750,000
HOA Fee:
N/A
Tax Amount:
$6037.7
Price per SqFt:
$1164.6
Tax Legal Description:
Lot 24, BLK 6, SARASOTA BEACH
Exterior Features
Lot Size:
5330
Lot Features:
N/A
Waterfront:
No
Parking Spaces:
N/A
Parking:
N/A
Roof:
Membrane, Other
Pool:
Yes
Pool Features:
Gunite, In Ground, Lighting, Salt Water
Interior Features
Bedrooms:
4
Bathrooms:
5
Heating:
Electric
Cooling:
Central Air
Appliances:
Built-In Oven, Convection Oven, Cooktop, Dishwasher, Disposal, Dryer, Freezer, Microwave, Range Hood, Refrigerator, Washer
Furnished:
Yes
Floor:
Ceramic Tile, Tile
Levels:
Three Or More
Additional Features
Property Sub Type:
Single Family Residence
Style:
N/A
Year Built:
2026
Construction Type:
Block, Concrete, Stucco
Garage Spaces:
Yes
Covered Spaces:
N/A
Direction Faces:
East
Pets Allowed:
No
Special Condition:
None
Additional Features:
Balcony, Lighting, Sliding Doors, Storage
Additional Features 2:
N/A
Map
  • Address
    5355 CALLE FLORIDA
Contact a Professional
Why Choose Us?
  • Communication and Transparency
  • Skilled Negotiation
  • Robust Professional Network
  • After-Sale Support
Featured Properties

Related Properties

avt
Daniel Dourado
$ 355,000
avt
Daniel Dourado
$ 275,000
avt
Daniel Dourado
$ 410,000
avt
Daniel Dourado
$ 365,000
avt
Daniel Dourado
$ 514,900
avt
Daniel Dourado
$ 1,475,000
avt
Daniel Dourado
$ 385,000
avt
Daniel Dourado
$ 405,000
avt
Daniel Dourado
$ 319,000
avt
Daniel Dourado
$ 350,000