Active

$299,690

Features:
  • 3 Bedrooms
  • 2 Bathrooms
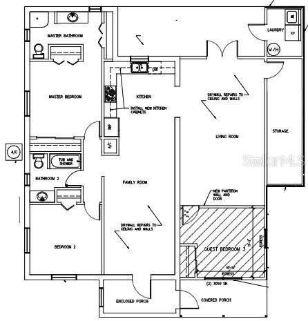
  • 2022 sq ft
Overview
  • ID: MFRO6186132
  • Bedrooms: 3
  • Bathrooms: 2
  • Size: 2022 sq ft
Property Details
Remarks
Embrace the Florida lifestyle in this stunning 3-bedroom, 2-bathroom BLOCK Home located at 2910 Acline Rd, Punta Gorda Fl. This meticulously remodeled property offers the perfect blend of modern comfort and spacious living. Step inside to an open floor plan boasting a brand new look: New AC units for year-round comfort Updated electrical system for peace of mind New Hot water heater Sparkling new appliances in the kitchen, Summer Kitchen- entertain outside, New screen rooms front and rear Stylish new kitchen cabinets for ample storage, Inside laundry room front loading washer n dryer included Luxurious bathrooms featuring new tile showers and floors, Fresh paint inside and out, New luxury vinyl plank and tile throughout. The exterior of this home has been completely transformed with new stucco, adding a touch of elegance and lasting durability. New gutters and soffit, The roof, replaced just 2 years ago, comes with a 5-year warranty for ultimate peace of mind. Additionally, the home is covered by a 1-year Florida contractor warranty. Enjoy the expansive 1/2 acre lot, offering ample space for: Relaxing in your private backyard oasis, Parking your RV or boat Convenience is key! This property is situated close to shopping centers and just a couple of miles from I-75, ensuring easy access to all that Southwest Florida provides. The home is serviced by a septic system that has been recently cleaned and maintained for optimal performance. Don't miss the detached garage/workshop in the back, perfect for your hobbies or extra storage. Live the Florida dream in Punta Gorda, a vibrant city known for its: World-class fishing and boating opportunities Proximity to the stunning Gulf of Mexico, just minutes away This move-in-ready gem is waiting for you! Schedule your showing today and start living your Florida dream!!
Financial Considerations
Price:
$299,690
HOA Fee:
N/A
Tax Amount:
$2405.66
Price per SqFt:
$148.21
Tax Legal Description:
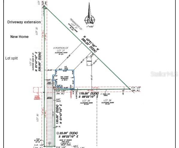
ALM 000 0000 0037W ALLAPATCHEE MANOR PART OF LT 37 DESC AS BEG NE COR LT 37 TH SE 285.29 FT TO N LN LT 36 TH W 176.99 FT TO NW COR LT 35 TH S 135 FT TH W 25 FT TH N 335 FT TO POB P1 278/323 538/1313 901/2096 1026/209 DC1331/2003(LP) 1358/14 1450/02 U NREC DC-JPP DC4
Exterior Features
Lot Size:
23774
Lot Features:
Landscaped, Oversized Lot, Private
Waterfront:
No
Parking Spaces:
N/A
Parking:
N/A
Roof:
Built-Up
Pool:
No
Pool Features:
N/A
Interior Features
Bedrooms:
3
Bathrooms:
2
Heating:
Central
Cooling:
Central Air, Mini-Split Unit(s)
Appliances:
Dishwasher, Dryer, Electric Water Heater, Exhaust Fan, Microwave, Range, Refrigerator, Washer
Furnished:
No
Floor:
Ceramic Tile, Luxury Vinyl
Levels:
One
Additional Features
Property Sub Type:
Single Family Residence
Style:
N/A
Year Built:
1957
Construction Type:
Stucco
Garage Spaces:
No
Covered Spaces:
N/A
Direction Faces:
South
Pets Allowed:
No
Special Condition:
None
Additional Features:
Hurricane Shutters, Outdoor Kitchen, Private Mailbox, Rain Gutters, Storage
Additional Features 2:
N/A
Map
  • Address
    2910 ACLINE RD
Contact a Professional
Why Choose Us?
  • Communication and Transparency
  • Skilled Negotiation
  • Robust Professional Network
  • After-Sale Support
Featured Properties

Related Properties

avt
Daniel Dourado
$ 629,520
avt
Daniel Dourado
$ 420,000
avt
Daniel Dourado
$ 409,990
avt
Daniel Dourado
$ 499,900
avt
Daniel Dourado
$ 399,900
avt
Daniel Dourado
$ 1,749,100
avt
Daniel Dourado
$ 399,990
avt
Daniel Dourado
$ 499,000