Active

$724,900

Features:
  • 3 Bedrooms
  • 2 Bathrooms
  • 2646 sq ft
Overview
  • ID: MFRD6136684
  • Bedrooms: 3
  • Bathrooms: 2
  • Size: 2646 sq ft
Property Details
Remarks
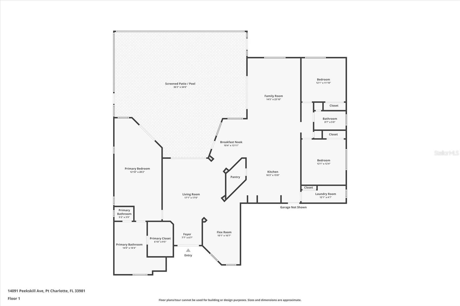
Imagine yourself living on this gorgeous Southwest facing tip lot on open SAILBOAT water, the possibilities for this property are endless. The water views and the sunsets are absolutely stunning with 166 ft. of water frontage. As you walk through the leaded glass double door, you will notice the natural light and your eyes will be drawn to the architectural details through out. If entertaining is on your agenda, this home consists of an open split floor plan and has plenty of room to meet all your needs. This home features a formal living room with sliders accessing the lanai, family room with sliders accessing the lanai, bonus room, and breakfast nook all sharing the breathtaking waterfront views. This spacious kitchen is sure to please any chef in the family featuring all wood cabinets, plenty of storage in the center island, granite countertops, stainless steel appliances, eat at bar, breakfast bar and a beautiful walk in pantry to house all your cooking supplies. The laundry room, consisting of plenty of storage cabinets with a cabinet and sink, is located off the kitchen and can also be accessed through the garage. Perfect for when you are doing those outside projects and want to clean up before you walk through the home. The spacious guest bedrooms share a guest bathroom with tub and shower, and granite counters. The oversized main bedroom, located on the opposite side of the house for privacy, features glass sliders that go out to the lanai, a private main bathroom that contains a walk in tiled shower, jetted soaking tub, and dual sinks with granite counters and plenty of storage. The lanai area is accessed though the sliders from the living room and formal living room which gives you both inside and outside entertaining space. Float in 22 x 13 pool to cool off or sit and read a book or watch your favorite tv show in the covered lanai area. Because of the size of the outdoor space, picture adding on to your outdoor oasis with an outdoor grilling area, tiki hut, add a stand alone spa, etc. Use your imagination because this property has the space for it all. The oversized two car garage features plenty of cabinet space for storage and can accommodate a golf cart or other toys you may have. Other highlights are the plantation shutters, tons of storage, architectural niches, new roof (2022), Impact windows and or shutters, and irrigation pulling from the canal. The location of South Gulf Cove in itself is close to some of the most beautiful beaches, Boca Grande, golf courses, some of the best fishing in Charlotte Harbor and the Gulf of Mexico, and let's not lose sight of the 55 miles of waterways through the canals. Picture yourself here, a waterfront paradise, and make your dreams come true.
Financial Considerations
Price:
$724,900
HOA Fee:
120
Tax Amount:
$7981.35
Price per SqFt:
$273.96
Tax Legal Description:
PCH 087 4635 0007 PORT CHARLOTTE SEC87 BLK4635 LT 7 1095/904 1525/1304 1719/1095 L/E4399/1566
Exterior Features
Lot Size:
17866
Lot Features:
Tip Lot
Waterfront:
Yes
Parking Spaces:
N/A
Parking:
Garage Door Opener, Golf Cart Parking, Oversized
Roof:
Shingle
Pool:
Yes
Pool Features:
Child Safety Fence, Gunite, In Ground, Screen Enclosure
Interior Features
Bedrooms:
3
Bathrooms:
2
Heating:
Central, Electric
Cooling:
Central Air
Appliances:
Dishwasher, Disposal, Dryer, Electric Water Heater, Microwave, Range, Refrigerator, Washer
Furnished:
No
Floor:
Carpet, Tile
Levels:
One
Additional Features
Property Sub Type:
Single Family Residence
Style:
N/A
Year Built:
2007
Construction Type:
Block, Concrete, Stucco
Garage Spaces:
Yes
Covered Spaces:
N/A
Direction Faces:
Northeast
Pets Allowed:
No
Special Condition:
None
Additional Features:
Lighting, Rain Gutters, Sliding Doors
Additional Features 2:
N/A
Map
  • Address
    14091 PEEKSKILL AVE
Contact a Professional
Why Choose Us?
  • Communication and Transparency
  • Skilled Negotiation
  • Robust Professional Network
  • After-Sale Support
Featured Properties

Related Properties

avt
Daniel Dourado
$ 408,900
avt
Daniel Dourado
$ 335,000
avt
Daniel Dourado
$ 659,000
avt
Daniel Dourado
$ 475,000
avt
Daniel Dourado
$ 330,000
avt
Daniel Dourado
$ 269,900
avt
Daniel Dourado
$ 519,900
avt
Daniel Dourado
$ 665,000
avt
Daniel Dourado
$ 289,000
avt
Daniel Dourado
$ 437,990