Active

$560,000

Features:
  • 4 Bedrooms
  • 2 Bathrooms
  • 2243 sq ft
Overview
  • ID: MFRTB8363214
  • Bedrooms: 4
  • Bathrooms: 2
  • Size: 2243 sq ft
Property Details
Remarks
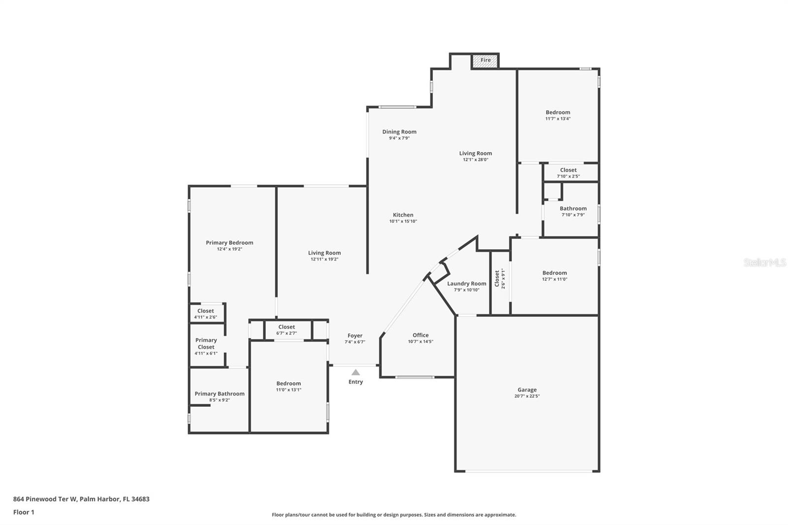
Welcome home to one of Palm Harbor’s most sought-after communities—Westlake Village! With top-rated schools and an amenity-packed neighborhood, this stunning 4-bedroom + office, 2-bathroom home offers over 2,200 sqft of beautifully updated living space on a spacious ¼-acre lot. From the moment you step through the double front doors, luxury vinyl plank flooring flows throughout the open floor plan. Sliding glass doors lead to a dedicated office space, perfect for working from home, a playroom, or even a home gym. The heart of the home is the updated kitchen, featuring sleek shaker cabinets, quartz countertops, a large island with barstool seating, stainless steel appliances, and a stylish subway tile backsplash. The sunlit dining area connects seamlessly to the living room, where a stunning stone wood-burning fireplace with built-ins creates a cozy yet sophisticated focal point. A nearby dry bar with a wine refrigerator makes entertaining effortless. The private owner’s suite boasts its own sliding door exit to the backyard, a spacious walk-in closet with a custom organization system, and a beautifully updated ensuite bath with dual sinks and a modern stand-up shower. The split floor plan ensures privacy, with generously sized guest bedrooms sharing a stylishly updated bathroom that matches the primary bath’s finishes. Step outside to the fully fenced backyard, where a covered patio provides the perfect space for entertaining. With plenty of room to add a pool, this oversized backyard is a blank canvas to create your dream outdoor oasis. Enjoy peace of mind with the roof and A/C replaced in 2021 and the garage equipped with an electric vehicle charging station, offering added convenience. Located in the desirable, golf-cart-friendly Westlake Village community, you’ll have access to an Olympic-sized pool, pickleball, tennis and basketball courts, a playground, clubhouse, and a 30-acre park with walking trails and fitness stations—all with low HOA fees and no CDD fees. Zoned for A-rated Palm Harbor University and just minutes from top destinations like the world-renowned Innisbrook Golf Resort, the Crystal Beach Pier, and Honeymoon Island State Park, this home offers the best of Florida living—just minutes from the water yet NOT in a flood zone. Don't miss out on this incredible opportunity—schedule your showing today!
Financial Considerations
Price:
$560,000
HOA Fee:
844
Tax Amount:
$6817
Price per SqFt:
$249.67
Tax Legal Description:
WESTLAKE VILLAGE SECTION II BLK 19, LOT 22
Exterior Features
Lot Size:
11700
Lot Features:
N/A
Waterfront:
No
Parking Spaces:
N/A
Parking:
Driveway, Electric Vehicle Charging Station(s), Garage Door Opener
Roof:
Shingle
Pool:
No
Pool Features:
N/A
Interior Features
Bedrooms:
4
Bathrooms:
2
Heating:
Central
Cooling:
Central Air
Appliances:
Dishwasher, Microwave, Range, Refrigerator, Wine Refrigerator
Furnished:
No
Floor:
Luxury Vinyl
Levels:
One
Additional Features
Property Sub Type:
Single Family Residence
Style:
N/A
Year Built:
1979
Construction Type:
Block, Concrete
Garage Spaces:
Yes
Covered Spaces:
N/A
Direction Faces:
South
Pets Allowed:
Yes
Special Condition:
None
Additional Features:
Other, Private Mailbox, Sidewalk, Sliding Doors
Additional Features 2:
Buyer to verify lease restrictions with HOA, city, & county.
Map
  • Address
    864 PINEWOOD TER W
Contact a Professional
Why Choose Us?
  • Communication and Transparency
  • Skilled Negotiation
  • Robust Professional Network
  • After-Sale Support
Featured Properties

Related Properties

avt
Daniel Dourado
$ 340,000
avt
Daniel Dourado
$ 459,000
avt
Daniel Dourado
$ 318,997
avt
Daniel Dourado
$ 529,900
avt
Daniel Dourado
$ 489,000
avt
Daniel Dourado
$ 539,900
avt
Daniel Dourado
$ 409,000
avt
Daniel Dourado
$ 369,900