Active

$975,000

Features:
  • 3 Bedrooms
  • 3 Bathrooms
  • 2274 sq ft
Overview
  • ID: MFRTB8413509
  • Bedrooms: 3
  • Bathrooms: 3
  • Size: 2274 sq ft
Property Details
Remarks
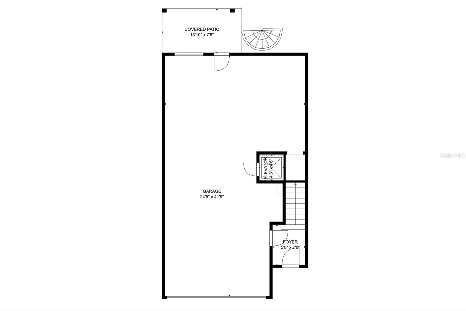
Townhome was updated in 2021, only one block to the BEACH in an exclusive GATED waterfront community with spectacular water views from the living room, primary bedroom, patio and balconies. This property features three bedrooms, two full baths and a half bath, private elevator and oversized garage. Fully furnished and turn-key!!! Bring your clothes and you are ready to live the beach lifestyle! This home is perfect for entertaining. The second-floor main living area open floor plan affords a spacious and luxurious feel with new LVP flooring throughout. Kitchen has custom cabinetry, quartzite countertops and newer stainless-steel appliances. The living/dining room has huge pocket sliders with screens so you can enjoy the cool gulf breeze from your secluded balcony. The third floor includes the primary bedroom and ensuite bathroom with separate tub and walk-in shower plus a private balcony overlooking the Bay and intercoastal waterway. Both guest bedrooms have access to a spacious balcony. The laundry room is centrally located between the split bedroom plan and includes full sized washer and dryer plus a utility sink. This home also boasts a central vacuum cleaning system. The community is pet friendly especially for you dog with a grassy area outside the back door of your garage. Yacht Club has only twenty-nine residences with a community dock for day boating/fishing, a kayak launch, a sparkling heated pool and hot tub just steps from this home. Located in North Redington Beach which features town parks, public beach accesses, well maintained tennis courts, pickleball courts, basketball court, and playground. This charming beach town has easy access to Interstates, airports, medical facilities, unique shops, delicious restaurants, grocery stores and more. Imagine evening strolls on the soft sandy beach, relaxing sea breezes while watching the amazing sunsets!
Financial Considerations
Price:
$975,000
HOA Fee:
570
Tax Amount:
$8424.67
Price per SqFt:
$428.76
Tax Legal Description:
TIDES VILLAGE - YACHT BASIN LOT 12
Exterior Features
Lot Size:
1703
Lot Features:
N/A
Waterfront:
Yes
Parking Spaces:
N/A
Parking:
Driveway, Garage Door Opener, Oversized
Roof:
Metal
Pool:
No
Pool Features:
Deck, Gunite, Heated, In Ground
Interior Features
Bedrooms:
3
Bathrooms:
3
Heating:
Central, Electric
Cooling:
Central Air
Appliances:
Bar Fridge, Dishwasher, Disposal, Exhaust Fan, Microwave, Range, Range Hood, Refrigerator, Washer, Wine Refrigerator
Furnished:
Yes
Floor:
Ceramic Tile, Luxury Vinyl
Levels:
Three Or More
Additional Features
Property Sub Type:
Townhouse
Style:
N/A
Year Built:
2000
Construction Type:
Block, Stucco, Vinyl Siding
Garage Spaces:
Yes
Covered Spaces:
N/A
Direction Faces:
West
Pets Allowed:
No
Special Condition:
None
Additional Features:
Balcony, Outdoor Shower, Private Mailbox
Additional Features 2:
Confirm with Management Company
Map
  • Address
    123 YACHT CLUB CIR
Contact a Professional
Why Choose Us?
  • Communication and Transparency
  • Skilled Negotiation
  • Robust Professional Network
  • After-Sale Support
Featured Properties

Related Properties

avt
Daniel Dourado
$ 251,000
img
  • Featured
  • Active
Townhouse

13207 SAN BLAS LOOP

  • 3
  • 3
  • 205 m²
avt
Daniel Dourado
$ 495,000
avt
Daniel Dourado
$ 415,000
avt
Daniel Dourado
$ 235,000
avt
Daniel Dourado
$ 547,200
avt
Daniel Dourado
$ 1,080,000
img
  • Featured
  • Active
Townhouse

6071 STRADA ISLE WAY

  • 3
  • 3
  • 148 m²
avt
Daniel Dourado
$ 299,900
img
  • Featured
  • Active
Townhouse

50 PENINSULA DE SAN JUAN

  • 4
  • 6
  • 420 m²
avt
Daniel Dourado
$ 1,695,000
img
  • Featured
  • Active
Townhouse

14379 SAPELO BEACH DR

  • 3
  • 3
  • 139 m²
avt
Daniel Dourado
$ 450,000
avt
Daniel Dourado
$ 335,000
avt
Daniel Dourado
$ 490,000
avt
Daniel Dourado
$ 295,990