Active

$620,000

Features:
  • 4 Bedrooms
  • 2 Bathrooms
  • 2597 sq ft
Overview
  • ID: MFRO6254019
  • Bedrooms: 4
  • Bathrooms: 2
  • Size: 2597 sq ft
Property Details
Remarks
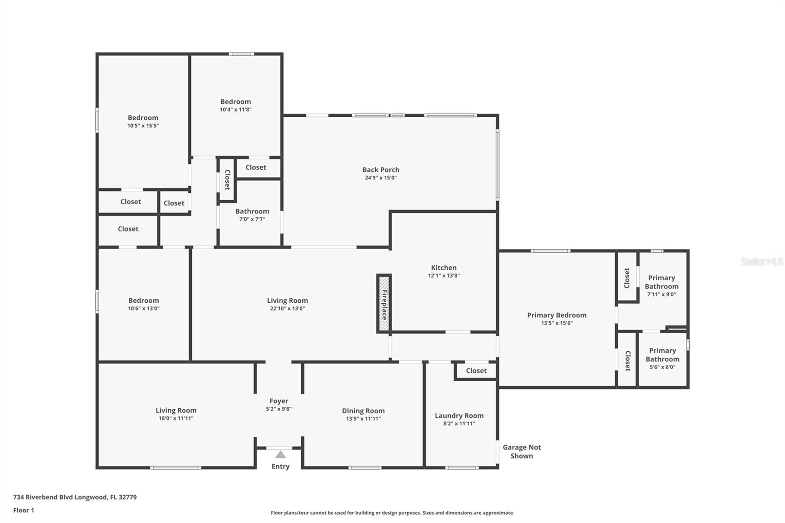
Don't miss seeing this lovely home in gorgeous Sweetwater Oaks! As you tour, take note of the large rooms throughout the house! This four-bedroom, two-bath, split floor plan features spacious rooms offering flexibility to use the space to suit your needs! As you enter, a large Dining Room is to your right, and an even larger Living Room is to your left. The Dining Room can accommodate a sizable table, and there is plenty of wall space for furniture. The Living Room would also make a great office/flex space. The cozy Family Room has SOARING VAULTED CEILINGS, WOOD BEAMS, and a STONE FIREPLACE. The Kitchen offers gleaming stainless steel appliances, abundant cabinet space, and room for a table. The primary suite has ample room for a king-size bed with room to spare. The second bath was beautifully remodeled and is located conveniently near the additional 3 bedrooms. A big, Sun Room gives you yet another wonderful living space and leads out to your backyard oasis! Venture outside to enjoy the HUGE OVERSIZED LAP POOL, which is great for exercise and water games. With its tree-lined streets and sidewalks, Sweetwater Oaks offers exclusive private amenities and top-rated schools. Enjoy the private beach on the shores of Lake Brantley, tennis, pickleball, and basketball courts, 2 playgrounds, 2 covered pavilions, a volleyball court, a fishing dock, a soccer field, a baseball field, a boat ramp, access to the Wekiva River by canoe, kayak or paddle board, and a community center that is available to rent for parties and special occasions. The BIG Ticket Items have been done for you! ROOF WAS REPLACED IN 2022, the A/C IN 2024, the POOL RESURFACED in 2022, the windows were replaced with PELLA WINDOWS throughout the home, a new rear fence was just installed, and a new garage door is on order to be installed in July!!!
Financial Considerations
Price:
$620,000
HOA Fee:
650
Tax Amount:
$2850.15
Price per SqFt:
$238.74
Tax Legal Description:
LOT 33 BLK B SWEETWATER OAKS SEC 18 PB 23 PGS 9 TO 11
Exterior Features
Lot Size:
15093
Lot Features:
Sidewalk, Paved
Waterfront:
No
Parking Spaces:
N/A
Parking:
N/A
Roof:
Shingle
Pool:
Yes
Pool Features:
Gunite, In Ground, Lap, Pool Sweep
Interior Features
Bedrooms:
4
Bathrooms:
2
Heating:
Central, Electric
Cooling:
Central Air, Wall/Window Unit(s)
Appliances:
Dishwasher, Disposal, Dryer, Electric Water Heater, Microwave, Range, Refrigerator, Washer
Furnished:
No
Floor:
Carpet, Ceramic Tile
Levels:
One
Additional Features
Property Sub Type:
Single Family Residence
Style:
N/A
Year Built:
1980
Construction Type:
Block
Garage Spaces:
Yes
Covered Spaces:
N/A
Direction Faces:
North
Pets Allowed:
Yes
Special Condition:
None
Additional Features:
Sidewalk
Additional Features 2:
Buyer to verify Leasing Restrictions
Map
  • Address
    734 RIVERBEND BLVD
Contact a Professional
Why Choose Us?
  • Communication and Transparency
  • Skilled Negotiation
  • Robust Professional Network
  • After-Sale Support
Featured Properties

Related Properties

avt
Daniel Dourado
$ 900,000
avt
Daniel Dourado
$ 1,265,000
avt
Daniel Dourado
$ 342,979
avt
Daniel Dourado
$ 399,000
avt
Daniel Dourado
$ 376,000
avt
Daniel Dourado
$ 875,000
avt
Daniel Dourado
$ 429,000
avt
Daniel Dourado
$ 520,000
avt
Daniel Dourado
$ 359,000