Active

$1,500,000

Características:
  • Quartos
  • 0 Banheiros
  • 0 m²
Visão Geral
  • ID: MFRC7480858
  • Quartos:
  • Banheiros: 0
  • Tamanho: 0 m²
Detalhes do Imóvel
Observações
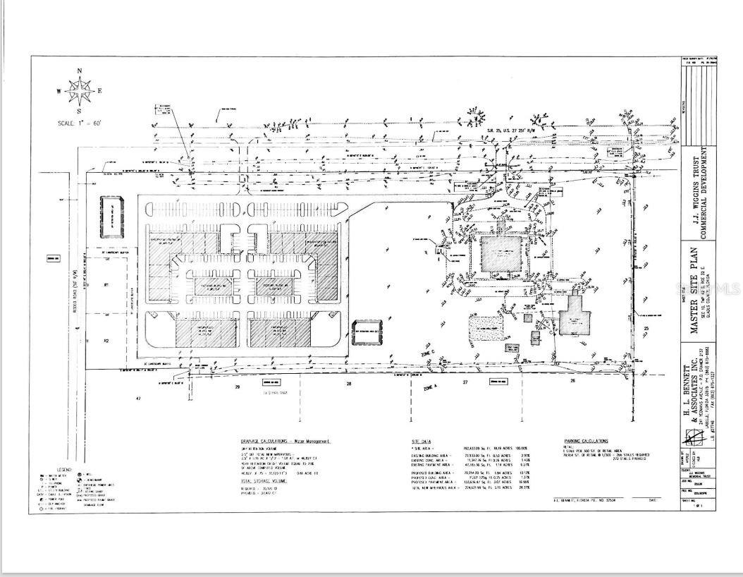
Mais de 680 'da Frontage 27 da Highway 27 de zonas comerciais! Esta propriedade comercial de 10 acres não tem apenas 680 'da fachada da rodovia 27, mas fica a apenas 1/10 milhas da entrada da Highway 78, o que leva a Okeechobee e ao Brighton Seminole Casino. A propriedade é dividida em quase qualquer negócio de varejo que se possa imaginar e, com a água e o esgoto da cidade nas proximidades, este pacote contribui para uma excelente oportunidade de investimento. Atualmente, uma parte da propriedade está sendo alugada como uma área de preparação/armazenamento para uma grande corporação, que fornece excelente renda e pode ser assumida.
Considerações Financeiras
Preço:
$1,500,000
Taxa de HOA:
N/D
Valor do Imposto:
$0
Preço por m²:
$1500000
Descrição Legal do Imposto:
N PARTE DE 28 29 EXC SR 25 RWY DC PB 3PG ACRES TOTAIS 10 M/L
Características Exteriores
Tamanho do Lote:
438900
Características do Lote:
N/D
Beira-mar:
Não
Vagas de Estacionamento:
N/D
Estacionamento:
N/D
Telhado:
N/D
Piscina:
Não
Características da Piscina:
N/D
Características Interiores
Quartos:
Banheiros:
0
Aquecimento:
N/D
Resfriamento:
Nenhum
Eletrodomésticos:
N/D
Mobiliado:
Não
Andar:
N/D
Níveis:
N/D
Características Adicionais
Subtipo de Imóvel:
Uso Misto
Estilo:
N/D
Ano de Construção:
1990
Tipo de Construção:
Outro
Vagas na Garagem:
Não
Vagas Cobertas:
N/D
Orientação da Fachada:
N/D
Animais Permitidos:
Não
Condição Especial:
Nenhum
Características Adicionais:
N/D
Características Adicionais 2:
N/D
Mapa
  • Endereço
    200 RODEO RD
Fale com um profissional
Por Que Nos Escolher?
  • Comunicação e Transparência
  • Negociação Qualificada
  • Rede Profissional Robusta
  • Suporte Pós-Venda
Propriedades em Destaque

Imóveis relacionados

avt
Daniel Dourado
$ 459,000
img
  • Featured
  • Active
Mixed Use

118 NE TUSCAWILLA AVE

  • 0
  • 301 m²
avt
Daniel Dourado
$ 330,000
avt
Daniel Dourado
$ 549,900
avt
Daniel Dourado
$ 1,799,999
avt
Daniel Dourado
$ 7,000,000
avt
Daniel Dourado
$ 2,650,000
avt
Daniel Dourado
$ 649,999
avt
Daniel Dourado
$ 400,000
avt
Daniel Dourado
$ 319,680
avt
Daniel Dourado
$ 795,000
avt
Daniel Dourado
$ 995,000
img
  • Featured
  • Active
Mixed Use

6923 W HILLSBOROUGH AVE

  • 0
  • 124 m²
avt
Daniel Dourado
$ 2,800,000