$2,595,000

Características:
  • Quartos
  • 0 Banheiros
  • 0 m²
Visão Geral
  • ID: MFRPR9117202
  • Quartos:
  • Banheiros: 0
  • Tamanho: 0 m²
Detalhes do Imóvel
Observações
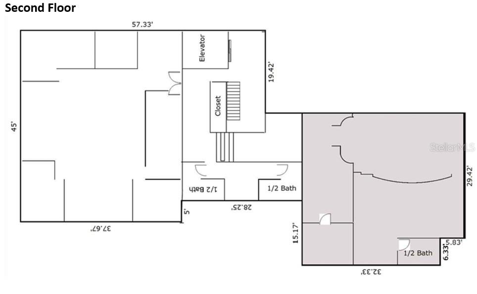
Edifício comercial/lote de tripla fachada localizado no cruzamento das ruas José Martí, Padre Rufo e Jamaica (Parque Floral, Hato Rey, San Juan). Tamanho do lote: 1.618 m²; construção: 14.227 pés quadrados distribuídos em cave mais 3 níveis. Estrutura em concreto armado antigamente utilizada como laboratório clínico e consultório médico. Primeiro nível com múltiplas salas (escritórios, raio X, ressonância magnética), 8 lavabos e 1 banheiro completo; subsolo: 1.381 pés quadrados. Segundo nível com escritórios, sala de conferências, cubículos e 3 lavabos. Terceiro nível pequeno com acesso ao telhado. Quatorze vagas de estacionamento abertas. Zoneamento: RI. Zona de inundação: Zona X (fora da área de risco de inundação). Maior e melhor uso: comercial. O imóvel necessita de reparos.
Considerações Financeiras
Preço:
$2,595,000
Taxa de HOA:
N/D
Valor do Imposto:
$N/D
Preço por m²:
$182.4
Descrição Legal do Imposto:
N/D
Características Exteriores
Tamanho do Lote:
17354
Características do Lote:
N/D
Beira-mar:
Não
Vagas de Estacionamento:
N/D
Estacionamento:
N/D
Telhado:
N/D
Piscina:
Não
Características da Piscina:
N/D
Características Interiores
Quartos:
Banheiros:
0
Aquecimento:
N/D
Resfriamento:
Nenhum
Eletrodomésticos:
N/D
Mobiliado:
Não
Andar:
N/D
Níveis:
N/D
Características Adicionais
Subtipo de Imóvel:
Escritório
Estilo:
N/D
Ano de Construção:
1985
Tipo de Construção:
Concreto
Vagas na Garagem:
Não
Vagas Cobertas:
N/D
Orientação da Fachada:
N/D
Animais Permitidos:
Não
Condição Especial:
Nenhum
Características Adicionais:
N/D
Características Adicionais 2:
N/D
Mapa
  • Endereço
Fale com um profissional
Por Que Nos Escolher?
  • Comunicação e Transparência
  • Negociação Qualificada
  • Rede Profissional Robusta
  • Suporte Pós-Venda
Propriedades em Destaque

Imóveis relacionados

img
  • Featured
  • Active
Office

4635 & 4611 N CARL G. ROSE HWY

  • 0
  • 0 m²
avt
Daniel Dourado
$ 295,000
avt
Daniel Dourado
$ 440,000
avt
Daniel Dourado
$ 499,000
avt
Daniel Dourado
$ 330,000
img
  • Featured
  • Active
Office

189 S ORANGE AVE #1430

  • 0
  • 310 m²
avt
Daniel Dourado
$ 600,660
img
  • Featured
  • Active
Office

189 S ORANGE AVE #1470

  • 0
  • 311 m²
avt
Daniel Dourado
$ 636,880
img
  • Featured
  • Active
Office

189 S ORANGE AVE #1450

  • 0
  • 290 m²
avt
Daniel Dourado
$ 531,760
avt
Daniel Dourado
$ 440,000
img
  • Featured
  • Active
Office

5245 OFFICE PARK BLVD #102

  • 0
  • 91 m²
avt
Daniel Dourado
$ 270,000
img
  • Featured
  • Active
Office

234 N RHODES AVE #108

  • 0
  • 195 m²
avt
Daniel Dourado
$ 730,000
img
  • Featured
  • Active
Office

234 N RHODES AVE #105

  • 0
  • 195 m²
avt
Daniel Dourado
$ 730,000
avt
Daniel Dourado
$ 1,295,000