Active

$449,000

Características:
  • Quartos
  • 0 Banheiros
  • 0 m²
Visão Geral
  • ID: MFRNS1083820
  • Quartos:
  • Banheiros: 0
  • Tamanho: 0 m²
Detalhes do Imóvel
Observações
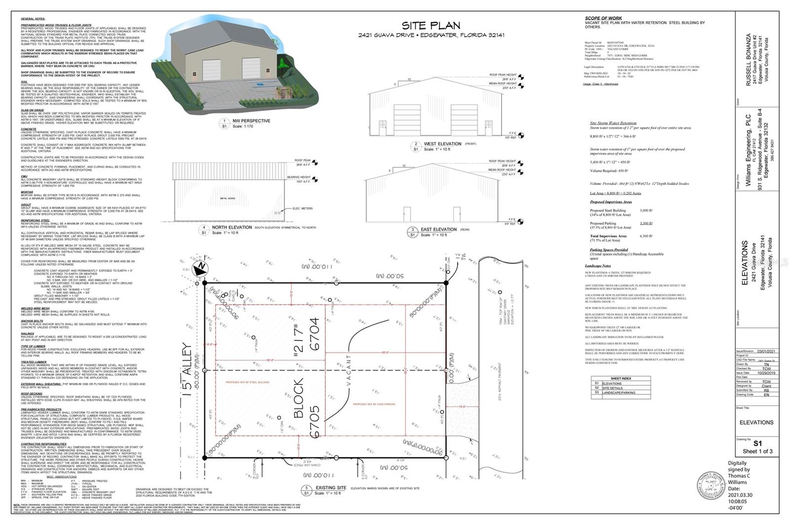
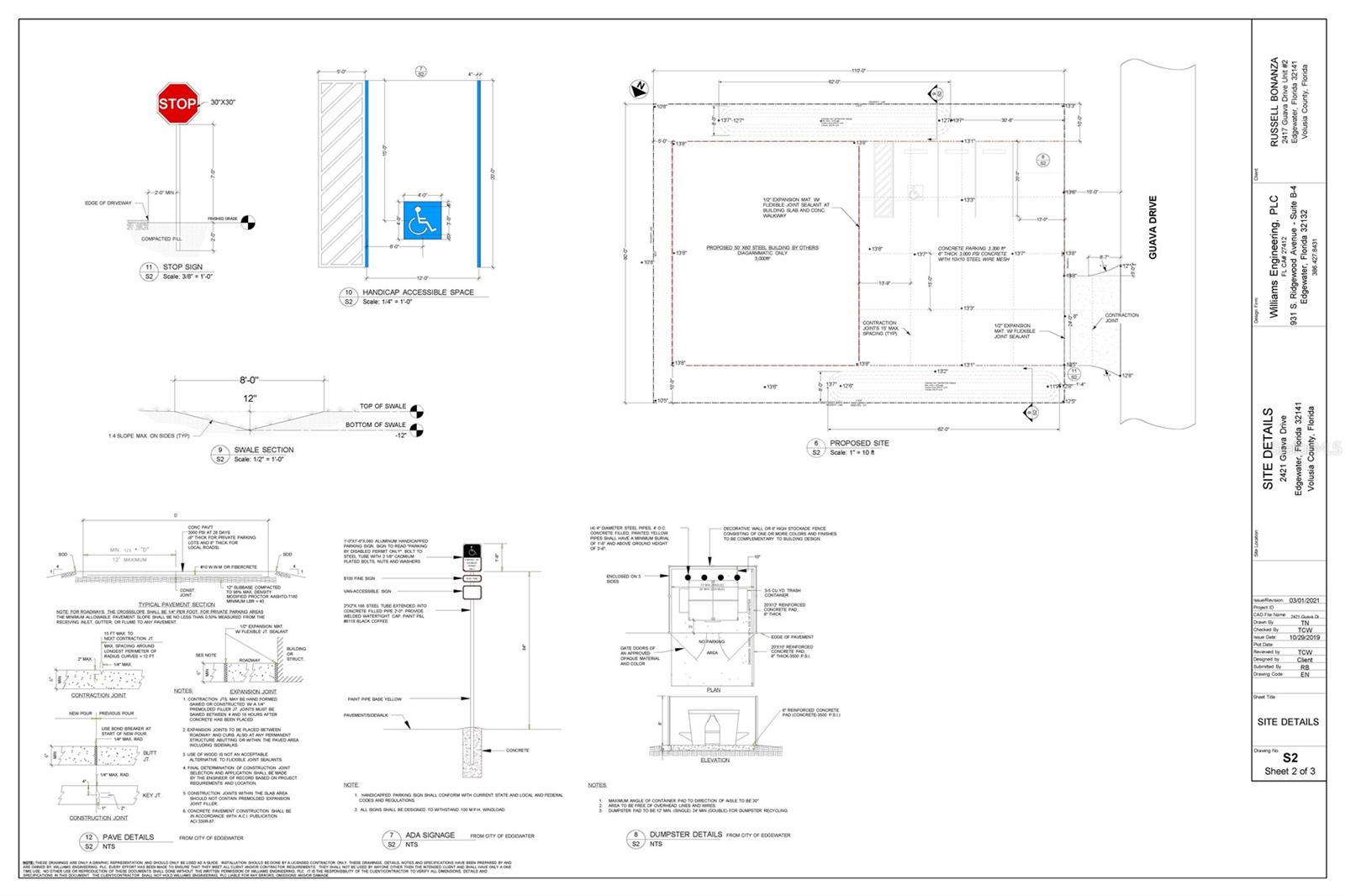
Pré-construção. Para ser construído. A limpeza do terreno já começou. Procurando aquele edifício de armazenamento pessoal perfeito para chamar de PRÓPRIO para o seu negócio e muito mais? Localizado no coração de um próspero distrito comercial, este difícil de encontrar novo armazém de mais de 2.600 pés quadrados em Edgewater, Flórida, está em processo de desenvolvimento a ser concluído até 1º de março de 2026. Bem no centro do distrito comercial e na zona B2, há um grande potencial para realizar suas aspirações comerciais ou pessoais. Existem DUAS portas de vão de 14 x 14 pés na parte frontal leste do edifício com 1 porta de entrada junto com 1 porta de saída no lado oeste também. O armazém inclui uma casa de banho, paredes interiores elevadas de 20 pés com isolamento, permitindo muitas opções diferentes para um excelente espaço de trabalho e armazenamento. Esta estrutura é construída para suportar ventos de até 150 mph por segurança. Existem vários lugares de estacionamento públicos com sistema de sprinklers no solo para manter a propriedade e o paisagismo saudáveis ​​e verdes. Esta propriedade tem entrada e saída EZ para quase todos os tipos de veículos. Coloque isso em demanda com mais de 2.400 pés quadrados. Armazém sob contrato antes que alguém chegue antes de você soco. Depósito exigido mediante acordo contratual. Expanda seu negócio a novos patamares com esta grande oportunidade hoje.
Considerações Financeiras
Preço:
$449,000
Taxa de HOA:
N/D
Valor do Imposto:
$1100
Preço por m²:
$170.08
Descrição Legal do Imposto:
Lotes 6704 e 6705 Blk 217 Florida Shores No 7 MB 23 PGs 117-1 18 inc por ou 1923 pg 0556 por ou 5050 pg 0272 por ou 5537 p G 4869 por ou 7781 pg 1637 por ou 7786 pg 3158
Características Exteriores
Tamanho do Lote:
8800
Características do Lote:
Distrito comercial central, limites da cidade, parque industrial, pavimentado
Beira-mar:
Não
Vagas de Estacionamento:
N/D
Estacionamento:
Vagas de Estacionamento - 1 a 5
Telhado:
Metal
Piscina:
Não
Características da Piscina:
N/D
Características Interiores
Quartos:
Banheiros:
0
Aquecimento:
N/D
Resfriamento:
Unidade(s) Mini-Split
Eletrodomésticos:
N/D
Mobiliado:
Não
Andar:
Concreto
Níveis:
Um
Características Adicionais
Subtipo de Imóvel:
Armazém
Estilo:
N/D
Ano de Construção:
2025
Tipo de Construção:
Estrutura metálica, revestimento metálico
Vagas na Garagem:
Não
Vagas Cobertas:
N/D
Orientação da Fachada:
Oeste
Animais Permitidos:
Não
Condição Especial:
Nenhum
Características Adicionais:
N/D
Características Adicionais 2:
N/D
Mapa
  • Endereço
    2421 Guava Drive GUAVA ST
Fale com um profissional
Por Que Nos Escolher?
  • Comunicação e Transparência
  • Negociação Qualificada
  • Rede Profissional Robusta
  • Suporte Pós-Venda
Propriedades em Destaque

Imóveis relacionados

avt
Daniel Dourado
$ 1,000,000
avt
Daniel Dourado
$ 244,900
avt
Daniel Dourado
$ 229,900
avt
Daniel Dourado
$ 200,000
avt
Daniel Dourado
$ 475,000
avt
Daniel Dourado
$ 8,000,000
avt
Daniel Dourado
$ 480,000
avt
Daniel Dourado
$ 499,000
avt
Daniel Dourado
$ 525,000
avt
Daniel Dourado
$ 650,000
avt
Daniel Dourado
$ 1,050,000
avt
Daniel Dourado
$ 899,000