Active

$303,490

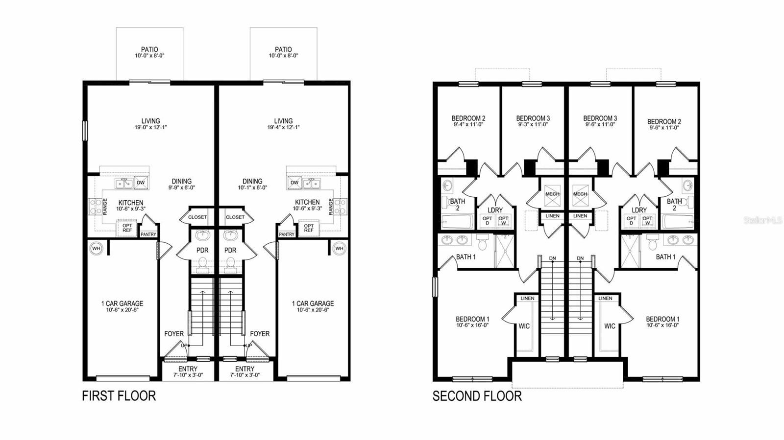
Features:
  • 3 Bedrooms
  • 3 Bathrooms
  • 1464 sq ft
Overview
  • ID: MFRTB8466773
  • Bedrooms: 3
  • Bathrooms: 3
  • Size: 1464 sq ft
Property Details
Remarks
Under Construction. The builder is offering buyers up to $25,000 towards closing costs with the use of a preferred lender and title company. Located off SR-56, Woodcreek offers new homes in Wesley Chapel with a prime location that you won’t want to pass up. At the center of this growing city, you’ll be just 15-minutes from I-75 and Tampa Premium Outlets, Main Event Entertainment, and just 5-minutes from Wiregrass Mall and its several dining establishments such as Grill Smith, Red Robin, Noble Crust, and countless other options. Several hospitals serve the area such as St. Joseph and Advent Health, which is just minutes from the community. Pasco County Schools are within 10 minutes of Woodcreek, as is the soon-to-be Wesley Chapel Sports Complex. Popular grocery stores like Target and Publix are all right down the road as well. Woodcreek features our D.R. Horton express and preferred series that include Luxury Vinyl in the main living and dining area, a stainless-steel appliance package, Quartz countertops, all concrete block construction on the 1st and 2nd stories, and D.R. Horton’s Smart Home system. Other inventory options may be available in this community. Please reach out for list of availability. Pictures, photographs, colors, features, and sizes are for illustration purposes only and will vary from the homes as built. Home and community information, including pricing, included features, terms, availability, and amenities, are subject to change and prior sale at any time without notice or obligation. Materials may vary based on availability. D.R. Horton Reserves all Rights.
Financial Considerations
Price:
$303,490
HOA Fee:
200
Tax Amount:
$0
Price per SqFt:
$207.3
Tax Legal Description:
WYNDFIELDS SOUTH PHASES 2B AND 2C PB 98 PG 69 BLOCK 12 LOT 9
Exterior Features
Lot Size:
0
Lot Features:
N/A
Waterfront:
No
Parking Spaces:
N/A
Parking:
N/A
Roof:
Shingle
Pool:
No
Pool Features:
Other
Interior Features
Bedrooms:
3
Bathrooms:
3
Heating:
Central, Heat Pump
Cooling:
Central Air
Appliances:
Dishwasher, Dryer, Microwave, Range, Refrigerator, Washer
Furnished:
Yes
Floor:
Carpet, Luxury Vinyl
Levels:
Two
Additional Features
Property Sub Type:
Townhouse
Style:
N/A
Year Built:
2026
Construction Type:
Block, Stucco
Garage Spaces:
Yes
Covered Spaces:
N/A
Direction Faces:
Northwest
Pets Allowed:
Yes
Special Condition:
None
Additional Features:
N/A
Additional Features 2:
Per HOA guidelines
Map
  • Address
    32540 MIDSUMMER NIGHT LN
Contact a Professional
Why Choose Us?
  • Communication and Transparency
  • Skilled Negotiation
  • Robust Professional Network
  • After-Sale Support
Featured Properties

Related Properties

avt
Daniel Dourado
$ 254,900
avt
Daniel Dourado
$ 307,900
avt
Daniel Dourado
$ 439,900
avt
Daniel Dourado
$ 345,000
avt
Daniel Dourado
$ 810,000
avt
Daniel Dourado
$ 384,900
avt
Daniel Dourado
$ 224,999
avt
Daniel Dourado
$ 355,000
img
  • Featured
  • Active
Townhouse

12508 CASTLE HILL DR

  • 2
  • 3
  • 108 m²
avt
Daniel Dourado
$ 225,000
avt
Daniel Dourado
$ 450,900
avt
Daniel Dourado
$ 285,000
img
  • Featured
  • Active
Townhouse

9778 BUCKLOW HILL DR

  • 3
  • 3
  • 198 m²
avt
Daniel Dourado
$ 554,900