Active

$349,000

Features:
  • 4 Bedrooms
  • 3 Bathrooms
  • 1724 sq ft
Overview
  • ID: MFRTB8424767
  • Bedrooms: 4
  • Bathrooms: 3
  • Size: 1724 sq ft
Property Details
Remarks
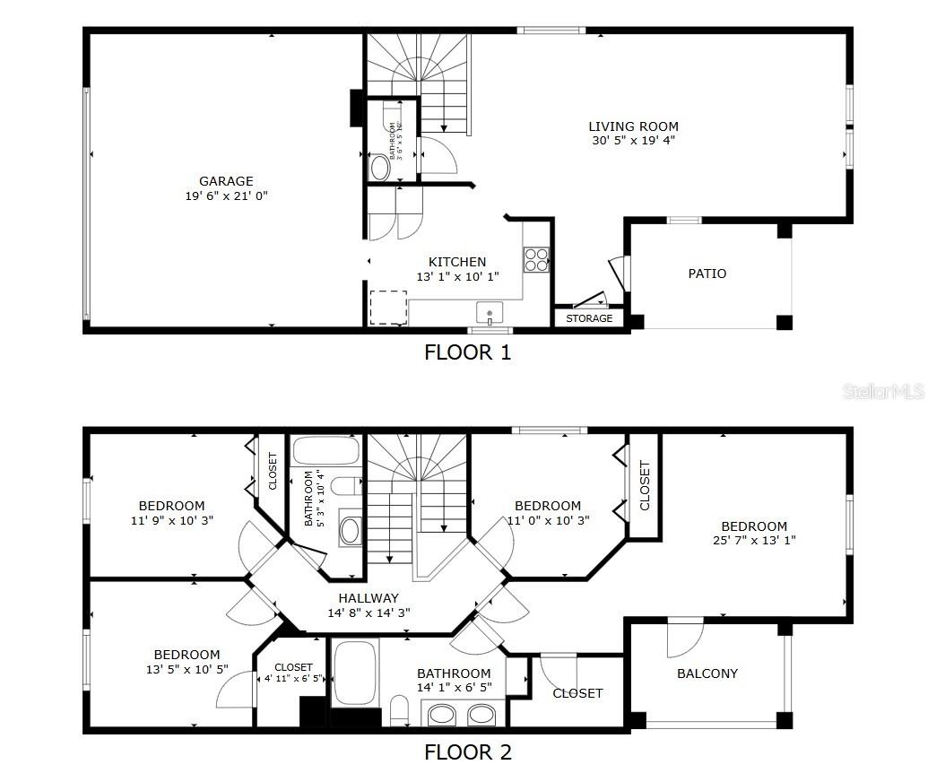
Welcome to this spacious 4-bedroom, 2.5-bath condo-home in the heart of Carrollwood. The downstairs features a large great room and dining area, a convenient half bath, and a full kitchen with pantry. The kitchen’s location just off the garage makes unloading groceries simple and efficient. The oversized garage offers plenty of storage, washer/dryer hookups, and even an extra refrigerator. Inside, the home boasts neutral gray and white tones and uniform vinyl plank flooring throughout for easy maintenance. Upstairs, a wrought iron banister leads to all four bedrooms. The primary suite includes a walk-in closet, en-suite bath with double sinks, soaking tub/shower combo, and access to a private balcony overlooking green, park-like views. Three additional bedrooms share a full bath with tub. Enjoy maintenance-free living for only $320 per month! Condo ownership covers lawn care, pest control, amenities and more. This pet-friendly gated community features green spaces, dog stations, and a fully fenced dog park with agility obstacles. There is a private pool for condo owners only, a playground a tennis court and even an car spa for residents to care for their vehicles. This unique ownership opportunity offers all the freedoms of conventional home-ownership with the conveniences of low-maintenance living.
Financial Considerations
Price:
$349,000
HOA Fee:
N/A
Tax Amount:
$5067.57
Price per SqFt:
$202.44
Tax Legal Description:
THE VILLAS AT CARROLLWOOD CONDOMINIUMS UNIT 1.65 AND AN UNDIV INT IN COMMON ELEMENTS
Exterior Features
Lot Size:
1069
Lot Features:
N/A
Waterfront:
No
Parking Spaces:
N/A
Parking:
Alley Access, Garage Faces Rear
Roof:
Tile
Pool:
No
Pool Features:
N/A
Interior Features
Bedrooms:
4
Bathrooms:
3
Heating:
Central, Electric
Cooling:
Central Air
Appliances:
Dishwasher, Dryer, Electric Water Heater, Microwave, Range, Refrigerator, Washer
Furnished:
No
Floor:
Luxury Vinyl, Tile
Levels:
Two
Additional Features
Property Sub Type:
Condominium
Style:
N/A
Year Built:
2001
Construction Type:
Block, Stucco
Garage Spaces:
Yes
Covered Spaces:
N/A
Direction Faces:
East
Pets Allowed:
No
Special Condition:
None
Additional Features:
Balcony
Additional Features 2:
Verify/Check with Condo Association
Map
  • Address
    4007 BANGALOW PALM CT #4007
Contact a Professional
Why Choose Us?
  • Communication and Transparency
  • Skilled Negotiation
  • Robust Professional Network
  • After-Sale Support
Featured Properties

Related Properties

img
  • Featured
  • Active
Condominium

2460 GRAND CENTRAL PKWY #9

  • 3
  • 2
  • 135 m²
avt
Daniel Dourado
$ 255,000
img
  • Featured
  • Active
Condominium

14226 FREDRICKSBURG DR #220

  • 3
  • 3
  • 144 m²
avt
Daniel Dourado
$ 265,000
avt
Daniel Dourado
$ 218,900
img
  • Featured
  • Active
Condominium

2586 GRAND CENTRAL PKWY #9

  • 3
  • 2
  • 135 m²
avt
Daniel Dourado
$ 265,000
img
  • Featured
  • Active
Condominium

810 BAHIA DEL SOL DR #16

  • 2
  • 2
  • 101 m²
avt
Daniel Dourado
$ 285,000
avt
Daniel Dourado
$ 375,000
img
  • Featured
  • Active
Condominium

2400 FEATHER SOUND DR #928

  • 2
  • 2
  • 96 m²
avt
Daniel Dourado
$ 220,000
img
  • Featured
  • Active
Condominium

1754 CALLE MCLEARY #1101

  • 3
  • 3
  • 242 m²
avt
Daniel Dourado
$ 2,195,000
avt
Daniel Dourado
$ 309,900
avt
Daniel Dourado
$ 339,000
img
  • Featured
  • Active
Condominium

2185 GULF OF MEXICO DR #212

  • 3
  • 2
  • 227 m²
avt
Daniel Dourado
$ 1,995,000
avt
Daniel Dourado
$ 225,000