Active

$406,000

Features:
  • 3 Bedrooms
  • 3 Bathrooms
  • 1776 sq ft
Overview
  • ID: MFRTB8423854
  • Bedrooms: 3
  • Bathrooms: 3
  • Size: 1776 sq ft
Property Details
Remarks
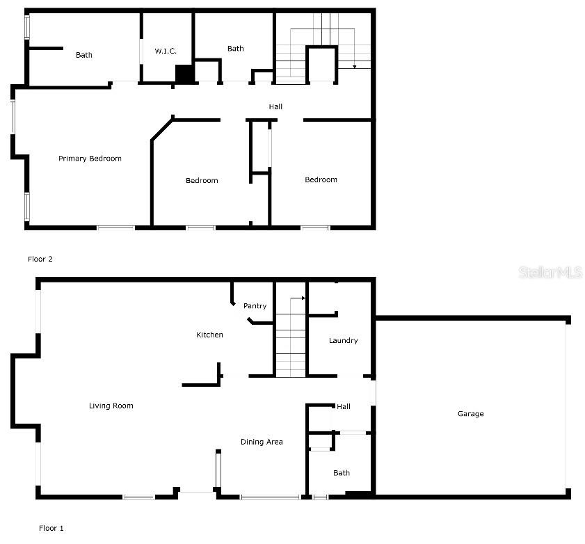
Welcome home to effortless living in this turnkey 3-bedroom, 2.5-bath townhome—featuring the largest driveway and most spacious floor plan in the community. From the moment you step inside, you're greeted by an open-concept layout that draws your eye to two sets of sliding glass doors, seamlessly extending your living space to a private patio retreat, overlooking a pond—perfect for morning coffee or evening unwinding. This thoughtfully designed home offers a spacious 2-car garage, stainless steel appliances, a dedicated dining area ideal for hosting, an oversized laundry room with extra storage, and a convenient half bath for guests. Upstairs, you’ll find two generously sized bedrooms with a shared full bath, plus a luxurious owner’s suite tucked at the end of the hall—complete with a large walk-in closet, dual vanities, and a relaxing tub/shower combo. Enjoy resort-style amenities just steps from your door: a gated entrance, 4,000 sq ft clubhouse, state-of-the-art fitness center, billiards room, sparkling pool, and spa. The HOA covers roof care, exterior maintenance, landscaping, and more—giving you peace of mind and the freedom to focus on what matters most. Zoned for A-rated Robinson High School, minutes from MacDill Air Force Base, and close to everything Tampa Bay has to offer—this home is the perfect blend of comfort, convenience, and community. Brand new roof and AC is only a few years old.
Financial Considerations
Price:
$406,000
HOA Fee:
639.37
Tax Amount:
$3293.67
Price per SqFt:
$228.6
Tax Legal Description:
SCHOONER COVE A CONDOMINIUM PHASE 68 UNIT 303 AND AN UNDIV INT IN COMMON ELEMENTS
Exterior Features
Lot Size:
2
Lot Features:
N/A
Waterfront:
No
Parking Spaces:
N/A
Parking:
N/A
Roof:
Shingle
Pool:
No
Pool Features:
N/A
Interior Features
Bedrooms:
3
Bathrooms:
3
Heating:
Central
Cooling:
Central Air
Appliances:
Dishwasher, Dryer, Microwave, Range, Refrigerator, Washer
Furnished:
No
Floor:
Carpet, Tile
Levels:
Two
Additional Features
Property Sub Type:
Townhouse
Style:
N/A
Year Built:
2011
Construction Type:
Stucco
Garage Spaces:
Yes
Covered Spaces:
N/A
Direction Faces:
Northwest
Pets Allowed:
Yes
Special Condition:
None
Additional Features:
Sidewalk
Additional Features 2:
Verify with HOA
Map
  • Address
    7001 INTERBAY BLVD #303
Contact a Professional
Why Choose Us?
  • Communication and Transparency
  • Skilled Negotiation
  • Robust Professional Network
  • After-Sale Support
Featured Properties

Related Properties

avt
Daniel Dourado
$ 305,000
avt
Daniel Dourado
$ 255,000
avt
Daniel Dourado
$ 365,000
avt
Daniel Dourado
$ 300,000
avt
Daniel Dourado
$ 289,000
avt
Daniel Dourado
$ 298,720
img
  • Featured
  • Active
Townhouse

2346 RIO PINAR LAKES BLVD

  • 3
  • 3
  • 106 m²
avt
Daniel Dourado
$ 265,000
avt
Daniel Dourado
$ 267,000
img
  • Featured
  • Active
Townhouse

2965 BAYSHORE POINTE DR

  • 4
  • 4
  • 157 m²
avt
Daniel Dourado
$ 439,900
avt
Daniel Dourado
$ 306,900
img
  • Featured
  • Active
Townhouse

6050 RIVER TRACE RD

  • 3
  • 3
  • 153 m²
avt
Daniel Dourado
$ 299,000
img
  • Featured
  • Active
Townhouse

1700 TROPICAL PALMS CIR

  • 6
  • 5
  • 213 m²
avt
Daniel Dourado
$ 520,000