Active

$639,999

Features:
  • 3 Bedrooms
  • 3 Bathrooms
  • 2224 sq ft
Overview
  • ID: MFRC7488916
  • Bedrooms: 3
  • Bathrooms: 3
  • Size: 2224 sq ft
Property Details
Remarks
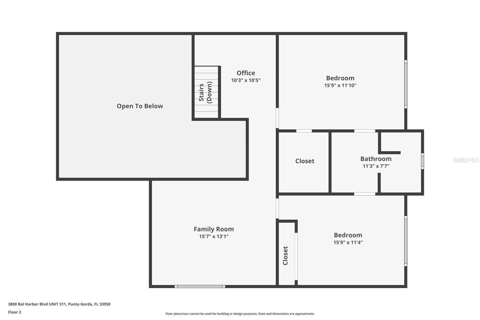
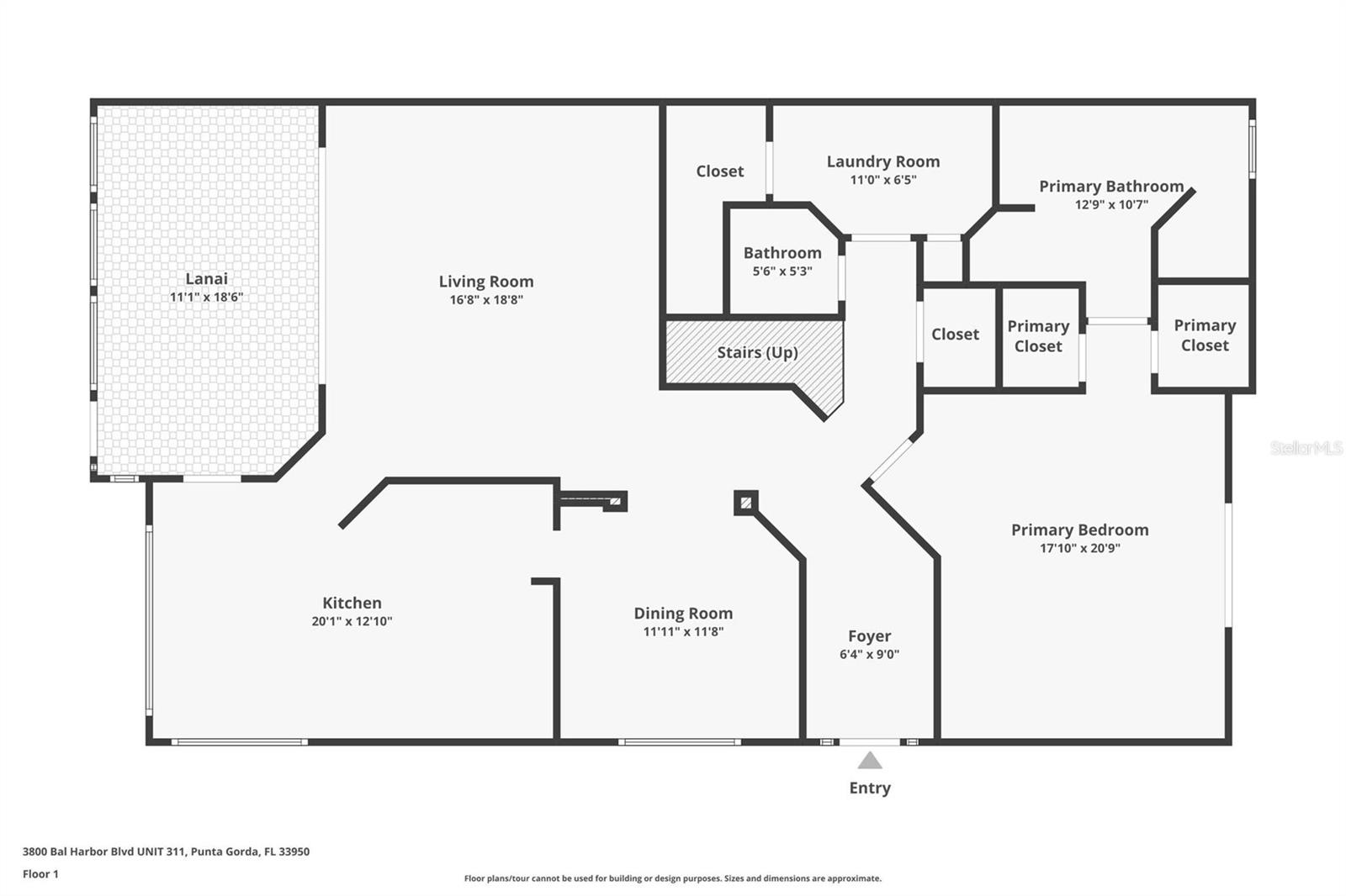
This beautiful Harbor Landing END unit offers over 2200 square feet of living space with 3 bedrooms and 2 and a half bathrooms. The highlight of this Townhome is the unobstructed access to Charlotte Harbor through Buckley Pass, perfect for those who love to sail. The unit also comes with a deeded 20-foot dock with 50 amp electric, suitable for a 50-foot boat and boatlifts are allowed. This end unit has been upgraded with a new roof, Trane 5-ton AC, refrigerator, tankless hot water heater, tile and carpet throughout. The upstairs bathroom has been completely renovated and the kitchen now features new granite countertops. The home also boasts electric blinds in the Florida room, impact doors in the master bedroom, and a generator hook-up in the courtyard. The windows have been tinted and have hurricane shutters with power for added protection. Inside, you'll find new ceiling fans, fresh paint, crown molding, and cameras and security system. Other upgrades include new rollers for the sliding glass doors and a new Toto toilet downstairs. The community pool has been recently updated with new trees, solar power, and a heat pump. This home truly has it all, making it the perfect place to call home. It's wonderful location provides easy access to all that Punta Gorda has to offer. Situated near the charming Fisherman's Village, Harbor Landing is located in Punta Gorda Isles allowing you access to yacht clubs, boating clubs, and fishing clubs, making it the perfect spot for water enthusiasts. Its proximity to downtown restaurants, gives residents plenty of options for dining out. And with the beautiful historic district nearby, residents can soak in the rich history and admire the stunning architecture of the area. Schedule a tour today. BE SURE TO CLICK THE FULL VIRTUAL TOUR LINKS FOR DETAILS
Financial Considerations
Price:
$639,999
HOA Fee:
987
Tax Amount:
$5546.92
Price per SqFt:
$287.77
Tax Legal Description:
HBL 003 0003 0311 HARBOR LANDING PH 3 BLDG 3 UN 311 & DOCK 9 1334/2043-45 3675/2084 3675/2085-DS9 4075/1027 4075/1029-DS9 4248/343 4249/1609-DS9 4744/1604 4744/1605-DS9
Exterior Features
Lot Size:
2445
Lot Features:
N/A
Waterfront:
Yes
Parking Spaces:
N/A
Parking:
N/A
Roof:
Tile
Pool:
No
Pool Features:
N/A
Interior Features
Bedrooms:
3
Bathrooms:
3
Heating:
Electric
Cooling:
Central Air
Appliances:
Dishwasher, Disposal, Dryer, Electric Water Heater, Microwave, Range, Refrigerator, Tankless Water Heater, Washer
Furnished:
No
Floor:
Carpet, Laminate, Tile
Levels:
Two
Additional Features
Property Sub Type:
Townhouse
Style:
N/A
Year Built:
1994
Construction Type:
Block, Stucco
Garage Spaces:
Yes
Covered Spaces:
N/A
Direction Faces:
South
Pets Allowed:
No
Special Condition:
None
Additional Features:
Courtyard, Hurricane Shutters, Irrigation System, Rain Gutters
Additional Features 2:
See Rules and Regulations
Map
  • Address
    3800 BAL HARBOR BLVD #311
Contact a Professional
Why Choose Us?
  • Communication and Transparency
  • Skilled Negotiation
  • Robust Professional Network
  • After-Sale Support
Featured Properties

Related Properties

avt
Daniel Dourado
$ 449,000
avt
Daniel Dourado
$ 330,000
avt
Daniel Dourado
$ 359,900
img
  • Featured
  • Active
Townhouse

1246 RIO DE JANEIRO AVE #510

  • 2
  • 3
  • 107 m²
avt
Daniel Dourado
$ 210,000
avt
Daniel Dourado
$ 229,900
img
  • Featured
  • Active
Townhouse

17503 HIDDEN FOREST DR

  • 3
  • 3
  • 172 m²
avt
Daniel Dourado
$ 387,500
avt
Daniel Dourado
$ 289,539
avt
Daniel Dourado
$ 845,000
img
  • Featured
  • Active
Townhouse

7628 HERITAGE CROSSING WAY

  • 3
  • 3
  • 192 m²
avt
Daniel Dourado
$ 359,000
avt
Daniel Dourado
$ 899,000
img
  • Featured
  • Active
Townhouse

2272 WASHINGTON PALM CT

  • 3
  • 3
  • 166 m²
avt
Daniel Dourado
$ 389,900
img
  • Featured
  • Active
Townhouse

150 HARBOUR DRIVE #8

  • 3
  • 3
  • 232 m²
avt
Daniel Dourado
$ 640,000