Active

$669,000

Features:
  • 4 Bedrooms
  • 6 Bathrooms
  • 3112 sq ft
Overview
  • ID: MFRTB8305399
  • Bedrooms: 4
  • Bathrooms: 6
  • Size: 3112 sq ft
Property Details
Remarks
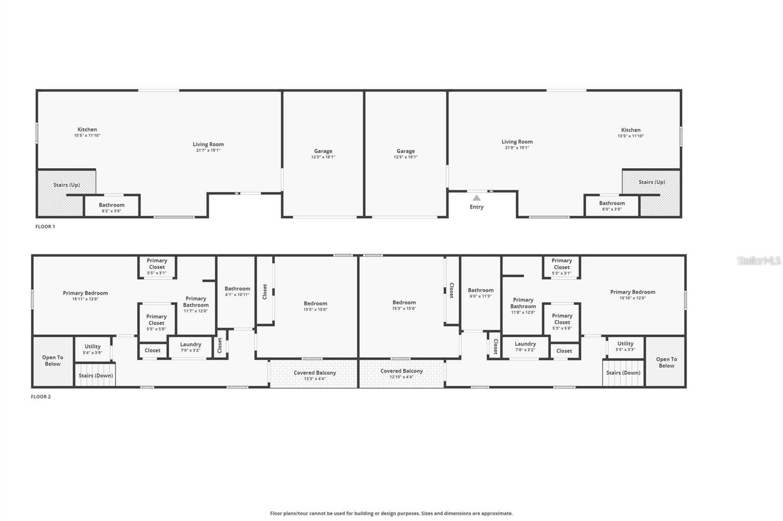
Fantastic oportunity with this 1 year old duplex in an ideal location, close to the Cotee River and tons of restaurants. One side is leased, providing immediate income, while the other side is available for owner occupancy or a second tenant or AirBnB! Each unit features a spacious, open floorplan. The modern kitchen boasts a center island with bar seating, ample cabinetry, stainless steel appliances and quartz countertops. Enjoy the indoor-outdoor flow with sliders leading to a private, fenced backyard, perfect for entertaining or relaxing. Half bath downstairs. The primary suite is upstairs and has a large, custom tiled shower, dual sinks and two walk-in closets. The second bedroom has an ensuite bath as well. The laundry is conveniently located in the hallway. The upstairs front covered porch is the ideal spot to enjoy your morning coffee or eveing refreshment. Luxury vinyl flooring throughout. One car garage with remote and driveway parking for two more cars. Each unit is identical with the left side featuring white cabinetry and the right side offering navy blue. Furniture on the right side is negotiable. Call today!
Financial Considerations
Price:
$669,000
HOA Fee:
N/A
Tax Amount:
$10812.53
Price per SqFt:
$214.97
Tax Legal Description:
C F YORK R/P PB 2 PG 58 LOT 16 & NORTH 20 FT LOT 15 BLOCK 11
Exterior Features
Lot Size:
10150
Lot Features:
Corner Lot
Waterfront:
No
Parking Spaces:
N/A
Parking:
Driveway, Garage Door Opener
Roof:
Shingle
Pool:
No
Pool Features:
N/A
Interior Features
Bedrooms:
4
Bathrooms:
6
Heating:
Central
Cooling:
Central Air
Appliances:
Dishwasher, Disposal, Dryer, Electric Water Heater, Microwave, Range, Refrigerator, Washer
Furnished:
Yes
Floor:
Luxury Vinyl
Levels:
N/A
Additional Features
Property Sub Type:
Duplex
Style:
N/A
Year Built:
2023
Construction Type:
Block, Stucco
Garage Spaces:
Yes
Covered Spaces:
N/A
Direction Faces:
N/A
Pets Allowed:
Yes
Special Condition:
None
Additional Features:
Balcony, Fence, Irrigation System, Lighting, Sliding Doors
Additional Features 2:
Check with City of Port Richey
Map
  • Address
    5630 QUEENER AVE
Contact a Professional
Why Choose Us?
  • Communication and Transparency
  • Skilled Negotiation
  • Robust Professional Network
  • After-Sale Support
Featured Properties

Related Properties

avt
Daniel Dourado
$ 699,900
img
  • Featured
  • Active
Duplex

5365 W HIGHWAY 40

  • 4
  • 2
  • 173 m²
avt
Daniel Dourado
$ 319,000
avt
Daniel Dourado
$ 416,000
img
  • Featured
  • Active
Duplex

2004 WISCONSIN AVE

  • 4
  • 2
  • 142 m²
avt
Daniel Dourado
$ 300,000
avt
Daniel Dourado
$ 315,000
avt
Daniel Dourado
$ 275,000
img
  • Featured
  • Active
Duplex

204 RIDGECREST LOOP

  • 6
  • 4
  • 191 m²
avt
Daniel Dourado
$ 524,900
avt
Daniel Dourado
$ 1,050,000
img
  • Featured
  • Active
Duplex

737 E CHURCH AVE #737 and 739

  • 4
  • 4
  • 236 m²
avt
Daniel Dourado
$ 440,000
img
  • Featured
  • Active
Duplex

20645/20647 MAJESTIC ST

  • 6
  • 4
  • 294 m²
avt
Daniel Dourado
$ 650,000
avt
Daniel Dourado
$ 475,000
avt
Daniel Dourado
$ 300,000