Active

$373,000

Features:
  • 3 Bedrooms
  • 2 Bathrooms
  • 1647 sq ft
Overview
  • ID: MFRC7504806
  • Bedrooms: 3
  • Bathrooms: 2
  • Size: 1647 sq ft
Property Details
Remarks
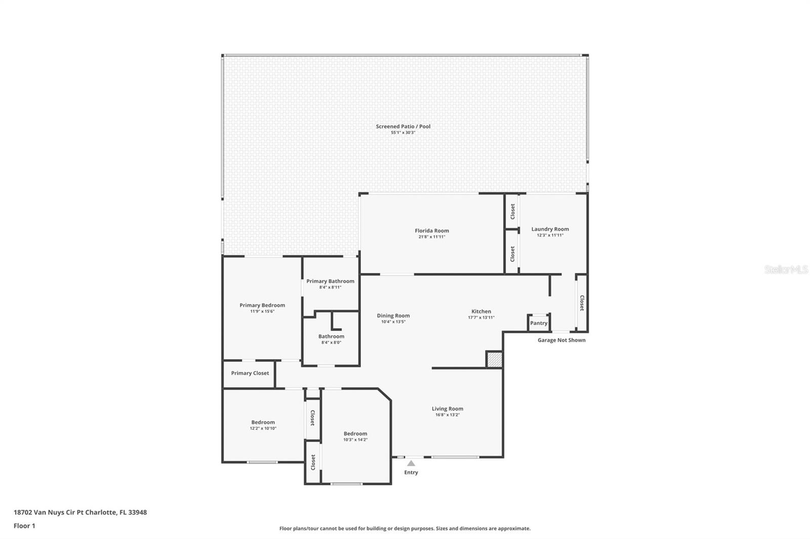
This nicely maintained Gulf-access 3-bedroom, 2-bathroom pool home in Port Charlotte offers the perfect setting for the ultimate Florida lifestyle. With 1,383 square feet of waterfront living space, this charming residence features sailboat access to Charlotte Harbor and the Gulf of Mexico. Enjoy 80 feet of waterfront with a 9,000 lb boat lift, a wooden dock with electricity, and quick access to open waters for all your boating adventures. Inside, you'll find a bright and open floor plan that invites natural light throughout the home. Large windows and French doors lead to the 264 square foot sunroom, creating an airy and expansive feel. The chef’s kitchen is a standout with stainless steel appliances, granite countertops, ample storage, and a pantry with sliding barn doors. The kitchen overlooks the sunroom, making it ideal for both entertaining and everyday living. The enclosed sunroom features a wall of pocket sliders that seamlessly connect to the pool area. The master suite is a private retreat with plush carpeting, pool access, a walk-in closet with a wall safe, and an ensuite bath with a walk-in shower. Two spacious guest bedrooms come with built-in closets and carpet flooring, one featuring a Murphy bed. The updated guest bathroom boasts a tiled walk-in shower. Off the kitchen, the convenient 144 square foot utility room has a washer/dryer and space for a home office, with sliding doors leading to the pool area. Outside, the screened-in pool area features a beautiful Diamond Brite pool with solar heating and a tranquil Koi pond stocked with colorful Koi fish. The backyard is fully fenced with large gates leading to the dock area. Additional highlights include wood laminate flooring, owned Solar electric (average electric bill was $36 per month), crown molding, an attached garage, hurricane shutters, and a new roof installed in 2019. This home’s prime location provides easy access to Florida’s best beaches, dining, shopping, world-class fishing, and tarpon tournaments. Spend the day at Punta Gorda’s Fisherman’s Village with live music and entertainment or catch a spring training game at Charlotte Sports Park, home to the Tampa Bay Rays and Charlotte Stone Crabs. Live the dream in this beautiful waterfront home—your perfect Florida escape!
Financial Considerations
Price:
$373,000
HOA Fee:
N/A
Tax Amount:
$2236.68
Price per SqFt:
$226.47
Tax Legal Description:
PORT CHARLOTTE SEC79 BLK4676 LT 6 612/2173 935/672 1768/195 1924/136
Exterior Features
Lot Size:
10001
Lot Features:
Paved
Waterfront:
Yes
Parking Spaces:
N/A
Parking:
Driveway, Garage Door Opener
Roof:
Shingle
Pool:
Yes
Pool Features:
Heated, In Ground, Screen Enclosure, Solar Heat
Interior Features
Bedrooms:
3
Bathrooms:
2
Heating:
Central
Cooling:
Central Air
Appliances:
Dishwasher, Disposal, Dryer, Electric Water Heater, Microwave, Range, Refrigerator, Washer
Furnished:
Yes
Floor:
Carpet, Ceramic Tile, Laminate
Levels:
One
Additional Features
Property Sub Type:
Single Family Residence
Style:
N/A
Year Built:
1979
Construction Type:
Stucco, Frame
Garage Spaces:
Yes
Covered Spaces:
N/A
Direction Faces:
South
Pets Allowed:
Yes
Special Condition:
None
Additional Features:
Hurricane Shutters, Rain Gutters, Sliding Doors
Additional Features 2:
N/A
Map
  • Address
    18702 VAN NUYS CIR
Contact a Professional
Why Choose Us?
  • Communication and Transparency
  • Skilled Negotiation
  • Robust Professional Network
  • After-Sale Support
Featured Properties

Related Properties

avt
Daniel Dourado
$ 339,000
avt
Daniel Dourado
$ 599,900
avt
Daniel Dourado
$ 899,000
avt
Daniel Dourado
$ 525,000
avt
Daniel Dourado
$ 699,000
avt
Daniel Dourado
$ 290,000
avt
Daniel Dourado
$ 649,999
avt
Daniel Dourado
$ 799,990
avt
Daniel Dourado
$ 3,350,000
avt
Daniel Dourado
$ 550,000
avt
Daniel Dourado
$ 525,000