Active

$339,900

Features:
  • 3 Bedrooms
  • 2 Bathrooms
  • 1695 sq ft
Overview
  • ID: MFRV4945853
  • Bedrooms: 3
  • Bathrooms: 2
  • Size: 1695 sq ft
Property Details
Remarks
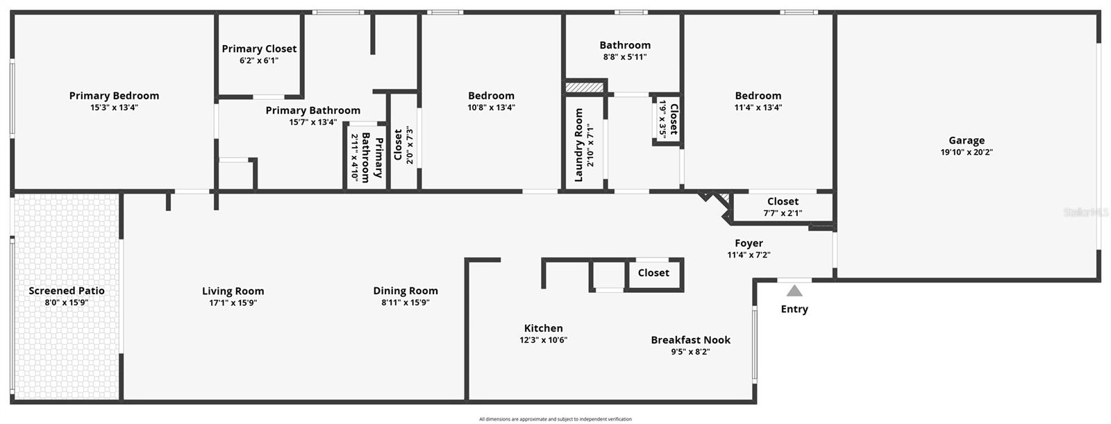
Immaculate, 3 bedroom, 2 bathroom home with water views and luxury finishes. Located in the Scottsmoor subdivision in the Halifax Plantation golf community, this Vanacore-built villa offers effortless Florida living with elegant upgrades and an unbeatable location. Constructed with durable concrete block and lovingly maintained by its original owner, this home combines style, function, and maintenance-free convenience. Step inside and be greeted by 11' ceilings, crown molding, and tile flooring throughout—freshly cleaned and sealed for a pristine finish. The eat-in kitchen features 36'' wood cabinetry, granite countertops, and flows naturally into the bright living area adorned with plantation shutters on every window. Enjoy the peaceful water and fountain views from your private screened patio, the perfect space to relax or entertain. The spacious primary suite includes a luxurious soaking tub, a walk-in shower, and a generous walk-in closet. Other highlights include an epoxy-coatedgarage floor, a low-maintenance exterior, and exceptional community benefits. The Scottsmoor community is rich with amenities: play pickleball, practice on the putting green, or stroll along the sidewalks and crosswalks, designed with safety for families and pets in mind. Optional memberships provide access to an 18-hole golf course, pro shop, restaurant, clubhouse, tennis courts, fitness center, and a community pool. This home offers the perfect blend of elegance, convenience, and active lifestyle options in one of the area's most desirable golf course communities. All information in this listing is intended to be accurate, but cannot be guaranteed.
Financial Considerations
Price:
$339,900
HOA Fee:
190
Tax Amount:
$2862.82
Price per SqFt:
$200.53
Tax Legal Description:
11 13 31 LOT 51 HALIFAX PLANTATION UNIT II SECTION P-1 MB 57 PGS 79-84 PER OR 7392 PG 4523 PER OR 7392 PG 4525
Exterior Features
Lot Size:
5200
Lot Features:
N/A
Waterfront:
Yes
Parking Spaces:
N/A
Parking:
N/A
Roof:
Shingle
Pool:
No
Pool Features:
N/A
Interior Features
Bedrooms:
3
Bathrooms:
2
Heating:
Electric
Cooling:
Central Air
Appliances:
Dishwasher, Dryer, Microwave, Range, Refrigerator, Washer
Furnished:
No
Floor:
Tile
Levels:
One
Additional Features
Property Sub Type:
Villa
Style:
N/A
Year Built:
2017
Construction Type:
Block, Concrete
Garage Spaces:
Yes
Covered Spaces:
N/A
Direction Faces:
North
Pets Allowed:
No
Special Condition:
None
Additional Features:
Rain Gutters
Additional Features 2:
Check with HOA and city.
Map
  • Address
    3148 BAILEY ANN DR
Contact a Professional
Why Choose Us?
  • Communication and Transparency
  • Skilled Negotiation
  • Robust Professional Network
  • After-Sale Support
Featured Properties

Related Properties

img
  • Featured
  • Active
Villa

9191 SE 166TH SPRUNG LN

  • 2
  • 2
  • 107 m²
avt
Daniel Dourado
$ 375,000
img
  • Featured
  • Active
Villa

7106 SAINT ANDREWS LN

  • 2
  • 2
  • 167 m²
avt
Daniel Dourado
$ 349,000
img
  • Featured
  • Active
Villa

2149 SANDALWOOD PL

  • 3
  • 2
  • 126 m²
avt
Daniel Dourado
$ 364,900
img
  • Featured
  • Active
Villa

4641 LA JOLLA DR

  • 3
  • 2
  • 171 m²
avt
Daniel Dourado
$ 340,000
img
  • Featured
  • Active
Villa

6935 STONEYWALK CT

  • 2
  • 2
  • 141 m²
avt
Daniel Dourado
$ 349,900
avt
Daniel Dourado
$ 300,000
img
  • Featured
  • Active
Villa

17308 HOLLY WELL AVE

  • 2
  • 3
  • 161 m²
avt
Daniel Dourado
$ 280,000
avt
Daniel Dourado
$ 445,000
img
  • Featured
  • Active
Villa

1211 CAPRI ISLES BLVD #6

  • 2
  • 2
  • 109 m²
avt
Daniel Dourado
$ 315,000
avt
Daniel Dourado
$ 224,000
img
  • Featured
  • Active
Villa

2323 HARBOUR OAKS DR

  • 3
  • 3
  • 222 m²
avt
Daniel Dourado
$ 1,097,000
img
  • Featured
  • Active
Villa

5922 PHOEBENEST DR

  • 3
  • 2
  • 159 m²
avt
Daniel Dourado
$ 350,000