Active

$1,599,000

Features:
  • 4 Bedrooms
  • 2 Bathrooms
  • 2488 sq ft
Overview
  • ID: MFROM714029
  • Bedrooms: 4
  • Bathrooms: 2
  • Size: 2488 sq ft
Property Details
Remarks
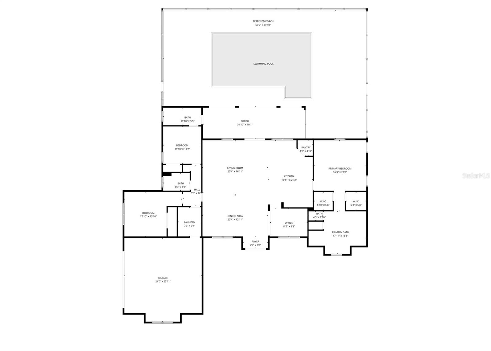
Experience refined country living at its finest in this beautifully maintained 2,400+ sq ft custom estate, perfectly positioned on 5+ pristine, fully fenced acres with an impressive automatic gated entry. From the moment you arrive, the property radiates privacy, sophistication, and pride of ownership. Inside, the home welcomes you with an open-concept design, soaring 10-ft crown-molded ceilings, and an abundance of natural light that fills the spacious living areas. The bright, airy layout is ideal for both relaxed everyday living and effortless entertaining. At the heart of the home, the chef’s kitchen shines with marble countertops, a generous sit-in island with built-in storage, double wall ovens, and premium finishes, all enhanced by built-in surround sound that carries through the main living spaces. The primary suite is a luxurious escape featuring dual walk-in closets, a 6-ft soaking tub, a beautifully tiled walk-in shower, and a dual-sink vanity designed for comfort and style. The finished garage stands out with custom cabinetry, shelving, and tiled flooring—offering exceptional storage, organization, and workspace for hobbies, vehicles, or equipment. Step outside to a true resort-style oasis. The 16x32 heated in-ground pool, spa-inspired hot tub, and expansive patio invite year-round relaxation and outdoor living. Whether you’re enjoying quiet mornings by the water or hosting weekend gatherings, this space elevates everyday life. Energy-efficient upgrades—including solar panels and a tankless water heater—provide modern convenience and long-term savings. The open acreage offers endless possibilities: bring your horses, create recreational spaces, or plan future expansions tailored to your lifestyle. All of this is ideally located just 15 minutes from downtown Ocala and under 30 minutes from the World Equestrian Center—close enough for convenience, yet far enough to enjoy the tranquility of private estate living. Seller is offering the option to purchase fully furnished, making this a rare turnkey property that effortlessly combines luxury, comfort, and unmatched privacy. Properties like this simply don’t come along often. Schedule your tour TODAY!
Financial Considerations
Price:
$1,599,000
HOA Fee:
N/A
Tax Amount:
$9133.87
Price per SqFt:
$642.68
Tax Legal Description:
SEC 32 TWP 14 RGE 22 COM SW COR OF SE 1/4 OF NW 1/4 N 00-03-58 E 25 FT N 89-57-47 E 1272.43 FT N 00-02-58 E 698.41 FT TO POB S 89-57-47 W 687.22 FT N 00-03-58 E 321.07 FT S 89-56-02 E 687.13 FT S 00-02-58 W 319.83 FT TO POB
Exterior Features
Lot Size:
220414
Lot Features:
N/A
Waterfront:
No
Parking Spaces:
N/A
Parking:
N/A
Roof:
Shingle
Pool:
Yes
Pool Features:
Heated, In Ground, Lighting, Other
Interior Features
Bedrooms:
4
Bathrooms:
2
Heating:
Electric, Solar
Cooling:
Central Air
Appliances:
Built-In Oven, Dishwasher, Dryer, Electric Water Heater, Exhaust Fan, Microwave, Other, Range, Refrigerator, Tankless Water Heater, Washer
Furnished:
Yes
Floor:
Tile, Wood
Levels:
One
Additional Features
Property Sub Type:
Single Family Residence
Style:
N/A
Year Built:
2018
Construction Type:
Block, Stucco
Garage Spaces:
Yes
Covered Spaces:
N/A
Direction Faces:
Northwest
Pets Allowed:
No
Special Condition:
None
Additional Features:
French Doors, Lighting, Other, Private Entrance, Private Mailbox, Private Yard, RV Hookup, Storage
Additional Features 2:
N/A
Map
  • Address
    4420 NE 7TH AVE
Contact a Professional
Why Choose Us?
  • Communication and Transparency
  • Skilled Negotiation
  • Robust Professional Network
  • After-Sale Support
Featured Properties

Related Properties

avt
Daniel Dourado
$ 450,000
avt
Daniel Dourado
$ 575,000
avt
Daniel Dourado
$ 439,000
avt
Daniel Dourado
$ 485,000
avt
Daniel Dourado
$ 1,549,900
avt
Daniel Dourado
$ 1,485,120
avt
Daniel Dourado
$ 399,900
avt
Daniel Dourado
$ 370,000