Sold

$229,990

Features:
  • 3 Bedrooms
  • 3 Bathrooms
  • 1458 sq ft
Overview
  • ID: MFROM701645
  • Bedrooms: 3
  • Bathrooms: 3
  • Size: 1458 sq ft
Property Details
Remarks
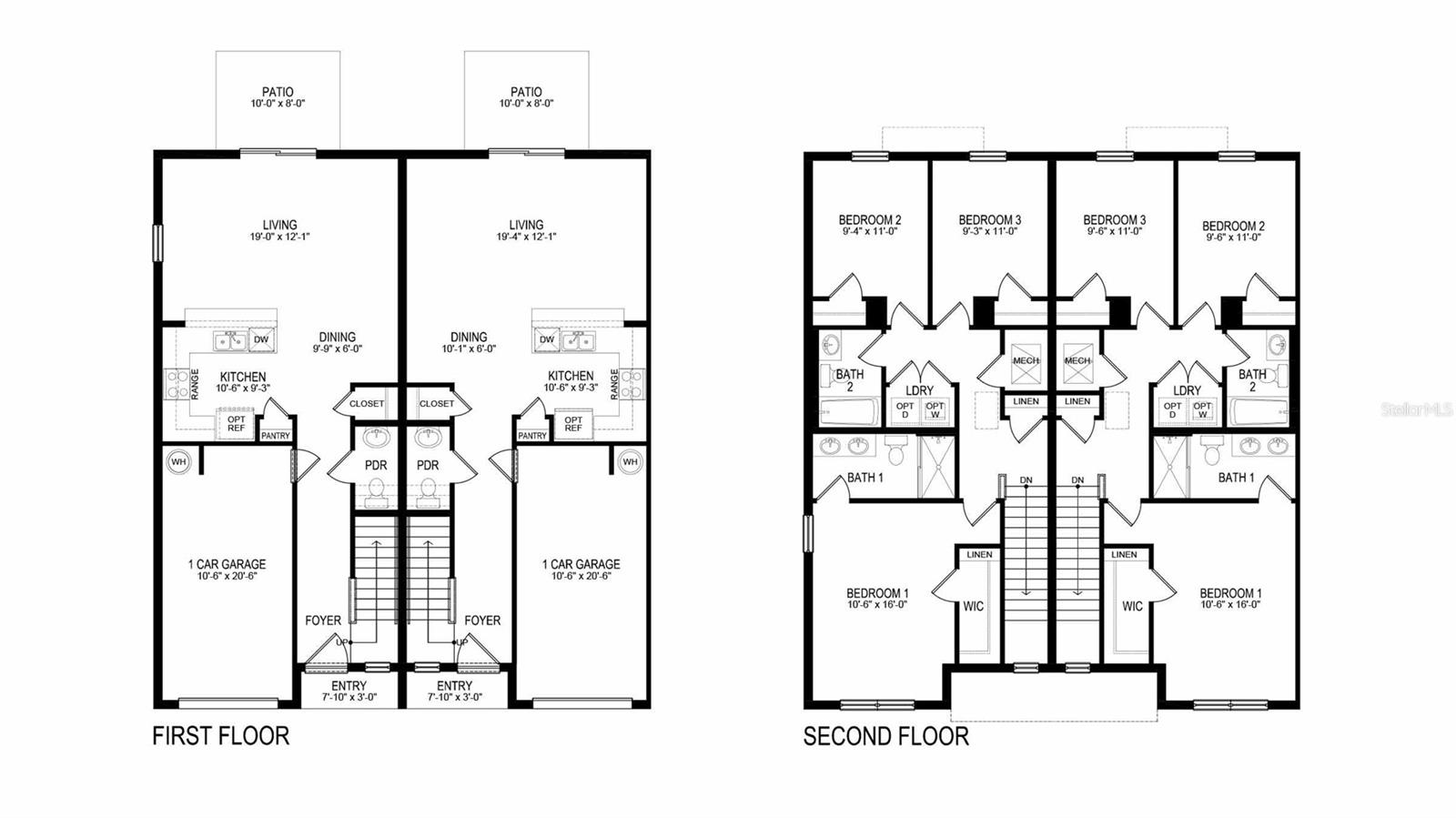
One or more photo(s) has been virtually staged. Under Construction. This two-story townhome has an open concept downstairs layout that includes a large open kitchen, a powder room, and spacious family room that overlooks a patio. The second floor includes a spacious Primary Suite with an ensuite bathroom, two additional bedrooms, a 2nd full bathroom, and a laundry area. This home comes with all appliances including a refrigerator, built-in dishwasher, electric range, microwave, washer, and dryer. Pictures, photographs, colors, features, and sizes are for illustration purposes only and will vary from the homes as built. Home and community information including pricing, included features, terms, availability and amenities are subject to change and prior sale at any time without notice or obligation. CRC057592.
Financial Considerations
Price:
$229,990
HOA Fee:
405
Tax Amount:
$0
Price per SqFt:
$157.74
Tax Legal Description:
SEC 17 TWP 16 RGE 21 PLAT BOOK 015 PAGE 130 LAUREL COMMONS LOT 31
Exterior Features
Lot Size:
1600
Lot Features:
N/A
Waterfront:
No
Parking Spaces:
N/A
Parking:
N/A
Roof:
Shingle
Pool:
No
Pool Features:
N/A
Interior Features
Bedrooms:
3
Bathrooms:
3
Heating:
Central, Electric
Cooling:
Central Air
Appliances:
Dishwasher, Dryer, Microwave, Range, Refrigerator, Washer
Furnished:
No
Floor:
Carpet, Ceramic Tile
Levels:
Two
Additional Features
Property Sub Type:
Townhouse
Style:
N/A
Year Built:
2025
Construction Type:
Frame
Garage Spaces:
Yes
Covered Spaces:
N/A
Direction Faces:
Northwest
Pets Allowed:
Yes
Special Condition:
None
Additional Features:
N/A
Additional Features 2:
Per HOA Guidelines
Map
  • Address
    6563 SW 81ST LOOP
Contact a Professional
Why Choose Us?
  • Communication and Transparency
  • Skilled Negotiation
  • Robust Professional Network
  • After-Sale Support
Featured Properties

Related Properties

img
  • Featured
  • Active
Townhouse

31788 KESTREL CALLING DR

  • 3
  • 3
  • 148 m²
avt
Daniel Dourado
$ 299,990
img
  • Featured
  • Active
Townhouse

31784 KESTREL CALLING DR

  • 3
  • 3
  • 148 m²
avt
Daniel Dourado
$ 295,990
img
  • Featured
  • Active
Townhouse

31825 KESTREL CALLING DR

  • 3
  • 3
  • 148 m²
avt
Daniel Dourado
$ 289,990
avt
Daniel Dourado
$ 299,750
avt
Daniel Dourado
$ 348,455
avt
Daniel Dourado
$ 349,000
img
  • Featured
  • Active
Townhouse

6343 MERRICK LANDING BLVD

  • 2
  • 2
  • 99 m²
avt
Daniel Dourado
$ 339,775
avt
Daniel Dourado
$ 239,900
img
  • Featured
  • Active
Townhouse

18103 PARADISE POINT DR

  • 3
  • 3
  • 126 m²
avt
Daniel Dourado
$ 225,000
avt
Daniel Dourado
$ 245,000
avt
Daniel Dourado
$ 300,015
avt
Daniel Dourado
$ 235,000