Active

$319,000

Features:
  • 2 Bedrooms
  • 2 Bathrooms
  • 1994 sq ft
Overview
  • ID: MFRC7514691
  • Bedrooms: 2
  • Bathrooms: 2
  • Size: 1994 sq ft
Property Details
Remarks
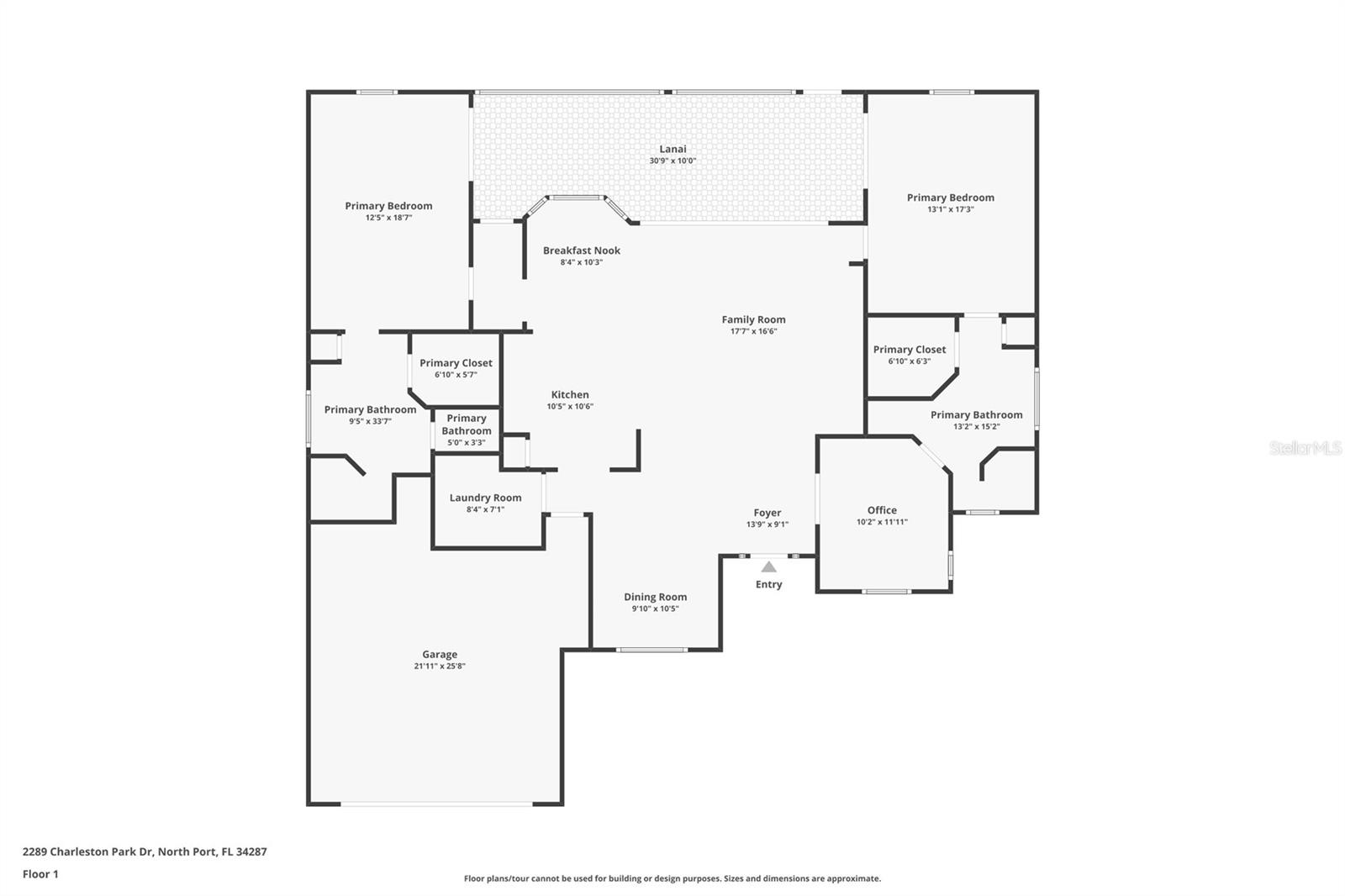
Beautiful 2 Bedroom, 2 bathroom and Den Home located in the gated community of Charleston Park! Step into comfort, charm, and easy living in this well-maintained home. This home is filled with features that make every day a little brighter and every space more enjoyable. From the moment you arrive, you'll be drawn to the picture-perfect landscaping and fresh curb appeal. A newer roof (2020) and A/C system (2022) mean peace of mind and energy savings. Inside, you’re greeted by vaulted ceilings and open living areas that feel light, bright, and airy. The living room includes plant shelves for extra style, plus sliding doors that lead to a large screened lanai—perfect for sipping coffee or enjoying the Florida breeze. The kitchen is a true standout with new Quartz countertops, crisp white cabinets, a stylish tile backsplash, and updated lighting. A deep sink, new disposal, and matching appliances add convenience. The breakfast nook, framed by aquarium glass, creates a cozy and sunny spot to start your day. The split floor plan offers privacy for both bedrooms, each with walk-in closets and full en suite baths. The master suite includes sliding doors to the lanai and a private bathroom with a walk-in shower. The guest bedroom also features sliding doors and shares access to a second walk-in shower with the nearby den—perfect for extra living space, a craft room, or a quiet place to work. Luxury vinyl plank flooring flows throughout most of the home. The laundry room includes a washer, dryer, and wet sink. Additional upgrades include epoxy garage floors, leaf filters on gutters, an under kitchen RO water system with water softener, and mostly impact-rated windows for added security and efficiency (except sliding doors). Located near I-75 and US 41, you’re close to everything—beaches, shopping, dining, and more. This home is clean, move-in ready, and packed with value. Don’t miss it—schedule your private tour today!
Financial Considerations
Price:
$319,000
HOA Fee:
319
Tax Amount:
$4556.78
Price per SqFt:
$159.98
Tax Legal Description:
LOT 32 BLK 2609 52ND ADD TO PORT CHARLOTTE
Exterior Features
Lot Size:
10149
Lot Features:
Greenbelt, City Limits, Landscaped, Sidewalk, Paved, Private
Waterfront:
No
Parking Spaces:
N/A
Parking:
Driveway, Garage Door Opener
Roof:
Shingle
Pool:
No
Pool Features:
N/A
Interior Features
Bedrooms:
2
Bathrooms:
2
Heating:
Central
Cooling:
Central Air
Appliances:
Dishwasher, Dryer, Electric Water Heater, Microwave, Range, Refrigerator, Washer
Furnished:
No
Floor:
Luxury Vinyl
Levels:
One
Additional Features
Property Sub Type:
Single Family Residence
Style:
N/A
Year Built:
2001
Construction Type:
Block, Stucco
Garage Spaces:
Yes
Covered Spaces:
N/A
Direction Faces:
East
Pets Allowed:
Yes
Special Condition:
None
Additional Features:
Lighting, Rain Gutters, Sliding Doors
Additional Features 2:
Rental application required
Map
  • Address
    2289 CHARLESTON PARK DR
Contact a Professional
Why Choose Us?
  • Communication and Transparency
  • Skilled Negotiation
  • Robust Professional Network
  • After-Sale Support
Featured Properties

Related Properties

avt
Daniel Dourado
$ 1,090,000
avt
Daniel Dourado
$ 305,000
avt
Daniel Dourado
$ 734,987
avt
Daniel Dourado
$ 370,000
avt
Daniel Dourado
$ 334,990
avt
Daniel Dourado
$ 449,000
avt
Daniel Dourado
$ 420,000
avt
Daniel Dourado
$ 249,900