Active

$849,900

Features:
  • 4 Bedrooms
  • 3 Bathrooms
  • 4012 sq ft
Overview
  • ID: MFRL4959019
  • Bedrooms: 4
  • Bathrooms: 3
  • Size: 4012 sq ft
Property Details
Remarks
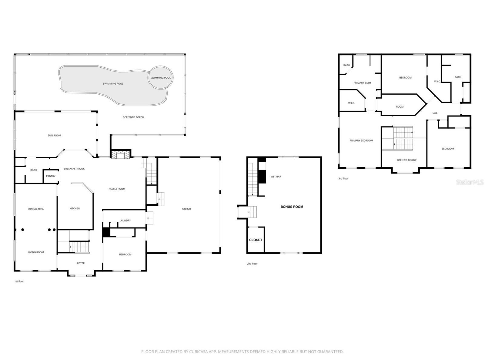
Stunning Custom Pool Home in Crews Lake Hills Estates - Timeless and classic, this stately 4 bedroom, 3 bath home, built by custom home builder Duane McQuillen, embodies a combination of beautiful craftmanship and modern luxury. Nestled in the heart of South Lakeland, this home will impress you at every turn. A grand entrance greets you, with soaring ceilings and an expansive layout designed for comfort and entertainment. The formal living room is brimming with warmth and seamlessly flows into the formal dining area, creating an enchanting ambiance that is perfect for hosting unforgettable gatherings. The well-appointed kitchen boasts stainless appliances, raised panel cabinetry, complemented by gleaming granite countertops, and a center island, adorned with an intricately detailed copper sink and large pantry. The kitchen transitions beautifully to the family room, featuring a cozy fireplace and a secondary stairway for easy access to the upper level bonus room. French doors open to a bright and airy sunroom, providing a serene space with panoramic views of the sparkling pool and meticulously landscaped backyard. Exquisite details include elegant crown molding, flawless blending of wood look & travertine tile flooring throughout and a graceful staircase to discover the upper level of this home. The primary bedroom features generous dual walk-in closets and ensuite bath, creating a sanctuary of relaxation, featuring a rejuvenating jetted tub, stylish dual vanities and beautifully designed shower, perfect for unwinding after a long day. Indulge in your favorite cinematic experience in the spacious bonus room, complete with a wet bar to enhance entertaining option and sets the stage for fun game nights in this versatile space. The well thought out design, offers 2 additional guest bedrooms, and bath, on the upper level, and 4th bedroom or office, and bath, on the main floor. Step outside to a spectacular heated pool and paver patio, built in 2016, where you can enjoy the soothing warmth of the heated spa, featuring a bubbler and captivating LED lighting. The Pentair pool equipment with remote control, ensures effortless maintenance and operation. Abundant storage options abound, including storage and linen closets, a three-car side-entry garage, and the spacious laundry room offering additional storage and utility sink, and a convenient laundry chute from the upper level. Special highlights include freshly painted exterior in 2025, a new roof in 2023, new garage doors, freshly painted garage interior and epoxy coating on garage floor, new carpet in bedrooms, updated laundry room, Bose speaker system, all baths updated in 2019, new wood-look tile flooring in 2019, new ceiling fans, new mini-split air conditioner in sunroom in 2023, new pool pump, updated landscaping around pool, and sprinkler system updated in 2022 with a Hunter X-Core XC-400 4-station controller and wireless rain sensor. This home has been lovingly cared for and thoughtfully enhanced inside and out, with lush landscaping and fenced backyard, all beautifully situated on a .34 acre corner home site. Crews Lake Hills Estates is a gated community, located near shopping, parks, schools, walking trails, restaurants, local eateries and Polk Parkway for easy commute to all of Central Florida attractions and beaches!
Financial Considerations
Price:
$849,900
HOA Fee:
375
Tax Amount:
$4550.74
Price per SqFt:
$211.84
Tax Legal Description:
CREWS LAKE HILLS ESTATES PB 93 PGS 50 & 51 LOT 28
Exterior Features
Lot Size:
14697
Lot Features:
Corner Lot, In County, Landscaped, Paved, Private, Unincorporated
Waterfront:
No
Parking Spaces:
N/A
Parking:
Driveway, Garage Door Opener, Garage Faces Side
Roof:
Shingle
Pool:
Yes
Pool Features:
Child Safety Fence, Gunite, Heated, In Ground, Lighting, Screen Enclosure
Interior Features
Bedrooms:
4
Bathrooms:
3
Heating:
Central
Cooling:
Central Air, Mini-Split Unit(s)
Appliances:
Bar Fridge, Dishwasher, Disposal, Electric Water Heater, Microwave, Range, Refrigerator
Furnished:
Yes
Floor:
Carpet, Tile, Wood
Levels:
Two
Additional Features
Property Sub Type:
Single Family Residence
Style:
N/A
Year Built:
1994
Construction Type:
Block, Stucco
Garage Spaces:
Yes
Covered Spaces:
N/A
Direction Faces:
North
Pets Allowed:
Yes
Special Condition:
None
Additional Features:
French Doors, Lighting, Rain Gutters, Sidewalk
Additional Features 2:
Buyer to verify all lease restrictions with Crews Lake Hills Estates HOA and restrictive covenants
Map
  • Address
    2409 JENNA LN
Contact a Professional
Why Choose Us?
  • Communication and Transparency
  • Skilled Negotiation
  • Robust Professional Network
  • After-Sale Support
Featured Properties

Related Properties

avt
Daniel Dourado
$ 364,900
avt
Daniel Dourado
$ 435,000
avt
Daniel Dourado
$ 397,000
avt
Daniel Dourado
$ 649,900
avt
Daniel Dourado
$ 640,000
avt
Daniel Dourado
$ 359,900
avt
Daniel Dourado
$ 499,900
avt
Daniel Dourado
$ 275,000
avt
Daniel Dourado
$ 1,075,000
avt
Daniel Dourado
$ 234,900
avt
Daniel Dourado
$ 373,900