Active

$849,900

Características:
  • 4 Quartos
  • 3 Banheiros
  • 372 m²
Visão Geral
  • ID: MFRL4959019
  • Quartos: 4
  • Banheiros: 3
  • Tamanho: 372 m²
Detalhes do Imóvel
Observações
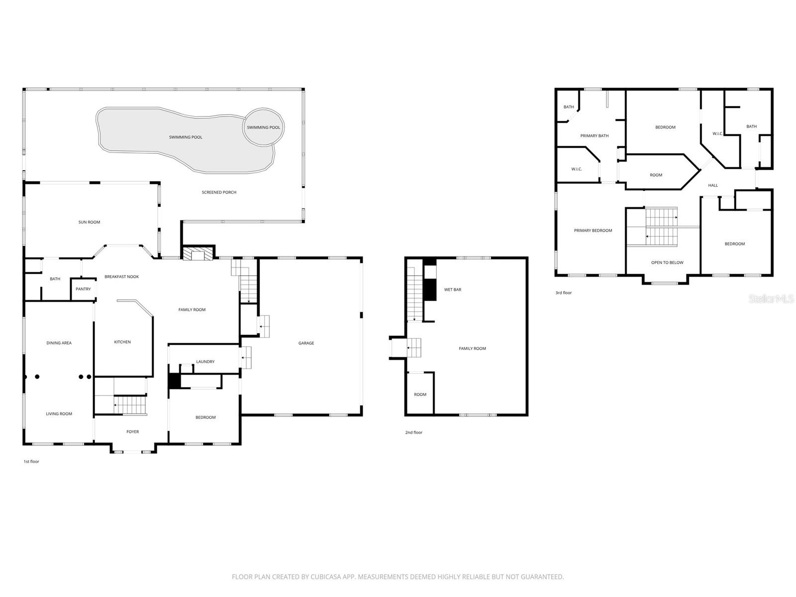
Impressionante casa com piscina personalizada em Crews Lake Hills Estates - Atemporal e clássica, esta imponente casa de 4 quartos e 3 banheiros, construída pelo construtor de casas personalizadas Duane McQuillen, incorpora uma combinação de belo artesanato e luxo moderno. Situada no coração de South Lakeland, esta casa irá impressioná-lo a cada passo. Uma grande entrada recebe você, com tetos altos e um layout amplo projetado para conforto e entretenimento. A sala de estar formal está repleta de calor e flui perfeitamente para a área de jantar formal, criando um ambiente encantador, perfeito para receber reuniões inesquecíveis. A cozinha bem equipada possui eletrodomésticos de aço inoxidável, armários elevados, complementados por bancadas de granito reluzentes e uma ilha central, adornada com uma pia de cobre detalhadamente detalhada e uma grande despensa. A cozinha faz uma bela transição para a sala familiar, com uma lareira aconchegante e uma escada secundária para fácil acesso à sala bônus do nível superior. As portas francesas se abrem para uma marquise iluminada e arejada, proporcionando um espaço sereno com vista panorâmica da piscina cintilante e do quintal meticulosamente paisagístico. Detalhes requintados incluem sancas elegantes, combinação perfeita de aparência de madeira e piso de travertino e uma escadaria graciosa para descobrir o nível superior desta casa. O quarto principal possui closets duplos generosos e banheiro privativo, criando um santuário de relaxamento, com banheira de hidromassagem rejuvenescedora, pias duplas elegantes e chuveiro lindamente projetado, perfeito para relaxar após um longo dia. Delicie-se com sua experiência cinematográfica favorita na espaçosa sala de bônus, completa com um bar molhado para aprimorar a opção de entretenimento e preparar o cenário para divertidas noites de jogos neste espaço versátil. O design bem pensado oferece 2 quartos de hóspedes adicionais e banheiro, no andar superior, e 4º quarto ou escritório e banheiro, no andar principal. Saia para uma espetacular piscina aquecida e um pátio pavimentado, construído em 2016, onde você pode desfrutar do calor relaxante do spa aquecido, com borbulhador e iluminação LED cativante. O equipamento de piscina Pentair com controle remoto garante manutenção e operação sem esforço. Há muitas opções de armazenamento, incluindo armários de armazenamento e roupa de cama, uma garagem com entrada lateral para três carros e uma lavanderia espaçosa que oferece armazenamento adicional e pia, além de uma rampa de lavanderia conveniente no nível superior. Os destaques especiais incluem exterior recém-pintado em 2025, um novo telhado em 2023, novas portas de garagem, interior de garagem recém-pintado e revestimento de epóxi no piso da garagem, carpete novo nos quartos, lavanderia atualizada, sistema de alto-falantes Bose, todos os banheiros atualizados em 2019, novo piso de cerâmica com aparência de madeira em 2019, novos ventiladores de teto, novo ar condicionado mini-split na marquise em 2023, nova bomba de piscina, paisagismo atualizado ao redor da piscina e sprinkler sistema atualizado em 2022 com um controlador Hunter X-Core XC-400 de 4 estações e sensor de chuva sem fio. Esta casa foi cuidadosamente cuidada e cuidadosamente aprimorada por dentro e por fora, com paisagismo exuberante e quintal cercado, tudo lindamente situado em uma casa de esquina de 0,34 acres. Crews Lake Hills Estates é um condomínio fechado, localizado perto de lojas, parques, escolas, trilhas para caminhada, restaurantes, restaurantes locais e Polk Parkway para facilitar o deslocamento até todas as atrações e praias da Flórida Central!
Considerações Financeiras
Preço:
$849,900
Taxa de HOA:
375
Valor do Imposto:
$4550.74
Preço por m²:
$211.84
Descrição Legal do Imposto:
CREWS LAKE HILLS ESTATES PB 93 PGS 50 e 51 LOTE 28
Características Exteriores
Tamanho do Lote:
14697
Características do Lote:
Lote de esquina, no condado, paisagístico, pavimentado, privado, não incorporado
Beira-mar:
Não
Vagas de Estacionamento:
N/D
Estacionamento:
Entrada de automóveis, abridor de porta de garagem, lado da garagem
Telhado:
Telha
Piscina:
Sim
Características da Piscina:
Cerca de segurança infantil, Gunite, aquecida, no solo, iluminação, tela de proteção
Características Interiores
Quartos:
4
Banheiros:
3
Aquecimento:
Central
Resfriamento:
Ar Central, Unidade(s) Mini-Split
Eletrodomésticos:
Geladeira Bar, Máquina de Lavar Louça, Descarte, Aquecedor Elétrico de Água, Microondas, Fogão, Geladeira
Mobiliado:
Sim
Andar:
Tapete, azulejo, madeira
Níveis:
Dois
Características Adicionais
Subtipo de Imóvel:
Residência Unifamiliar
Estilo:
N/D
Ano de Construção:
1994
Tipo de Construção:
Bloco, Estuque
Vagas na Garagem:
Sim
Vagas Cobertas:
N/D
Orientação da Fachada:
Norte
Animais Permitidos:
Sim
Condição Especial:
Nenhum
Características Adicionais:
Portas francesas, iluminação, calhas de chuva, calçada
Características Adicionais 2:
O comprador deve verificar todas as restrições de locação com Crews Lake Hills Estates HOA e cláusulas restritivas
Mapa
  • Endereço
    2409 JENNA LN
Fale com um profissional
Por Que Nos Escolher?
  • Comunicação e Transparência
  • Negociação Qualificada
  • Rede Profissional Robusta
  • Suporte Pós-Venda
Propriedades em Destaque

Imóveis relacionados

avt
Daniel Dourado
$ 319,900
avt
Daniel Dourado
$ 2,500,000
avt
Daniel Dourado
$ 369,000
avt
Daniel Dourado
$ 425,000
avt
Daniel Dourado
$ 425,000
avt
Daniel Dourado
$ 698,000
avt
Daniel Dourado
$ 490,000
avt
Daniel Dourado
$ 517,000
avt
Daniel Dourado
$ 466,900
avt
Daniel Dourado
$ 359,999
avt
Daniel Dourado
$ 369,999