Active

$459,999

Features:
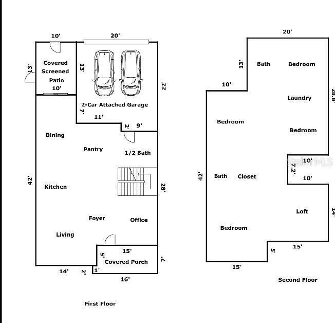
  • 5 Bedrooms
  • 3 Bathrooms
  • 2890 sq ft
Overview
  • ID: MFRO6382782
  • Bedrooms: 5
  • Bathrooms: 3
  • Size: 2890 sq ft
Property Details
Remarks
Welcome to 1719 Flourish Ave.! This charming home in Kissimmee provides a delightful blend of comfort and style. Featuring spacious living areas, a modern kitchen with sleek appliances, and a serene fenced-in backyard and enclosed lanai great for relaxation. With its convenient location, you'll enjoy easy access to local amenities and attractions. Experience the warmth and character of this lovely property. Don't miss the opportunity to make this house your next home! Tenant-occupied and generating $2900/month in rental income. The lease expires February 28, 2026. Prime for investors seeking immediate cash flow or for future owner-occupants planning ahead and willing to honor the lease term (unless otherwise negotiated).
Financial Considerations
Price:
$459,999
HOA Fee:
80
Tax Amount:
$5604.8
Price per SqFt:
$159.17
Tax Legal Description:
TOHOQUA PH 1 PB 26 PGS 173-181 LOT 11 ORD #2017-53
Exterior Features
Lot Size:
6970
Lot Features:
N/A
Waterfront:
No
Parking Spaces:
N/A
Parking:
N/A
Roof:
Shingle
Pool:
No
Pool Features:
N/A
Interior Features
Bedrooms:
5
Bathrooms:
3
Heating:
Central, Electric, None
Cooling:
Central Air, None
Appliances:
Convection Oven, Dishwasher, Disposal, Dryer, Microwave, Refrigerator
Furnished:
Yes
Floor:
Carpet, Tile
Levels:
Two
Additional Features
Property Sub Type:
Single Family Residence
Style:
N/A
Year Built:
2021
Construction Type:
Concrete
Garage Spaces:
Yes
Covered Spaces:
N/A
Direction Faces:
North
Pets Allowed:
Yes
Special Condition:
None
Additional Features:
Balcony, Rain Gutters, Sidewalk, Sliding Doors, Sprinkler Metered
Additional Features 2:
None
Map
  • Address
    1719 FLOURISH AVE
Contact a Professional
Why Choose Us?
  • Communication and Transparency
  • Skilled Negotiation
  • Robust Professional Network
  • After-Sale Support
Featured Properties

Related Properties

avt
Daniel Dourado
$ 439,900
avt
Daniel Dourado
$ 899,000
avt
Daniel Dourado
$ 310,000
avt
Daniel Dourado
$ 1,100,000
avt
Daniel Dourado
$ 605,000
avt
Daniel Dourado
$ 2,900,000
avt
Daniel Dourado
$ 285,000
avt
Daniel Dourado
$ 475,000
avt
Daniel Dourado
$ 425,000
avt
Daniel Dourado
$ 2,750,000