Active

$459,900

Features:
  • 3 Bedrooms
  • 2 Bathrooms
  • 2224 sq ft
Overview
  • ID: MFRG5108015
  • Bedrooms: 3
  • Bathrooms: 2
  • Size: 2224 sq ft
Property Details
Remarks
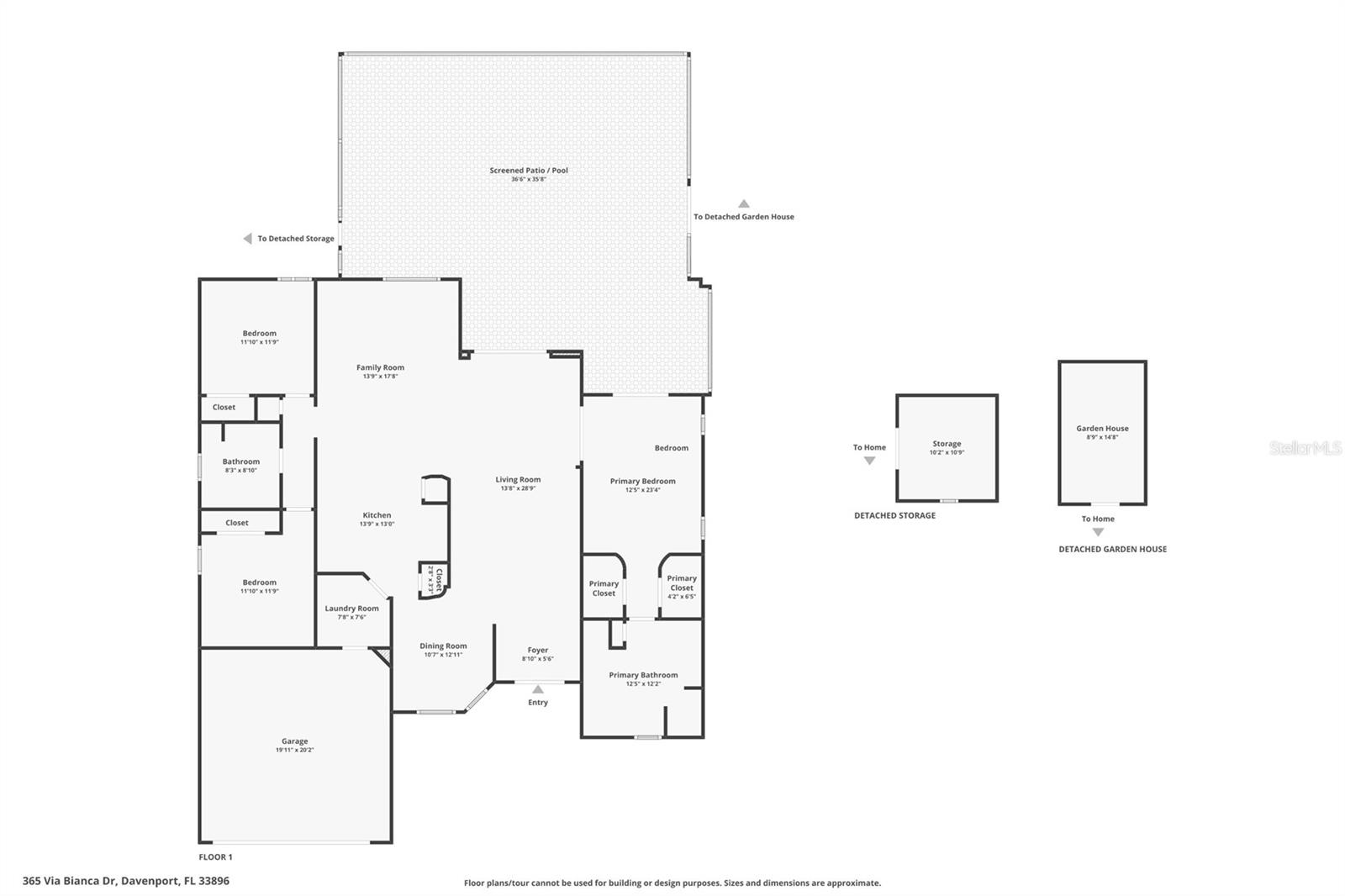
Discover the perfect blend of comfort, privacy, and Florida outdoor living in this beautifully maintained contemporary POOL home located in the desirable Loma Del Sol Phase II community in Davenport! Conveniently situated just minutes from I-4, this prime location offers easy access to Orlando, Tampa, shopping, dining, theme parks, and Central Florida’s top destinations while still providing the charm of an established neighborhood with a community park, gazebo, playground, and low annual HOA. Situated on an oversized 0.33-acre pie-shaped lot with no rear neighbors, this property offers exceptional outdoor space and privacy. The fully fenced backyard, manicured lawn with irrigation, raised garden beds, and multiple access gates create a backyard designed for both relaxation and functionality. Inside, you’ll find 2,225 square feet of thoughtfully designed living space featuring a split-bedroom floor plan, formal living and dining rooms, a spacious family room, elegant arched entryways, and decorative architectural details throughout. Natural light fills the home, creating an inviting and open atmosphere ideal for everyday living and entertaining alike. The spacious kitchen is designed to be the heart of the home, offering abundant cabinetry, a breakfast bar, breakfast nook, built-in workspace, and sleek black stainless LG appliances installed in 2021 with remaining warranties. A unique dual-sink layout, including a secondary prep sink on the island, adds both convenience and functionality for cooking and hosting gatherings. Step outside to your private screened lanai and experience true Florida living. The covered patio overlooks a sparkling saltwater solar-heated pool complete with tranquil waterfall features and an attached spa—creating the perfect setting for entertaining guests or unwinding at the end of the day. The spacious primary suite serves as a relaxing retreat with sliding glass doors leading directly to the lanai, dual walk-through closets, and a spa-inspired en suite bath featuring double vanities, a jetted garden tub, and a separate walk-in shower. Additional upgrades and features include a NEW ROOF installed in November 2024 with a 20-year warranty, completed wind mitigation inspection, natural gas service, county water, septic system, fiber internet availability, and a wired storage shed. Offering space, privacy, major updates, and an exceptional outdoor lifestyle, this move-in-ready home is an opportunity you won’t want to miss. Schedule your private showing today!
Financial Considerations
Price:
$459,900
HOA Fee:
300
Tax Amount:
$2456.08
Price per SqFt:
$206.79
Tax Legal Description:
LOMA DEL SOL PHASE II D PB 101 PGS 7 & 8 LOT 21
Exterior Features
Lot Size:
14379
Lot Features:
Paved
Waterfront:
No
Parking Spaces:
N/A
Parking:
Driveway
Roof:
Shingle
Pool:
Yes
Pool Features:
Fiber Optic Lighting, Gunite, Heated, In Ground, Lighting, Other, Pool Alarm, Salt Water, Screen Enclosure, Solar Cover, Tile
Interior Features
Bedrooms:
3
Bathrooms:
2
Heating:
Central, Electric, Natural Gas
Cooling:
Central Air
Appliances:
Dishwasher, Disposal, Dryer, Exhaust Fan, Gas Water Heater, Microwave, Range, Refrigerator, Washer
Furnished:
Yes
Floor:
Carpet, Tile
Levels:
One
Additional Features
Property Sub Type:
Single Family Residence
Style:
N/A
Year Built:
1997
Construction Type:
Block, Concrete, Stucco
Garage Spaces:
Yes
Covered Spaces:
N/A
Direction Faces:
North
Pets Allowed:
No
Special Condition:
None
Additional Features:
Dog Run, Garden, Lighting, Other, Outdoor Shower, Private Yard, Rain Gutters, Sliding Doors, Storage
Additional Features 2:
Lease restrictions have not been verified, it is the buyer's responsibility to verify the lease restrictions with the HOA
Map
  • Address
    365 VIA BIANCA DR
Contact a Professional
Why Choose Us?
  • Communication and Transparency
  • Skilled Negotiation
  • Robust Professional Network
  • After-Sale Support
Featured Properties

Related Properties

avt
Daniel Dourado
$ 415,700
avt
Daniel Dourado
$ 340,000
avt
Daniel Dourado
$ 230,000
avt
Daniel Dourado
$ 729,999
avt
Daniel Dourado
$ 300,000
avt
Daniel Dourado
$ 280,000
avt
Daniel Dourado
$ 350,000
avt
Daniel Dourado
$ 445,900
avt
Daniel Dourado
$ 769,900
avt
Daniel Dourado
$ 420,000