Active

$939,000

Features:
  • 3 Bedrooms
  • 4 Bathrooms
  • 3118 sq ft
Overview
  • ID: MFRFC314986
  • Bedrooms: 3
  • Bathrooms: 4
  • Size: 3118 sq ft
Property Details
Remarks
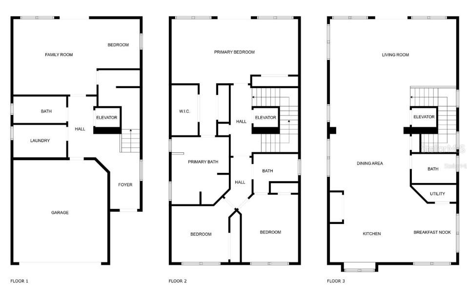
Experience the ultimate Florida waterfront lifestyle in this exceptional saltwater canal home in Beverly Beach, ideally located along scenic A1A between the Atlantic Ocean and the Intracoastal Waterway. Situated directly across from the beach with nearby private beach access, this three-story coastal retreat offers rare boating convenience with quick access to the Intracoastal and a new boat lift scheduled for installation prior to closing. Designed for comfortable coastal living, the home features 3 bedrooms, 3.5 baths along with an elevator servicing all levels. The spacious primary suite offers a relaxing sitting area, a private balcony overlooking the canal, and a spa-inspired bath featuring a double walk-in tiled shower with rain head, garden tub, dual vanities, and quartz countertops. The third floor showcases bright, open living spaces with Intracoastal and partial ocean views, creating the perfect setting for entertaining or relaxing after a day on the water. The open living and dining areas flow into a chef’s kitchen with a large island, tile backsplash, Monogram stainless steel appliances, and a custom built-in entertainment center, all opening to a private balcony with water views. Outdoor living is equally inviting, featuring a paver lanai, hot tub, and seating area overlooking the tranquil canal, along with a private dock for quick boating access to the Intracoastal Waterway. Boaters will also appreciate the community dock located directly on the Intracoastal, offering additional waterfront enjoyment. Additional highlights include a two-car garage with paver driveway, and a prime location near local dining, shopping, and coastal attractions. With Daytona Beach and St. Augustine just a short drive away, this property offers the perfect blend of luxury, boating convenience, and relaxed coastal living — truly a boater’s dream on Florida’s scenic A1A corridor.
Financial Considerations
Price:
$939,000
HOA Fee:
365
Tax Amount:
$12027
Price per SqFt:
$301.15
Tax Legal Description:
SUNSET INLET S/D MB 37 PG 61 LOT 10 OR 1897/328 OR 2119/1459
Exterior Features
Lot Size:
3498
Lot Features:
N/A
Waterfront:
Yes
Parking Spaces:
N/A
Parking:
N/A
Roof:
Shingle
Pool:
No
Pool Features:
N/A
Interior Features
Bedrooms:
3
Bathrooms:
4
Heating:
Central
Cooling:
Central Air
Appliances:
Built-In Oven, Convection Oven, Cooktop, Dishwasher, Disposal, Dryer, Electric Water Heater, Microwave, Range, Refrigerator, Washer, Water Filtration System
Furnished:
Yes
Floor:
Carpet, Hardwood
Levels:
Three Or More
Additional Features
Property Sub Type:
Single Family Residence
Style:
N/A
Year Built:
2016
Construction Type:
Concrete, HardiPlank Type, Stucco
Garage Spaces:
Yes
Covered Spaces:
N/A
Direction Faces:
South
Pets Allowed:
No
Special Condition:
None
Additional Features:
Balcony
Additional Features 2:
Contact HOA
Map
  • Address
    2727 MORNING LIGHT CT
Contact a Professional
Why Choose Us?
  • Communication and Transparency
  • Skilled Negotiation
  • Robust Professional Network
  • After-Sale Support
Featured Properties

Related Properties

avt
Daniel Dourado
$ 1,695,000
avt
Daniel Dourado
$ 325,000
avt
Daniel Dourado
$ 785,000
avt
Daniel Dourado
$ 649,900
avt
Daniel Dourado
$ 528,000
avt
Daniel Dourado
$ 530,000
avt
Daniel Dourado
$ 609,000
avt
Daniel Dourado
$ 459,000
avt
Daniel Dourado
$ 645,000
avt
Daniel Dourado
$ 429,000