Active

$1,000,000

Features:
  • 3 Bedrooms
  • 2 Bathrooms
  • 1496 sq ft
Overview
  • ID: MFRD6141613
  • Bedrooms: 3
  • Bathrooms: 2
  • Size: 1496 sq ft
Property Details
Remarks
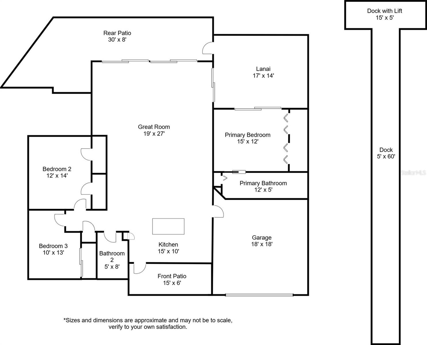
One or more photo(s) has been virtually staged. <p>Imagine waking up and stepping out your backyard to UNMATCHED VIEWS OF LEMON BAY while the warm sunshine washes over you. This incredible remodeled home with a PRIVATE DOCK and 10,000 LB BOAT LIFT will give you the coastal lifestyle you’ve been dreaming of - with NO FIXED BRIDGES between you and accessing the Gulf! Nestled in Charlotte County with no rental restrictions, this could also be the perfect income generating property to add to your portfolio. <p>Step inside and be embraced by the open floor plan, an abundance of upgrades and timeless elegance of terrazzo flooring gracing every corner of the home. Your GREAT ROOM is the perfect spot to gather with friends and family for a game night or party. With room for a formal dining area, this light and bright space features stunning WATER VIEWS through IMPACT POCKETING SLIDING DOORS. The chef in the family will love this newly designed kitchen with UPGRADED GRANITE counters, waterproof-faced solid wood cabinets, stainless-steel appliances! A spacious island offers more prep space and a breakfast bar to settle with a cup of coffee while facing the bay. <p>Move the party to your SCREENED LANAI with PANORAMIC SCREENS to give you uninterrupted views of dazzling Lemon Bay and Florida sunsets! Move out to your patio where you can sip your favorite beverage in comfort under your RETRACTABLE SUN SHADE. This OVERSIZE LOT also gives you plenty of backyard space for games of cornhole or gathering around your fire pit to enjoy outdoor living year round. <p>This split floorplan gives you all the privacy you need. Guests can spend the night in two remodeled bedrooms with a sleek modern bathroom for accommodations. Your home is FULLY outfitted with hurricane IMPACT WINDOWS throughout for extra peace of mind. <p>Step out to the water and find your happy place. With your private dock, every day is an adventure! Fish right from your backyard, launch your boat from the boat lift for a day on the water or a trip to any of FOUR NEARBY BEACHES, or simply relax and watch dolphins and manatees swim by. After all this fun in the sun, retire to your primary suite that boasts a wall-length closet with built-in shelving, lanai access and a spa-like EN-SUITE BATHROOM with dual sinks, linen closet, tile shower and a beautiful backsplash. <p>Located just 2 MILES FROM ENGLEWOOD BEACH and 1.5 MILES FROM HISTORIC DEARBORN STREET with a variety of dining and shopping options, farmers markets and concerts. This incredible location is ready to be your forever home or investment property. Call now to schedule a showing before this opportunity sails away!
Financial Considerations
Price:
$1,000,000
HOA Fee:
N/A
Tax Amount:
$11026
Price per SqFt:
$668.45
Tax Legal Description:
ANS 002 0000 0003 H A AINGER SUB UN 2 PRT LT 3 & W 15FT LT 4 256/88 1149/2130 1213/2069(1/2 INT EACH) 3765/109 4638/1160 5026/898 ANS 002 0000 0003N H A AINGER SUB UN 2 THE N PART OF LT 3 FRONTING 43 FT ON LEMON BAY & 31 FT ON ROAD R/W DC567/1905 621 /1039 119
Exterior Features
Lot Size:
22848
Lot Features:
FloodZone, In County, Landscaped, Level, Near Marina, Oversized Lot, Paved
Waterfront:
Yes
Parking Spaces:
N/A
Parking:
Covered, Driveway, Garage Door Opener, Off Street
Roof:
Shingle
Pool:
No
Pool Features:
N/A
Interior Features
Bedrooms:
3
Bathrooms:
2
Heating:
Central, Electric
Cooling:
Central Air
Appliances:
Dishwasher, Disposal, Dryer, Microwave, Range, Refrigerator, Washer
Furnished:
No
Floor:
Ceramic Tile, Concrete, Terrazzo
Levels:
One
Additional Features
Property Sub Type:
Single Family Residence
Style:
N/A
Year Built:
1957
Construction Type:
Block, Stucco
Garage Spaces:
Yes
Covered Spaces:
N/A
Direction Faces:
Northeast
Pets Allowed:
No
Special Condition:
None
Additional Features:
Awning(s), Lighting, Private Mailbox, Rain Gutters, Sliding Doors
Additional Features 2:
N/A
Map
  • Address
    918 EDGEWATER DR
Contact a Professional
Why Choose Us?
  • Communication and Transparency
  • Skilled Negotiation
  • Robust Professional Network
  • After-Sale Support
Featured Properties

Related Properties

avt
Daniel Dourado
$ 270,000
avt
Daniel Dourado
$ 320,000
avt
Daniel Dourado
$ 399,000
avt
Daniel Dourado
$ 369,000
avt
Daniel Dourado
$ 369,900
avt
Daniel Dourado
$ 345,000
avt
Daniel Dourado
$ 330,000
avt
Daniel Dourado
$ 345,000
avt
Daniel Dourado
$ 264,900
avt
Daniel Dourado
$ 335,000