Active

$498,000

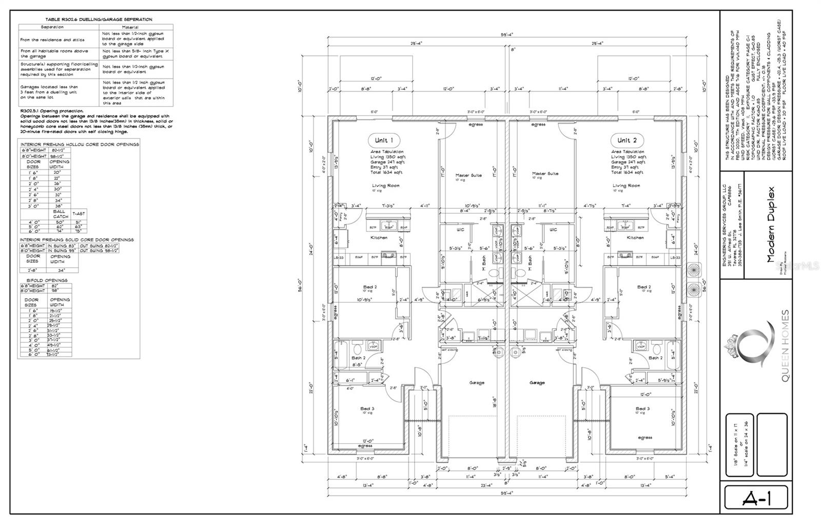
Features:
  • 3 Bedrooms
  • 2 Bathrooms
  • 1350 sq ft
Overview
  • ID: MFRO6222891
  • Bedrooms: 3
  • Bathrooms: 2
  • Size: 1350 sq ft
Property Details
Remarks
Pre-Construction. To be built. Under Construction. Preconstruction custom Modern Duplex !Financing available for primary residence with 3.5% down payment with fha, no money down for VA and 30% down for investors. This beautiful custom Modern Duplex is a dream come true for a beautiful family to enjoy and have the luxury to have an attached second unit as an investment or for investors looking to build their rental portfolio. It feautures 3 ample bedrooms and 2 bathrooms per unit with 1350 sqrft per side plus 1 car garage per unit. , 8 foot front and sliding doors, beautiful appointed pavers for your driveway and lanai , also we are one of the few builder in citrus spring who offers you FULL FOAM INSULATION in your ceiling so that your attic and home are the coolest home in the county. Solid wood 42 inch cabinets and granite countertops , also no plastic showers, your home comes with upgraded over size tile showers installed 10 feet high all the way to the top of the ceiling . The whole Duplex features 10 foot ceilings and the master showcases tray ceilings as well. This home is priced well and we have appraisal in hand for the full selling price. Warranty is important in Your new home ! While other builders don't offer a warranty we offer a full 2/10 home warranty, 2 years mechanical and 10 year structural warranty . Make an appt today with one of our queen home concierges to discover what Queen homes can do for you . We can also build in your lot in all 7 counties in central florida.
Financial Considerations
Price:
$498,000
HOA Fee:
N/A
Tax Amount:
$158.48
Price per SqFt:
$368.89
Tax Legal Description:
CITRUS SPGS UNIT 20 PB 7 PG 52 LOT 9 BLK 1330 DESC IN OR BK 809 PG 537
Exterior Features
Lot Size:
12908
Lot Features:
N/A
Waterfront:
No
Parking Spaces:
N/A
Parking:
N/A
Roof:
Membrane
Pool:
No
Pool Features:
N/A
Interior Features
Bedrooms:
3
Bathrooms:
2
Heating:
Heat Pump
Cooling:
Central Air
Appliances:
Dishwasher, Range, Refrigerator
Furnished:
No
Floor:
Tile
Levels:
One
Additional Features
Property Sub Type:
Half Duplex
Style:
N/A
Year Built:
2025
Construction Type:
Block
Garage Spaces:
Yes
Covered Spaces:
N/A
Direction Faces:
North
Pets Allowed:
No
Special Condition:
None
Additional Features:
Sidewalk
Additional Features 2:
N/A
Map
  • Address
    11137 N VESTA PT
Contact a Professional
Why Choose Us?
  • Communication and Transparency
  • Skilled Negotiation
  • Robust Professional Network
  • After-Sale Support
Featured Properties

Related Properties

avt
Daniel Dourado
$ 438,900
avt
Daniel Dourado
$ 625,000
avt
Daniel Dourado
$ 265,000
avt
Daniel Dourado
$ 395,850
avt
Daniel Dourado
$ 389,480
avt
Daniel Dourado
$ 393,930
avt
Daniel Dourado
$ 429,000
avt
Daniel Dourado
$ 289,900
avt
Daniel Dourado
$ 330,000
img
  • Featured
  • Active
Half Duplex

7238 HARBOR HEIGHTS CIR

  • 3
  • 3
  • 140 m²
avt
Daniel Dourado
$ 318,500
avt
Daniel Dourado
$ 799,000
avt
Daniel Dourado
$ 259,900