Active

$260,000

Features:
  • 2 Bedrooms
  • 2 Bathrooms
  • 1534 sq ft
Overview
  • ID: MFRA4682230
  • Bedrooms: 2
  • Bathrooms: 2
  • Size: 1534 sq ft
Property Details
Remarks
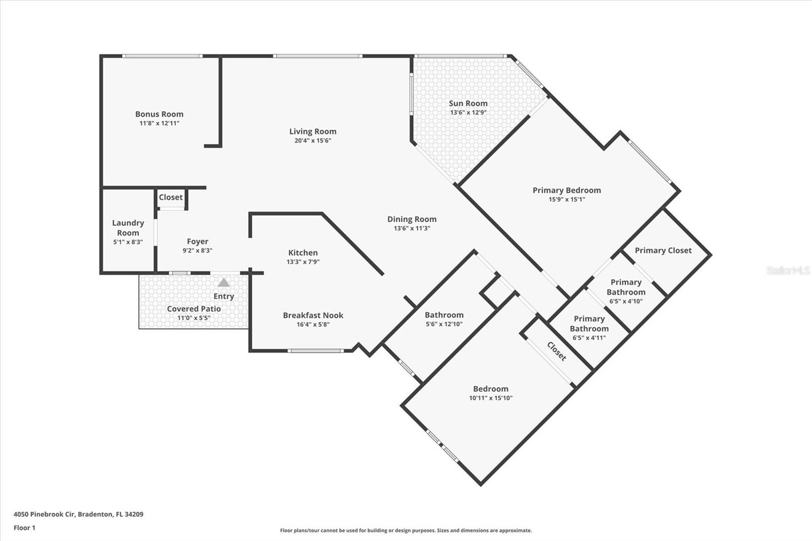
Welcome to “The Villas at Pinebrook”, a serene oasis within West Bradenton’s Pinebrook Ironwood golfing community. This maintenance free gem offers the ultimate Florida lifestyle, just 6.3 miles from the Gulf Coast beaches of Anna Maria Island. Enjoy golf at your leisure with no extra fees for living on the course so you can pay as you play. There are no special assessments being considered or discussed. This spacious Turnberry floorplan layout is the largest floor plan under air and heat within Pinebrook. The front entry has a private stairwell leading to the foyer. Most rooms capture a scenic green belt view of the common area abutting the golf course. The 2 Bedroom, 2 Bath unit features a separate Den/Bonus room that can function as a home office or third bedroom that comes complete with a Murphy bed and attractive laminate floors which flow into a spacious living/dining area ideal for entertaining. All the main windows except for those in the foyer and bathroom have been upgraded to high-impact double-pane insulated units. The sliding glass-enclosed lanai offers a relaxing private view of a landscaped greenbelt shaded by mature trees area. The lanai sliders have been serviced, dressed with roller shades and the flooring is porcelain tile. The unit has a remodeled eat-in kitchen with porcelain tile floors, maple shaker cabinets, soft-close hardware, quartz countertops, glass tile backsplash, undercabinet lighting, modern fixtures, and extra cabinets. You have your own indoor laundry room with full size washer & dryer, wall cabinets and additional room for storage. Both bedrooms have been upgraded with luxury vinyl plank (LVP) flooring. The master suite offers ample space to accommodate a king-size bed with additional room and features a generous walk-in closet. Both bathrooms are in great condition, with ceramic tile floors and updated fixtures. The roof was replaced in 2022, the hot water heater in 2025, the A/C in 2014 and the parking surfaces have been resurfaced. The reasonable monthly $557 condo fee includes cable tv, internet, community pool, escrow reserves, building insurance, exterior maintenance, grounds, manager, pest control, water, sewer and the Rec facilities. The Pinebrook Rec 1 clubhouse offers an extensive array of amenities, including a spacious heated pool, spa, screened in BBQ picknic area, a fitness center, billiards room, craft area, and convenient access to tennis and pickleball courts nearby. Pinebrook Villas are near GT Bray Park, Robinsons Preserve, Bradenton's Downtown Riverwalk, Sarasota Bradenton International Airport, and the Gulf beaches of Anna Maria Island. Owners are allowed 1 pet up to 20 lbs. This is not 55+.
Financial Considerations
Price:
$260,000
HOA Fee:
N/A
Tax Amount:
$4225
Price per SqFt:
$169.49
Tax Legal Description:
UNIT 9 BLDG 3 THE VILLAS AT PINEBROOK PHASE III CONDO PI#50963.6190/1
Exterior Features
Lot Size:
0
Lot Features:
City Limits, On Golf Course, Sidewalk, Paved
Waterfront:
No
Parking Spaces:
N/A
Parking:
Assigned, Covered, Ground Level, Guest
Roof:
Shingle
Pool:
No
Pool Features:
Gunite, Heated, In Ground
Interior Features
Bedrooms:
2
Bathrooms:
2
Heating:
Central
Cooling:
Central Air
Appliances:
Dishwasher, Dryer, Electric Water Heater, Microwave, Range, Refrigerator, Washer
Furnished:
Yes
Floor:
Laminate, Luxury Vinyl, Tile
Levels:
One
Additional Features
Property Sub Type:
Condominium
Style:
N/A
Year Built:
1989
Construction Type:
Block, Stucco
Garage Spaces:
No
Covered Spaces:
N/A
Direction Faces:
Northeast
Pets Allowed:
Yes
Special Condition:
None
Additional Features:
French Doors, Lighting, Outdoor Grill, Sidewalk, Sliding Doors, Storage, Tennis Court(s)
Additional Features 2:
Tenants no pets.
Map
  • Address
    4050 PINEBROOK CIR #9
Contact a Professional
Why Choose Us?
  • Communication and Transparency
  • Skilled Negotiation
  • Robust Professional Network
  • After-Sale Support
Featured Properties

Related Properties

avt
Daniel Dourado
$ 329,000
avt
Daniel Dourado
$ 559,900
avt
Daniel Dourado
$ 212,000
avt
Daniel Dourado
$ 289,900
avt
Daniel Dourado
$ 525,000
avt
Daniel Dourado
$ 1,099,000
img
  • Featured
  • Active
Condominium

3613 57TH AVENUE DR W #3613

  • 2
  • 2
  • 159 m²
avt
Daniel Dourado
$ 280,000
avt
Daniel Dourado
$ 325,000
avt
Daniel Dourado
$ 297,500
img
  • Featured
  • Active
Condominium

1200 COUNTRY CLUB DR #4202

  • 2
  • 2
  • 122 m²
avt
Daniel Dourado
$ 330,000
img
  • Featured
  • Active
Condominium

5000 CULBREATH KEY WAY #9-112

  • 1
  • 1
  • 60 m²
avt
Daniel Dourado
$ 239,000
avt
Daniel Dourado
$ 395,000