Active

$317,500

Features:
  • 3 Bedrooms
  • 2 Bathrooms
  • 975 sq ft
Overview
  • ID: MFRO6326675
  • Bedrooms: 3
  • Bathrooms: 2
  • Size: 975 sq ft
Property Details
Remarks
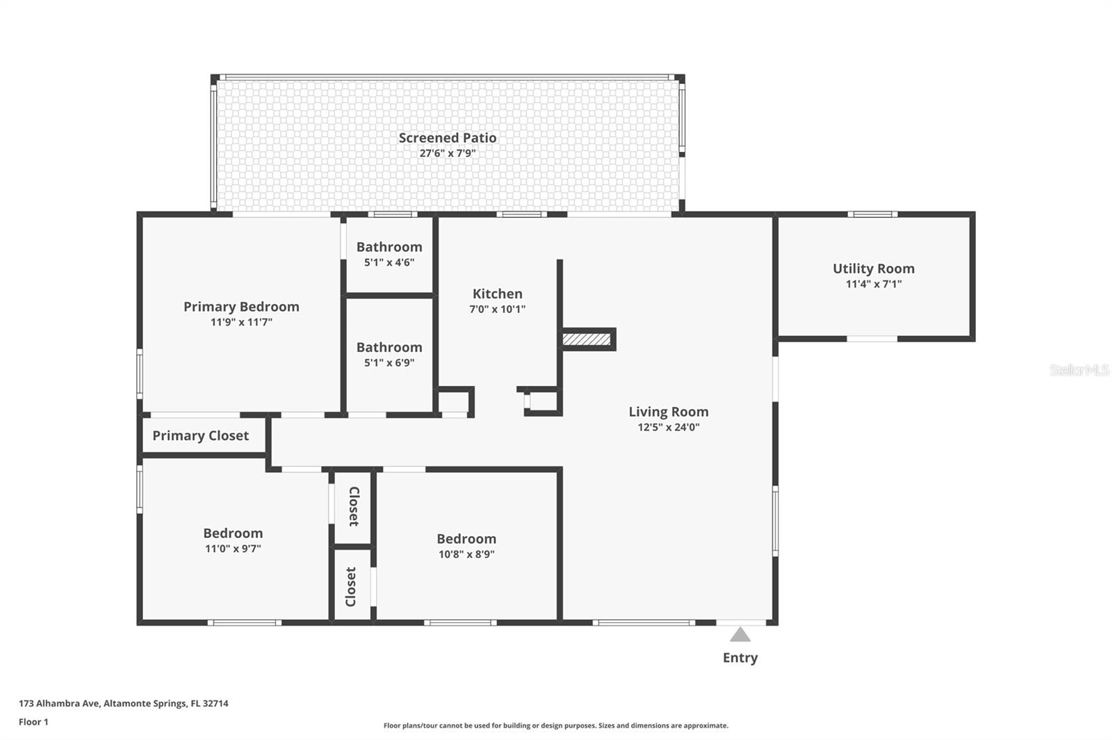
Welcome home to this charming 3-bedroom, 1.5-bathroom cottage-style retreat in the heart of Seminole County! Freshly painted interior and well cared for, this home is full of warmth and character. The roof was replaced in 2021, giving you peace of mind for years to come. The primary bedroom offers the convenience of a private half-bath ensuite, while the two additional bedrooms share a full bath with a classic tub/shower combination. The cozy kitchen is as practical as it is inviting, complete with a built-in oven, cooktop range, dishwasher, microwave, and refrigerator—everything you need for easy everyday living. The spacious living and dining room create an open, welcoming atmosphere, perfect for relaxing evenings or hosting loved ones. Step outside to your oversized, screened-in porch, where you can sip your morning coffee or unwind in the evenings while overlooking the fenced backyard with a handy storage shed. Additional perks include a large laundry room with extra storage located in the one-car carport, adding both convenience and functionality. This home’s location is unbeatable—close to all major roadways including 436, 434, Maitland Blvd, I-4, 414, 441, and 429. Shopping, restaurants, and the mall are just around the corner, and all of this is within the highly sought-after Seminole County School District! Cute, cozy, and convenient—this home is ready for its next owner to love. Schedule your showing today!
Financial Considerations
Price:
$317,500
HOA Fee:
N/A
Tax Amount:
$2672
Price per SqFt:
$325.64
Tax Legal Description:
LOT 146 LAKE HARRIET ESTATES PB 12 PG 16
Exterior Features
Lot Size:
9000
Lot Features:
N/A
Waterfront:
No
Parking Spaces:
N/A
Parking:
N/A
Roof:
Shingle
Pool:
No
Pool Features:
N/A
Interior Features
Bedrooms:
3
Bathrooms:
2
Heating:
Central
Cooling:
Central Air
Appliances:
Built-In Oven, Cooktop, Dishwasher, Microwave
Furnished:
No
Floor:
Tile
Levels:
One
Additional Features
Property Sub Type:
Single Family Residence
Style:
N/A
Year Built:
1959
Construction Type:
Concrete
Garage Spaces:
No
Covered Spaces:
N/A
Direction Faces:
West
Pets Allowed:
No
Special Condition:
None
Additional Features:
Private Mailbox, Sliding Doors, Storage
Additional Features 2:
N/A
Map
  • Address
    173 ALHAMBRA AVE
Contact a Professional
Why Choose Us?
  • Communication and Transparency
  • Skilled Negotiation
  • Robust Professional Network
  • After-Sale Support
Featured Properties

Related Properties

avt
Daniel Dourado
$ 375,000
avt
Daniel Dourado
$ 335,000
avt
Daniel Dourado
$ 730,000
avt
Daniel Dourado
$ 368,000
avt
Daniel Dourado
$ 490,000
avt
Daniel Dourado
$ 299,900
avt
Daniel Dourado
$ 750,000