Active

$769,900

Características:
  • 3 Quartos
  • 3 Banheiros
  • 213 m²
Visão Geral
  • ID: MFRTB8411985
  • Quartos: 3
  • Banheiros: 3
  • Tamanho: 213 m²
Detalhes do Imóvel
Observações
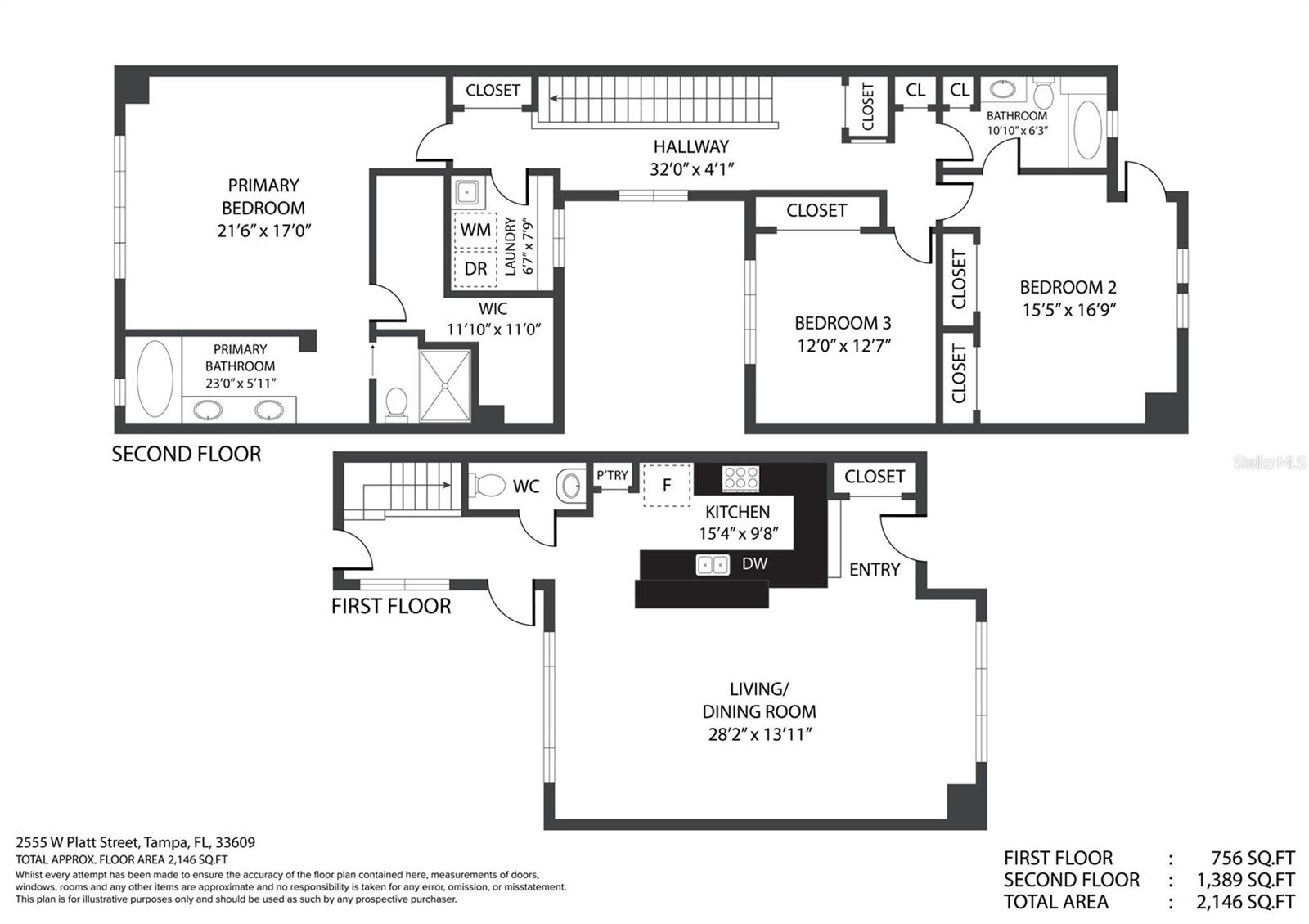
Uma ou mais fotos foram praticamente encenadas. Escondido no coração de South Tampa, este condomínio de inspiração mediterrânea é o tipo de lugar que parece em casa a partir do momento em que você entra. Com três quartos espaçosos, dois banheiros e meio e um fluxo fácil por toda parte, é polido e prático. Passe pela porta da frente e você notará imediatamente os pisos de madeira quente, os tetos altos e a luz do sol que entra através de janelas generosas. A cozinha está pronta para qualquer coisa, desde um café expresso rápido até um jantar completo-com bancadas de granito, armários personalizados de 42 ", utensílios de aço inoxidável (faixa de gás e forno) e uma despensa que faz com que o permanente organizasse uma brisa. No andar de cima, o layout dá a todos um pouco de espaço para respirar. A suíte primária é espaçosa e relaxante com uma banheira de jardim, chuveiro separado, vaidades duplas e um grande closet. Dois quartos adicionais podem flexionar como você precisar - seja um quarto de hóspedes, espaço de trabalho ou zona de hobby de fim de semana. Lavanderia também está no andar de cima, exatamente onde você precisa. Um pátio privado e ensolarado e um pátio aberto oferecem o local perfeito para relaxar, entreter ou apenas desfrutar de uma manhã tranquila. A casa foi cuidadosamente construída com bloco de concreto sólido nos dois andares e foi vivido suavemente. E a localização? É exatamente onde você quer estar - clique em Soho, Hyde Park Village, Bayshore Boulevard, favoritos do bairro como Publix e muitos ótimos restaurantes locais. Zoneado para escolas de primeira classificação-Mitchell, Wilson e Plant. Não se esqueça de conferir o passeio virtual para um passo a passo completo. Ligue para nós - adoraríamos mostrar -lhe! O vendedor está oferecendo um crédito de US $ 5 mil para o piso.
Considerações Financeiras
Preço:
$769,900
Taxa de HOA:
150
Valor do Imposto:
$12064.62
Preço por m²:
$334.45
Descrição Legal do Imposto:
Mirabella Townhomes Lote 4
Características Exteriores
Tamanho do Lote:
2541
Características do Lote:
Limites da cidade, paisagístico
Beira-mar:
Não
Vagas de Estacionamento:
N/D
Estacionamento:
Abridor de porta de garagem
Telhado:
Membrana, Azulejo
Piscina:
Não
Características da Piscina:
N/D
Características Interiores
Quartos:
3
Banheiros:
3
Aquecimento:
Central, Elétrica, Gás Natural
Resfriamento:
Central Aérea
Eletrodomésticos:
Máquina de lavar louça, descarte, esquentador a gás, micro-ondas, fogão, geladeira
Mobiliado:
Não
Andar:
Madeira
Níveis:
Dois
Características Adicionais
Subtipo de Imóvel:
Moradia
Estilo:
N/D
Ano de Construção:
2006
Tipo de Construção:
Bloquear
Vagas na Garagem:
Sim
Vagas Cobertas:
N/D
Orientação da Fachada:
Sul
Animais Permitidos:
Não
Condição Especial:
Nenhum
Características Adicionais:
Varanda, Iluminação, Calçada
Características Adicionais 2:
Por favor, confirme com o HOA
Mapa
  • Endereço
    2555 W PLATT ST
Fale com um profissional
Por Que Nos Escolher?
  • Comunicação e Transparência
  • Negociação Qualificada
  • Rede Profissional Robusta
  • Suporte Pós-Venda
Propriedades em Destaque

Imóveis relacionados

avt
Daniel Dourado
$ 282,000
avt
Daniel Dourado
$ 315,000
avt
Daniel Dourado
$ 289,900
avt
Daniel Dourado
$ 410,000
avt
Daniel Dourado
$ 290,000
img
  • Featured
  • Active
Townhouse

19915 GULF BLVD 605 #605

  • 4
  • 4
  • 207 m²
avt
Daniel Dourado
$ 1,049,900
img
  • Featured
  • Active
Townhouse

244 COUNTRYSIDE KEY BLVD

  • 2
  • 3
  • 103 m²
avt
Daniel Dourado
$ 235,000
avt
Daniel Dourado
$ 725,000
avt
Daniel Dourado
$ 324,990
avt
Daniel Dourado
$ 530,000
avt
Daniel Dourado
$ 245,000
avt
Daniel Dourado
$ 285,000