Active

$640,000

Características:
  • 3 Quartos
  • 4 Banheiros
  • 177 m²
Visão Geral
  • ID: MFRTB8330778
  • Quartos: 3
  • Banheiros: 4
  • Tamanho: 177 m²
Detalhes do Imóvel
Observações
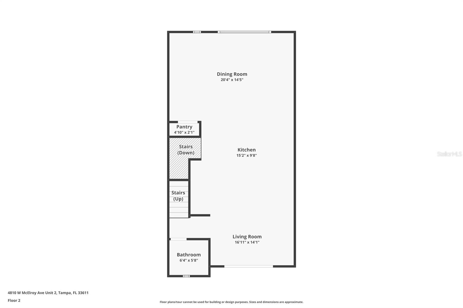
Impressionante moradia urbana de 3 camas e 3,5 banheiros no altamente desejável Exchange em South Westshore! Esta moradia lindamente projetada oferece um layout espaçoso e funcional com 3 quartos, 3,5 banheiros e garagem para 2 carros. O primeiro andar possui um quarto privativo e acesso conveniente à garagem, enquanto o segundo andar é perfeito para entretenimento com sua área de estar em conceito aberto, cozinha moderna e ampla varanda. A cozinha gourmet inclui eletrodomésticos de aço inoxidável, um backsplash moderno e elegante, bancadas de granito, armários com fechamento suave e uma ilha com balcão para café da manhã - ideal para cozinhar e jantares casuais. Pisos de madeira, tetos altos e luminárias contemporâneas contribuem para a atmosfera elegante da casa. No andar de cima, você encontrará quartos de tamanho generoso com armários enormes e banheiros lindos que criam um retiro relaxante. Aproveite a conveniência de uma vida livre de manutenção, incluindo pintura externa, paisagismo, irrigação, controle de pragas, remoção de lixo e uma caixa de correio comunitária. Localizada em um distrito escolar público altamente conceituado, esta casa fica perto de W Gandy Blvd, praias locais, atividades recreativas, instalações médicas, lojas e mantimentos. Não perca a oportunidade de tornar seu sobrado pronto para morar!
Considerações Financeiras
Preço:
$640,000
Taxa de HOA:
290
Valor do Imposto:
$9342
Preço por m²:
$334.73
Descrição Legal do Imposto:
SOUTH WESTSHORE TOWNHOMES LOTE 2
Características Exteriores
Tamanho do Lote:
1139
Características do Lote:
N/D
Beira-mar:
Não
Vagas de Estacionamento:
N/D
Estacionamento:
Abridor de porta de garagem
Telhado:
Outro
Piscina:
Não
Características da Piscina:
N/D
Características Interiores
Quartos:
3
Banheiros:
4
Aquecimento:
Central, Elétrica
Resfriamento:
Central Aérea
Eletrodomésticos:
Máquina de lavar louça, secadora, micro-ondas, fogão, geladeira, lavadora
Mobiliado:
Não
Andar:
Madeira
Níveis:
Três ou mais
Características Adicionais
Subtipo de Imóvel:
Moradia
Estilo:
N/D
Ano de Construção:
2017
Tipo de Construção:
Estuque, quadro
Vagas na Garagem:
Sim
Vagas Cobertas:
N/D
Orientação da Fachada:
Sul
Animais Permitidos:
Sim
Condição Especial:
Nenhum
Características Adicionais:
Varanda, Iluminação, Portas de Correr
Características Adicionais 2:
Comprador deve verificar.
Mapa
  • Endereço
    4810 W MCELROY AVE #2
Fale com um profissional
Por Que Nos Escolher?
  • Comunicação e Transparência
  • Negociação Qualificada
  • Rede Profissional Robusta
  • Suporte Pós-Venda
Propriedades em Destaque

Imóveis relacionados

avt
Daniel Dourado
$ 249,900
avt
Daniel Dourado
$ 649,900
img
  • Featured
  • Active
Townhouse

1337 SHINNECOCK HILLS DR

  • 4
  • 4
  • 238 m²
avt
Daniel Dourado
$ 425,000
avt
Daniel Dourado
$ 450,000
avt
Daniel Dourado
$ 329,900
avt
Daniel Dourado
$ 385,000
img
  • Featured
  • Active
Townhouse

2853 SHADY WILLOW LN

  • 3
  • 3
  • 139 m²
avt
Daniel Dourado
$ 339,900
img
  • Featured
  • Active
Townhouse

3511 HEARDS FERRY DR

  • 4
  • 3
  • 255 m²
avt
Daniel Dourado
$ 540,000
img
  • Featured
  • Active
Townhouse

. SHELL CASTLE CLUB #48

  • 4
  • 6
  • 408 m²
avt
Daniel Dourado
$ 1,995,000
img
  • Featured
  • Active
Townhouse

12433 SW 11TH TER #A

  • 4
  • 3
  • 179 m²
avt
Daniel Dourado
$ 430,000
avt
Daniel Dourado
$ 470,000
avt
Daniel Dourado
$ 299,900