Active

$292,070

Características:
  • 5 Quartos
  • 2 Banheiros
  • 158 m²
Visão Geral
  • ID: MFROM713016
  • Quartos: 5
  • Banheiros: 2
  • Tamanho: 158 m²
Detalhes do Imóvel
Observações
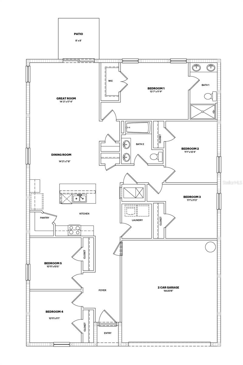
Em construção. Esta casa térrea, toda construída em blocos de concreto, com 5 quartos e 2 banheiros, é um espaço de vida cuidadosamente projetado. Com um layout de conceito aberto, este plano oferece o equilíbrio perfeito entre funcionalidade, conforto e estilo moderno. A cozinha tem uma localização central com bancadas de quartzo, ilha central, despensa e eletrodomésticos em aço inoxidável, incluindo máquina de lavar louça embutida, fogão e micro-ondas. A suíte principal fica na parte traseira da casa para maior privacidade e inclui um espaçoso closet e banheiro privativo. Quatro quartos adicionais compartilham o segundo banheiro com uma lavanderia dedicada nas proximidades. Imagens, fotografias, cores, características e tamanhos são apenas para fins ilustrativos e variam de acordo com as casas construídas. As informações da casa e da comunidade, incluindo preços, recursos incluídos, termos, disponibilidade e comodidades, estão sujeitas a alterações e venda prévia a qualquer momento, sem aviso prévio ou obrigação. CRC057592.
Considerações Financeiras
Preço:
$292,070
Taxa de HOA:
69
Valor do Imposto:
$0
Preço por m²:
$171
Descrição Legal do Imposto:
SEÇÃO 23 TWP 17 RGE 23 LIVRO PLAT 016 PÁGINA 074 SUNSET HILLS FASE II LOTE 161
Características Exteriores
Tamanho do Lote:
6600
Características do Lote:
N/D
Beira-mar:
Não
Vagas de Estacionamento:
N/D
Estacionamento:
N/D
Telhado:
Telha
Piscina:
Não
Características da Piscina:
N/D
Características Interiores
Quartos:
5
Banheiros:
2
Aquecimento:
Elétrica, Bomba de Calor
Resfriamento:
Central Aérea
Eletrodomésticos:
Máquina de lavar louça, micro-ondas, fogão
Mobiliado:
Não
Andar:
Tapete, Vinil Luxo
Níveis:
Um
Características Adicionais
Subtipo de Imóvel:
Residência Unifamiliar
Estilo:
N/D
Ano de Construção:
2025
Tipo de Construção:
Bloquear
Vagas na Garagem:
Sim
Vagas Cobertas:
N/D
Orientação da Fachada:
Noroeste
Animais Permitidos:
Sim
Condição Especial:
Nenhum
Características Adicionais:
N/D
Características Adicionais 2:
De acordo com as diretrizes HOA
Mapa
  • Endereço
    15901 SE 101ST CIR
Fale com um profissional
Por Que Nos Escolher?
  • Comunicação e Transparência
  • Negociação Qualificada
  • Rede Profissional Robusta
  • Suporte Pós-Venda
Propriedades em Destaque

Imóveis relacionados

avt
Daniel Dourado
$ 299,990
avt
Daniel Dourado
$ 350,000
avt
Daniel Dourado
$ 314,990
avt
Daniel Dourado
$ 349,000
avt
Daniel Dourado
$ 681,000
avt
Daniel Dourado
$ 734,990
avt
Daniel Dourado
$ 369,907
avt
Daniel Dourado
$ 2,900,000
avt
Daniel Dourado
$ 489,000
avt
Daniel Dourado
$ 430,990