Active

$1,125,000

Características:
  • 4 Quartos
  • 3 Banheiros
  • 231 m²
Visão Geral
  • ID: MFRTB8473003
  • Quartos: 4
  • Banheiros: 3
  • Tamanho: 231 m²
Detalhes do Imóvel
Observações
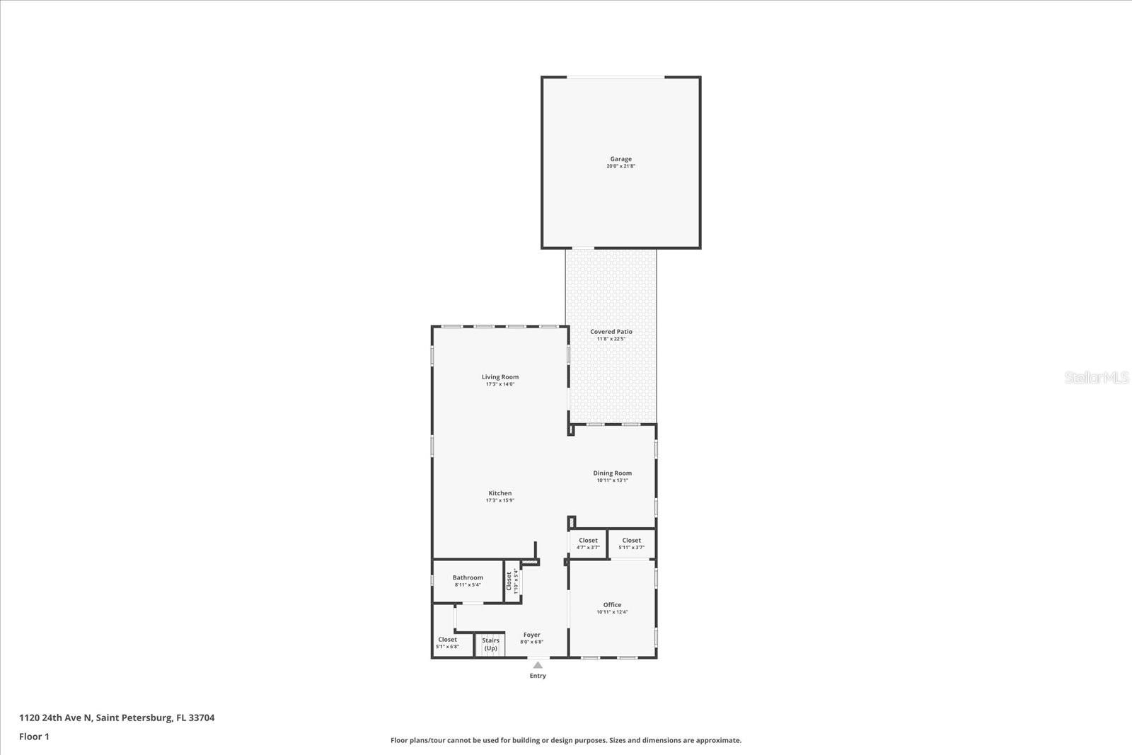
Lindas 2023 Green Street Homes construídas no cobiçado bairro de Woodlawn, a poucos minutos do Crescent Lake Park e a apenas 10 minutos do centro de São Petersburgo. Esta casa com classificação Energy Star apresenta construção em blocos no nível do solo e quase não foi habitada, oferecendo o conforto e a eficiência de uma construção quase nova. A bomba de calor de velocidade variável Trane atualizada como eficiência adicional. No interior, tetos altos, pisos de madeira e luz natural abundante criam um espaço aberto e luminoso, projetado tanto para a vida cotidiana quanto para o entretenimento. A cozinha é uma verdadeira peça central, com bancadas de granito, fogão a gás, eletrodomésticos de aço inoxidável, iluminação sob o armário, uma grande ilha central e uma despensa - perfeita para receber ou refeições casuais em casa. A grande sala flui perfeitamente para a área de jantar, fazendo com que o layout pareça aberto, mas intencional. A casa oferece quatro quartos e três banheiros completos, incluindo um quarto no primeiro andar e banheiro completo, ideal para hóspedes, home office ou residência multigeracional. No andar de cima, a suíte principal é um retiro relaxante com teto falso e um espaçoso banheiro privativo com pia dupla, banheira de imersão e chuveiro separado. Aproveite a vida na Flórida com varandas frontais e traseiras, além de um quintal com espaço para uma futura piscina. Idealmente localizada perto de Trader Joe's, Fresh Market, Mazzaro's Italian Market e alguns dos parques e bairros mais queridos de St. Pete, esta casa oferece design moderno, layout atencioso e uma localização excepcional.
Considerações Financeiras
Preço:
$1,125,000
Taxa de HOA:
N/D
Valor do Imposto:
$10810.42
Preço por m²:
$450.72
Descrição Legal do Imposto:
BROADWAY ADICIONAR BLK F, LOTE 5
Características Exteriores
Tamanho do Lote:
6499
Características do Lote:
Lote Amplo, Calçada
Beira-mar:
Não
Vagas de Estacionamento:
N/D
Estacionamento:
Abridor de porta de garagem, garagem voltada para trás
Telhado:
Telha
Piscina:
Não
Características da Piscina:
N/D
Características Interiores
Quartos:
4
Banheiros:
3
Aquecimento:
Central, Zoneado
Resfriamento:
Ar Central, Zoneado
Eletrodomésticos:
Máquina de lavar louça, descarte, secadora, aquecedor de água a gás, micro-ondas, fogão, geladeira, aquecedor de água sem tanque, lavadora
Mobiliado:
Sim
Andar:
Madeira
Níveis:
Dois
Características Adicionais
Subtipo de Imóvel:
Residência Unifamiliar
Estilo:
N/D
Ano de Construção:
2023
Tipo de Construção:
Bloco, estuque, quadro
Vagas na Garagem:
Sim
Vagas Cobertas:
N/D
Orientação da Fachada:
Norte
Animais Permitidos:
Não
Condição Especial:
Nenhum
Características Adicionais:
Calçada
Características Adicionais 2:
Por favor, verifique com o município da cidade para obter informações sobre locação.
Mapa
  • Endereço
    1120 24TH AVE N
Fale com um profissional
Por Que Nos Escolher?
  • Comunicação e Transparência
  • Negociação Qualificada
  • Rede Profissional Robusta
  • Suporte Pós-Venda
Propriedades em Destaque

Imóveis relacionados

avt
Daniel Dourado
$ 381,200
avt
Daniel Dourado
$ 1,549,000
avt
Daniel Dourado
$ 925,000
avt
Daniel Dourado
$ 505,000
avt
Daniel Dourado
$ 1,100,000
avt
Daniel Dourado
$ 350,000
avt
Daniel Dourado
$ 850,000
avt
Daniel Dourado
$ 475,000
avt
Daniel Dourado
$ 359,900
avt
Daniel Dourado
$ 455,000