Active

$1,090,000

Características:
  • 4 Quartos
  • 2 Banheiros
  • 158 m²
Visão Geral
  • ID: MFRU8251340
  • Quartos: 4
  • Banheiros: 2
  • Tamanho: 158 m²
Detalhes do Imóvel
Observações
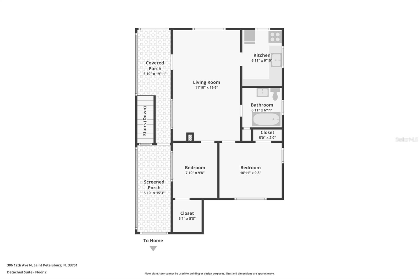
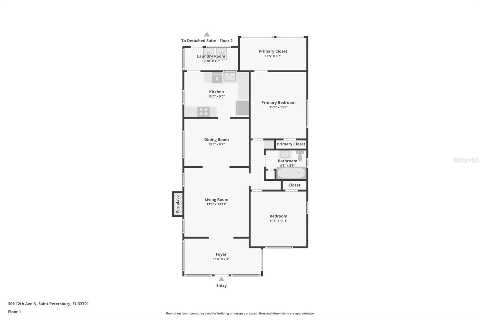
Bem -vindo à 306 12th Avenue North, um bangalô encantador localizado no coração de São Petersburgo, que pode ser percorrido para o centro da cidade! Esta propriedade deliciosa oferece 4 quartos e 2 banheiros dentro de seus 1702 pés quadrados de espaço, situado em um generoso lote de 5606 pés quadrados. A casa possui uma garagem destacada, amplo espaço de armazenamento. Entre para descobrir uma imagem pitoresca do passado, pois essa varanda é tão adorável e cuidadosamente atualizada, com um novo sistema HVAC instalado em 2020, garantindo conforto durante todo o ano. O exterior da casa principal foi recentemente pintado no ano passado, aumentando seu apelo ao meio -fio. Entre na adorável varanda pitoresca e fechada da frente da frente e encontre o charme dos antigos bangalôs do Nordeste Classic! Grande espaço de vida e embutidos fofos com lavanderia interior na casa principal. O apartamento da garagem também foi lindamente repintado e possui novos pisos, oferecendo um espaço versátil para um hóspede. Aproveite a conveniência da lavanderia com uma lavadora e secadora incluída, além de espaço ao ar livre privado para relaxar e divertir. Essa residência bem mantida também vem com o benefício adicional de ser recentemente tentado e um novo aquecedor de água quente instalado, garantindo tranquilidade para seus novos proprietários. A localização desta propriedade é estelar, pois você pode caminhar para tomar café ou ver um show à noite ou andar de bicicleta ao longo do North Shore Park ao longo da baía! Pegue o jantar em um dos fabulosos restaurantes em praia ou um museu no centro de São Petersburgo! Perto da I-275 por uma curta distância de carro do Aeroporto Internacional de Tampa!
Considerações Financeiras
Preço:
$1,090,000
Taxa de HOA:
N/D
Valor do Imposto:
$11088
Preço por m²:
$640.42
Descrição Legal do Imposto:
Blk A, lote 10 de Jackson
Características Exteriores
Tamanho do Lote:
5606
Características do Lote:
Limites da cidade, calçada, tijolos de rua
Beira-mar:
Não
Vagas de Estacionamento:
N/D
Estacionamento:
Banho na garagem, convidado, workshop em garagem
Telhado:
Telha
Piscina:
Não
Características da Piscina:
N/D
Características Interiores
Quartos:
4
Banheiros:
2
Aquecimento:
Central
Resfriamento:
Central Aérea
Eletrodomésticos:
Lavagem de louça, descarte, secador, aquecedor de água elétrica, microondas, alcance, aquecedor de água sem tanque, arruela
Mobiliado:
Não
Andar:
Azulejo Cerâmico, Madeira
Níveis:
N/D
Características Adicionais
Subtipo de Imóvel:
Dúplex
Estilo:
N/D
Ano de Construção:
1925
Tipo de Construção:
Moldura de madeira
Vagas na Garagem:
Sim
Vagas Cobertas:
N/D
Orientação da Fachada:
N/D
Animais Permitidos:
Sim
Condição Especial:
Nenhum
Características Adicionais:
Cerca, sistema de irrigação, calçada
Características Adicionais 2:
Veja as diretrizes da cidade sobre aluguel.
Mapa
  • Endereço
    306 12TH AVE N
Fale com um profissional
Por Que Nos Escolher?
  • Comunicação e Transparência
  • Negociação Qualificada
  • Rede Profissional Robusta
  • Suporte Pós-Venda
Propriedades em Destaque

Imóveis relacionados

avt
Daniel Dourado
$ 475,000
avt
Daniel Dourado
$ 599,000
img
  • Featured
  • Active
Duplex

675 BLUEBILL CT #A

  • 9
  • 6
  • 224 m²
avt
Daniel Dourado
$ 505,000
img
  • Featured
  • Active
Duplex

418 BIG CEDAR WAY

  • 4
  • 4
  • 170 m²
avt
Daniel Dourado
$ 449,900
avt
Daniel Dourado
$ 779,000
avt
Daniel Dourado
$ 375,000
img
  • Featured
  • Active
Duplex

2359/2361 CHESTNUT HILLS DR

  • 4
  • 2
  • 149 m²
avt
Daniel Dourado
$ 315,000
avt
Daniel Dourado
$ 410,000
img
  • Featured
  • Active
Duplex

1827 LIVINGSTONE ST

  • 4
  • 2
  • 133 m²
avt
Daniel Dourado
$ 425,000
avt
Daniel Dourado
$ 699,000
img
  • Featured
  • Active
Duplex

1360 HOLIDAY DR #A & B

  • 3
  • 2
  • 122 m²
avt
Daniel Dourado
$ 850,000
img
  • Featured
  • Active
Duplex

1405 E HOLLAND AVE #A

  • 4
  • 2
  • 105 m²
avt
Daniel Dourado
$ 265,000