Active

$1,095,000

Características:
  • 5 Quartos
  • 3 Banheiros
  • 263 m²
Visão Geral
  • ID: MFRTB8448105
  • Quartos: 5
  • Banheiros: 3
  • Tamanho: 263 m²
Detalhes do Imóvel
Observações
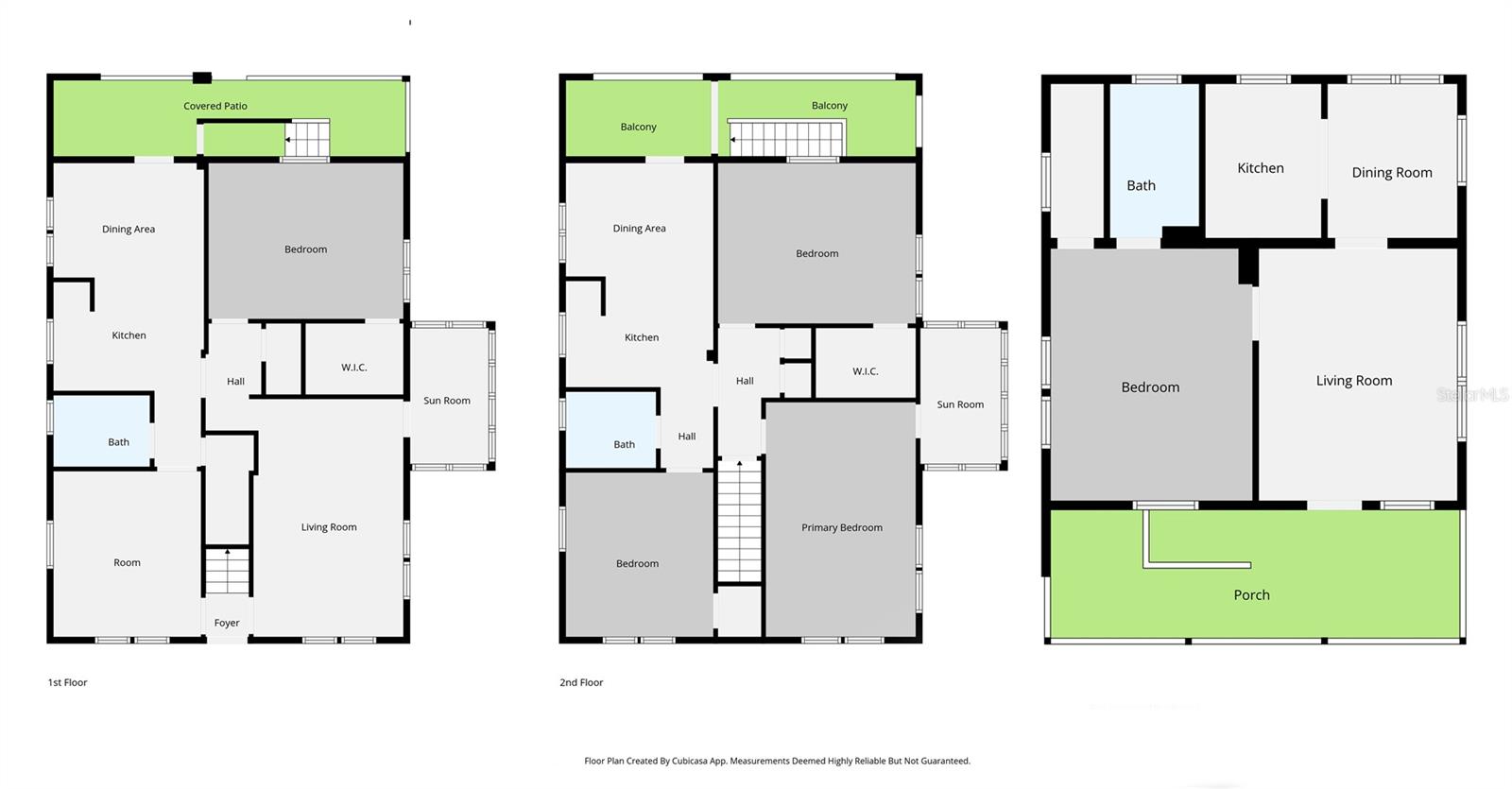
Localizado no altamente desejável bairro de Euclid St. Paul, em São Petersburgo, este triplex recentemente restaurado combina perfeitamente o charme histórico com atualizações modernas. A propriedade apresenta um mix de unidades versátil, incluindo duas unidades espaçosas de 2 quartos e 1 banheiro (cada uma com aproximadamente 1.131 pés quadrados), oferecendo grandes varandas traseiras, marquises, áreas de jantar e conexões de lavanderia separadas, bem como um apartamento de garagem de 1 quarto e 1 banheiro (576 pés quadrados) com sua própria lavanderia, varanda coberta e garagem para dois carros abaixo. O edifício da frente é construído inteiramente em blocos de concreto - incluindo os dois andares e o sistema de piso intermediário - enquanto o apartamento de garagem individual é construído com estrutura de madeira. Cada unidade desfruta de luz natural abundante, layouts espaçosos e uma combinação de bom gosto de acabamentos modernos e detalhes originais da época. As características da propriedade incluem medidores elétricos separados para cada unidade e um medidor de água/esgoto/lixo compartilhado, amplo estacionamento e espaços comuns convidativos para os inquilinos. Situada em uma charmosa rua de tijolos, a poucos passos do Crescent Lake Park e a poucos minutos do centro de São Petersburgo, esta propriedade oferece a oportunidade perfeita para investidores ou para quem deseja morar em uma unidade e alugar as outras. Uma propriedade verdadeiramente pronta para uso e geradora de renda em um dos bairros mais procurados de St. Pete.
Considerações Financeiras
Preço:
$1,095,000
Taxa de HOA:
N/D
Valor do Imposto:
$9018.1
Preço por m²:
$385.84
Descrição Legal do Imposto:
LOTE 17
Características Exteriores
Tamanho do Lote:
6351
Características do Lote:
Limites da cidade, nível, lote grande, calçada
Beira-mar:
Não
Vagas de Estacionamento:
N/D
Estacionamento:
A garagem enfrenta o nível traseiro, no nível do solo, convidado, aberto
Telhado:
Telha
Piscina:
Não
Características da Piscina:
N/D
Características Interiores
Quartos:
5
Banheiros:
3
Aquecimento:
Elétrico
Resfriamento:
Ar Central, Unidade(s) Mini-Split
Eletrodomésticos:
Aquecedor elétrico de água, fogão, geladeira
Mobiliado:
Não
Andar:
Vinil de luxo
Níveis:
Um
Características Adicionais
Subtipo de Imóvel:
Tríplice
Estilo:
N/D
Ano de Construção:
1925
Tipo de Construção:
Bloco, quadro
Vagas na Garagem:
Sim
Vagas Cobertas:
N/D
Orientação da Fachada:
N/D
Animais Permitidos:
Não
Condição Especial:
Nenhum
Características Adicionais:
Calçada, Armazenamento
Características Adicionais 2:
N/D
Mapa
  • Endereço
    925 16TH AVE N
Fale com um profissional
Por Que Nos Escolher?
  • Comunicação e Transparência
  • Negociação Qualificada
  • Rede Profissional Robusta
  • Suporte Pós-Venda
Propriedades em Destaque

Imóveis relacionados

img
  • Featured
  • Active
Triplex

1402 E 33RD AVE #A

  • 4
  • 4
  • 233 m²
avt
Daniel Dourado
$ 680,000
avt
Daniel Dourado
$ 1,100,000
img
  • Featured
  • Active
Triplex

1008 WESTSIDE DR

  • 4
  • 3
  • 125 m²
avt
Daniel Dourado
$ 350,000
img
  • Featured
  • Active
Triplex

3105 S CRYSTAL LAKE DR

  • 4
  • 3
  • 175 m²
avt
Daniel Dourado
$ 699,900
img
  • Featured
  • Active
Triplex

1379 S MARTIN LUTHER KING JR AVE

  • 5
  • 3
  • 148 m²
avt
Daniel Dourado
$ 449,000
avt
Daniel Dourado
$ 1,400,000
avt
Daniel Dourado
$ 375,000
avt
Daniel Dourado
$ 350,000
avt
Daniel Dourado
$ 1,399,000
img
  • Featured
  • Active
Triplex

6515 DIMARCO RD

  • 13
  • 9
  • 387 m²
avt
Daniel Dourado
$ 875,000
avt
Daniel Dourado
$ 529,000
avt
Daniel Dourado
$ 689,900