Active

$1,100,000

Características:
  • Quartos
  • 0 Banheiros
  • 456 m²
Visão Geral
  • ID: MFRC7520206
  • Quartos:
  • Banheiros: 0
  • Tamanho: 456 m²
Detalhes do Imóvel
Observações
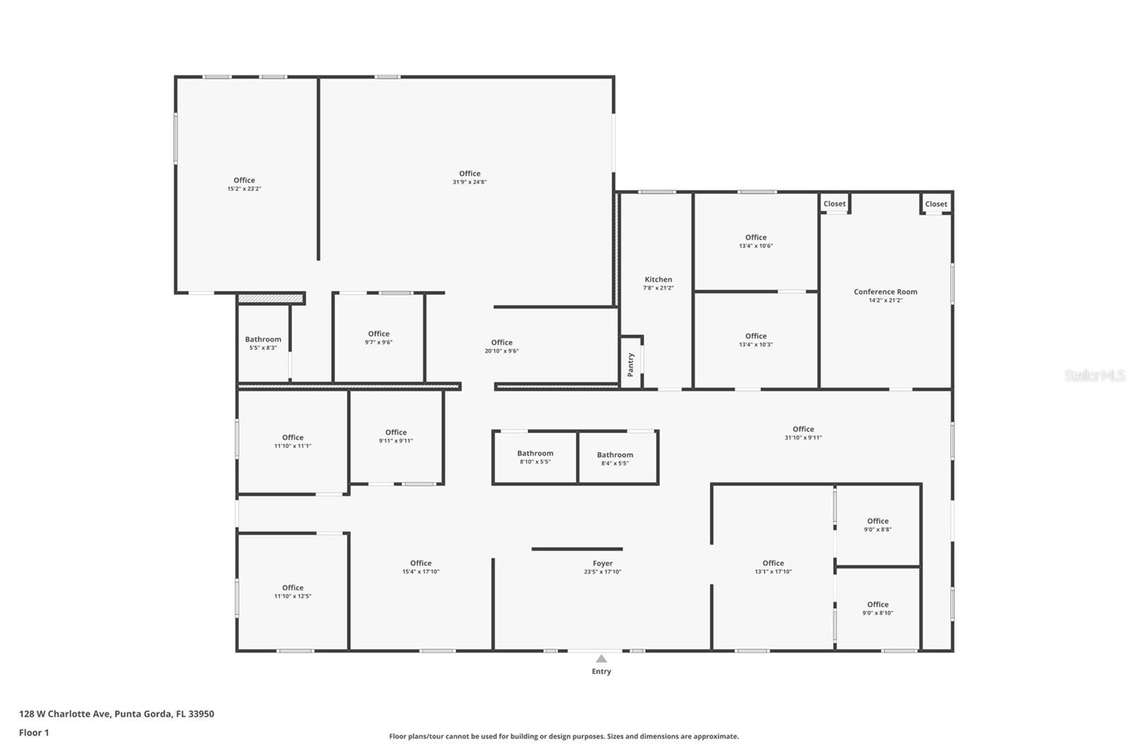
Posicione seu negócio onde a visibilidade, a acessibilidade e a comunidade convergem no centro de Punta Gorda. Este edifício de escritórios profissional estabelecido oferece aproximadamente 4.917± pés quadrados de espaço comercial altamente flexível, projetado para se adaptar a uma variedade de necessidades comerciais. O layout interno inclui vários escritórios privativos, sala de conferências, área de recepção, cozinha/sala de descanso, três banheiros e diversas grandes áreas multiuso, permitindo um fluxo de trabalho eficiente e configurações personalizáveis. A propriedade oferece estacionamento em três lados, além de estacionamento conveniente na rua, aumentando a facilidade de acesso para funcionários e clientes. Com acesso rápido à US-41 e proximidade imediata de empresas, restaurantes, parques à beira-mar e comodidades cívicas do centro da cidade, o local oferece excelente conectividade e conveniência no dia a dia. Punta Gorda é amplamente reconhecida por seu centro vibrante e acolhedor e seu forte senso de comunidade, tornando-a um destino desejável para usuários profissionais, médicos e orientados a serviços. Zoneada no Distrito Central da Cidade, esta propriedade permite uma ampla gama de usos comerciais permitidos e representa uma oportunidade atraente dentro de um dos corredores comerciais mais procurados da cidade.
Considerações Financeiras
Preço:
$1,100,000
Taxa de HOA:
N/D
Valor do Imposto:
$11872.46
Preço por m²:
$223.71
Descrição Legal do Imposto:
PUG 000 0064 0012 PUNTA GORDA BLK 64 LTS 12 13 & W1/2 VAC ALEY ADJ THERETO 2/513 294/684 494/852 576/24-25 609/1168 719/378 913/190 UNREC ARTIGO DE ALTERAÇÃO 3985/7 74
Características Exteriores
Tamanho do Lote:
10668
Características do Lote:
Lote de esquina, zona de inundação, limites da cidade, calçada, iluminação pública
Beira-mar:
Não
Vagas de Estacionamento:
N/D
Estacionamento:
Vagas de estacionamento - 6 a 12
Telhado:
Telha
Piscina:
Não
Características da Piscina:
N/D
Características Interiores
Quartos:
Banheiros:
0
Aquecimento:
N/D
Resfriamento:
Central Aérea
Eletrodomésticos:
N/D
Mobiliado:
Não
Andar:
Vinil de luxo
Níveis:
Um
Características Adicionais
Subtipo de Imóvel:
Escritório
Estilo:
N/D
Ano de Construção:
1953
Tipo de Construção:
Tijolo
Vagas na Garagem:
Não
Vagas Cobertas:
N/D
Orientação da Fachada:
Sul
Animais Permitidos:
Não
Condição Especial:
Nenhum
Características Adicionais:
N/D
Características Adicionais 2:
N/D
Mapa
  • Endereço
    128 W CHARLOTTE AVE
Fale com um profissional
Por Que Nos Escolher?
  • Comunicação e Transparência
  • Negociação Qualificada
  • Rede Profissional Robusta
  • Suporte Pós-Venda
Propriedades em Destaque

Imóveis relacionados

img
  • Featured
  • Active
Office

12250 MENTA ST #106A

  • 0
  • 0 m²
avt
Daniel Dourado
$ 200,000
img
  • Featured
  • Active
Office

415 S SUMMERLIN AVE

  • 0
  • 100 m²
avt
Daniel Dourado
$ 589,000
avt
Daniel Dourado
$ 1,599,000
img
  • Featured
  • Active
Office

5001 S MACDILL AVE #100

  • 0
  • 260 m²
avt
Daniel Dourado
$ 1,500,000
img
  • Featured
  • Active
Office

5550 W EXECUTIVE DR #250

  • 0
  • 699 m²
avt
Daniel Dourado
$ 3,650,000
avt
Daniel Dourado
$ 495,000
img
  • Featured
  • Active
Office

131 W BROADWAY ST #1001

  • 0
  • 263 m²
avt
Daniel Dourado
$ 875,000
img
  • Featured
  • Active
Office

1118 S ORANGE AVE #104

  • 0
  • 27 m²
avt
Daniel Dourado
$ 215,000
avt
Daniel Dourado
$ 400,000
img
  • Featured
  • Active
Office

19995 US HIGHWAY 19 N

  • 0
  • 774 m²
avt
Daniel Dourado
$ 7,500,000
img
  • Featured
  • Active
Office

48 ESQUINA CORCHADO Y RUIZ BELVIS

  • 0
  • 0 m²
avt
Daniel Dourado
$ 1,775,000
avt
Daniel Dourado
$ 625,000