Active

$283,990

Características:
  • 3 Quartos
  • 2 Banheiros
  • 138 m²
Visão Geral
  • ID: MFRO6336458
  • Quartos: 3
  • Banheiros: 2
  • Tamanho: 138 m²
Detalhes do Imóvel
Observações
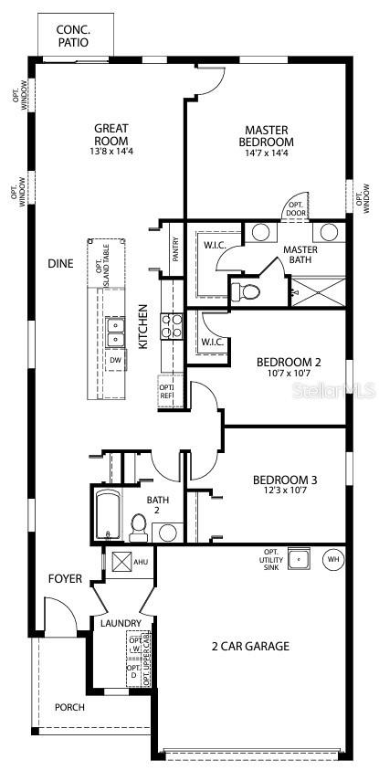
Pré-Construção. A ser construído. Lake Deer Estates - Elegância e conforto combinados! Livinidade da calçada com beco sem saída! Esta casa encantadora oferece uma planta de piso cuidadosamente projetada e altamente eficiente que maximiza cada centímetro de espaço. Uma varanda da frente acolhedora se abre para um mudroom com lavadora e secadora, fornecendo fácil acesso à espaçosa garagem de dois carros e conectando perfeitamente à cozinha expansiva no coração da casa. A cozinha é o sonho de um chef, apresentando uma linha completa de utensílios de aço inoxidável, incluindo uma geladeira lado a lado, bancadas de pedra, uma grande ilha e abundante espaço para despensa, com uma passagem conveniente para a grande sala para um entretenimento sem esforço. A grande sala brilhante e arejada na parte traseira da casa é preenchida com luz natural através de uma grande porta de vidro deslizante que se abre para o pátio com vista para uma lagoa de retenção, oferecendo vistas serenas de água e o cenário perfeito para relaxar ou hospedar convidados. A suíte primária, escondida por privacidade, inclui um espaçoso closet e um luxuoso banheiro com chuveiro e gabinete de azulejos. Dois quartos adicionais oferecem espaço generoso e amplo armazenamento, complementado por um segundo banheiro completo. Os recursos adicionais incluem paisagismo com irrigação frontal, atualizações modernas de casa inteligentes, como a campainha de vídeo do anel, termostato inteligente, bloqueio de porta inteligente de entrada sem chave e interruptores deako e uma garantia completa do construtor para tranquilidade. Estilo de mistura, função e conforto, esta casa em Lake Deer Estates oferece o retiro perfeito em uma comunidade cênica e familiar.
Considerações Financeiras
Preço:
$283,990
Taxa de HOA:
248
Valor do Imposto:
$3752
Preço por m²:
$190.34
Descrição Legal do Imposto:
Lake Deer Estates PB 199 PG 19-27 Lote 186
Características Exteriores
Tamanho do Lote:
4630
Características do Lote:
Paisagístico, Nível
Beira-mar:
Não
Vagas de Estacionamento:
N/D
Estacionamento:
Entrada de automóveis, abridor de porta de garagem
Telhado:
Outro, telha
Piscina:
Não
Características da Piscina:
N/D
Características Interiores
Quartos:
3
Banheiros:
2
Aquecimento:
Central, Elétrica
Resfriamento:
Central Aérea
Eletrodomésticos:
Máquina de lavar louça, descarte, secadora, micro-ondas, fogão, geladeira, lavadora
Mobiliado:
Sim
Andar:
Tapete, Azulejo Cerâmico
Níveis:
Um
Características Adicionais
Subtipo de Imóvel:
Residência Unifamiliar
Estilo:
N/D
Ano de Construção:
2026
Tipo de Construção:
Bloco, tipo HardiPlank, estuque
Vagas na Garagem:
Sim
Vagas Cobertas:
N/D
Orientação da Fachada:
Leste
Animais Permitidos:
Sim
Condição Especial:
Nenhum
Características Adicionais:
Portas deslizantes
Características Adicionais 2:
Consulte a associação comunitária para todas as regras e diretrizes
Mapa
  • Endereço
    3928 BLUETHREAD WAY
Fale com um profissional
Por Que Nos Escolher?
  • Comunicação e Transparência
  • Negociação Qualificada
  • Rede Profissional Robusta
  • Suporte Pós-Venda
Propriedades em Destaque

Imóveis relacionados

avt
Daniel Dourado
$ 482,990
avt
Daniel Dourado
$ 369,900
avt
Daniel Dourado
$ 299,000
avt
Daniel Dourado
$ 230,000
avt
Daniel Dourado
$ 452,990
avt
Daniel Dourado
$ 331,750
avt
Daniel Dourado
$ 529,900
avt
Daniel Dourado
$ 524,900
avt
Daniel Dourado
$ 332,990
avt
Daniel Dourado
$ 384,900
avt
Daniel Dourado
$ 1,450,000
avt
Daniel Dourado
$ 1,150,000