Active

$296,000

Características:
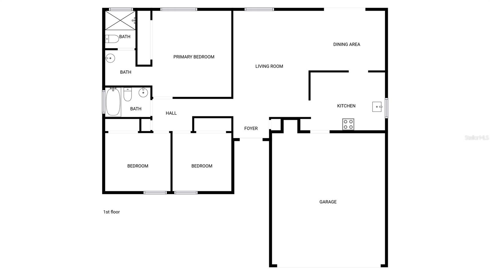
  • 3 Quartos
  • 2 Banheiros
  • 117 m²
Visão Geral
  • ID: MFRO6378374
  • Quartos: 3
  • Banheiros: 2
  • Tamanho: 117 m²
Detalhes do Imóvel
Observações
Bem-vindo ao 6137 Sparling Hills Cir, uma propriedade que exala charme e conforto. A casa dispõe de um pátio acolhedor, perfeito para desfrutar de um café da manhã ou de uma leitura à noite. O quintal vedado proporciona privacidade e espaço para atividades de lazer. O interior da casa foi pintado de fresco, oferecendo uma estética clean e moderna. O exterior também apresenta pintura fresca, realçando a atratividade do imóvel. A substituição parcial do piso foi feita, aumentando o frescor e o apelo geral da casa. Esta propriedade é uma verdadeira joia, oferecendo uma mistura de conforto e estilo que certamente impressionará. Garantia residencial de 100 dias incluída com ativação do comprador
Considerações Financeiras
Preço:
$296,000
Taxa de HOA:
N/D
Valor do Imposto:
$1010
Preço por m²:
$233.81
Descrição Legal do Imposto:
SPARLING HILLS 11/128 LOTE 37
Características Exteriores
Tamanho do Lote:
10911
Características do Lote:
N/D
Beira-mar:
Não
Vagas de Estacionamento:
N/D
Estacionamento:
Entrada
Telhado:
Telha
Piscina:
Não
Características da Piscina:
N/D
Características Interiores
Quartos:
3
Banheiros:
2
Aquecimento:
Central
Resfriamento:
Central Aérea
Eletrodomésticos:
Aquecedor elétrico de água, outro
Mobiliado:
Sim
Andar:
Tapete
Níveis:
Um
Características Adicionais
Subtipo de Imóvel:
Residência Unifamiliar
Estilo:
N/D
Ano de Construção:
1984
Tipo de Construção:
Bloco, revestimento de madeira
Vagas na Garagem:
Sim
Vagas Cobertas:
N/D
Orientação da Fachada:
Sul
Animais Permitidos:
Não
Condição Especial:
Nenhum
Características Adicionais:
Outro
Características Adicionais 2:
Comprador para verificar.
Mapa
  • Endereço
    6137 SPARLING HILLS CIR
Fale com um profissional
Por Que Nos Escolher?
  • Comunicação e Transparência
  • Negociação Qualificada
  • Rede Profissional Robusta
  • Suporte Pós-Venda
Propriedades em Destaque

Imóveis relacionados

avt
Daniel Dourado
$ 499,000
avt
Daniel Dourado
$ 599,900
avt
Daniel Dourado
$ 495,000
avt
Daniel Dourado
$ 414,900
avt
Daniel Dourado
$ 549,000
avt
Daniel Dourado
$ 219,500
avt
Daniel Dourado
$ 650,000
avt
Daniel Dourado
$ 419,900
avt
Daniel Dourado
$ 899,000