Active

$650,000

Características:
  • 4 Quartos
  • 3 Banheiros
  • 251 m²
Visão Geral
  • ID: MFRC7522198
  • Quartos: 4
  • Banheiros: 3
  • Tamanho: 251 m²
Detalhes do Imóvel
Observações
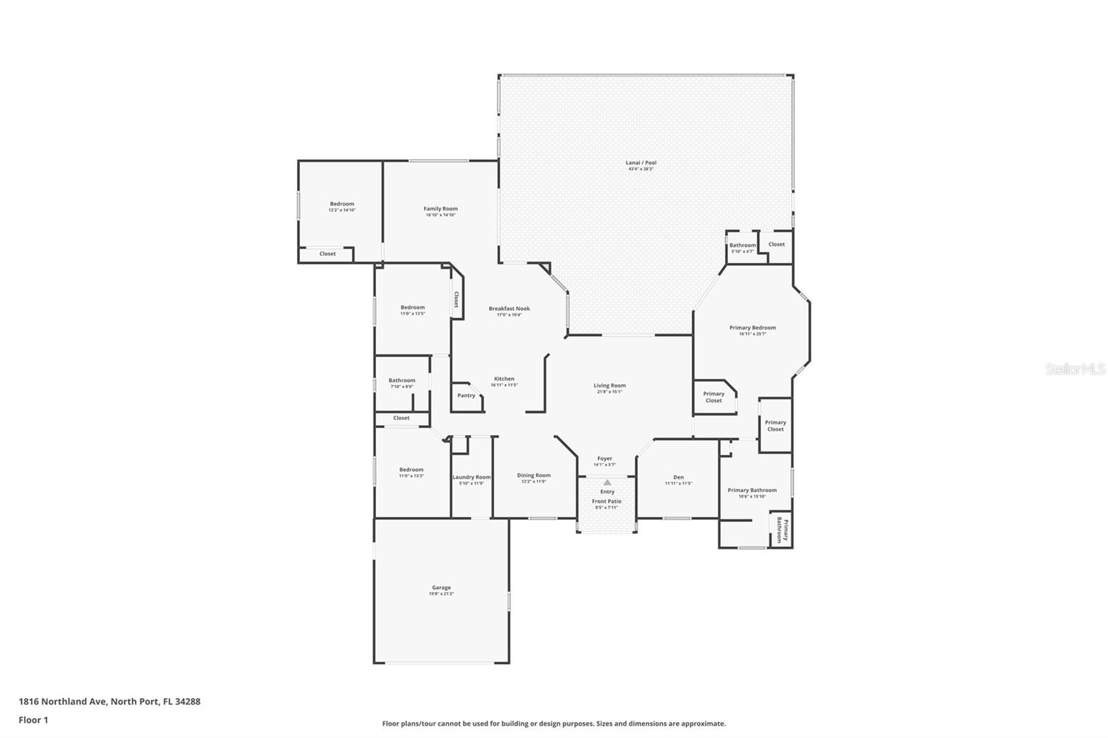
Descubra a vida confortável na Flórida nesta casa bem conservada e mobiliada de 4 quartos e 2,5 banheiros, localizada em um bairro tranquilo de North Port. NÃO É UMA ZONA DE INUNDAÇÃO! A propriedade apresenta um layout aberto convidativo com áreas de estar iluminadas que fluem facilmente para a área de jantar e cozinha, criando uma configuração funcional para a vida cotidiana. A cozinha possui armários de madeira com fechamento lento, bancadas em granito, eletrodomésticos em aço inox, balcão e copa. Duas áreas de estar incluem uma ampla sala de estar com teto triplo e controles deslizantes de vidro, a sala com controles deslizantes de vidro que levam à varanda e à área da piscina. O design de quarto dividido oferece privacidade, com uma espaçosa suíte principal com closet e banheiro privativo com duas pias e banheira de hidromassagem. Teto bandeja no quarto principal com barras de vidro que levam à área da piscina. Os quartos adicionais são bem dimensionados e versáteis para hóspedes ou melhorias de móveis. Piscina de água salgada aquecida e banheira de hidromassagem, bar molhado, arrecadação e lavabo. NOVO TELHADO e Isolamento 2022. Azulejo novo em todas as áreas habitacionais. Convenientemente situado perto de lojas, restaurantes, parques e praias da Costa do Golfo. A casa oferece uma mistura equilibrada de conforto, conveniência e valor em uma comunidade em crescimento. “Tour Virtual 1” para visualizar o Tour 3-D e a Planta Baixa. "Video Tour 2" para ver o vídeo tour.
Considerações Financeiras
Preço:
$650,000
Taxa de HOA:
N/D
Valor do Imposto:
$7371.34
Preço por m²:
$239.68
Descrição Legal do Imposto:
LOTE 23 BLK 2572 51º ADICIONAR AO PORTO CHARLOTTE
Características Exteriores
Tamanho do Lote:
13103
Características do Lote:
Lote de esquina, pavimentado
Beira-mar:
Não
Vagas de Estacionamento:
N/D
Estacionamento:
Estacionamento na calçada, entrada de automóveis, abridor de porta de garagem, fora da rua
Telhado:
Telha
Piscina:
Sim
Características da Piscina:
Gunita, água salgada
Características Interiores
Quartos:
4
Banheiros:
3
Aquecimento:
Elétrico
Resfriamento:
Central Aérea
Eletrodomésticos:
Máquina de lavar louça, secadora, aquecedor elétrico de água, exaustor, micro-ondas, geladeira, lavadora, sistema de filtragem de água
Mobiliado:
Sim
Andar:
Carpete, Azulejo Cerâmico, Laminado, Vinil
Níveis:
Um
Características Adicionais
Subtipo de Imóvel:
Residência Unifamiliar
Estilo:
N/D
Ano de Construção:
2012
Tipo de Construção:
Bloco, Estuque
Vagas na Garagem:
Sim
Vagas Cobertas:
N/D
Orientação da Fachada:
Sul
Animais Permitidos:
Sim
Condição Especial:
Nenhum
Características Adicionais:
Caixa de correio privada, calhas de chuva, portas de correr
Características Adicionais 2:
N/D
Mapa
  • Endereço
    1816 NORTHLAND AVE
Fale com um profissional
Por Que Nos Escolher?
  • Comunicação e Transparência
  • Negociação Qualificada
  • Rede Profissional Robusta
  • Suporte Pós-Venda
Propriedades em Destaque

Imóveis relacionados

avt
Daniel Dourado
$ 219,500
avt
Daniel Dourado
$ 414,900
avt
Daniel Dourado
$ 549,000
avt
Daniel Dourado
$ 495,000
avt
Daniel Dourado
$ 499,000
avt
Daniel Dourado
$ 599,900
avt
Daniel Dourado
$ 899,000
avt
Daniel Dourado
$ 419,900
avt
Daniel Dourado
$ 619,000