Active

$419,900

Características:
  • 3 Quartos
  • 3 Banheiros
  • 154 m²
Visão Geral
  • ID: MFRO6326565
  • Quartos: 3
  • Banheiros: 3
  • Tamanho: 154 m²
Detalhes do Imóvel
Observações
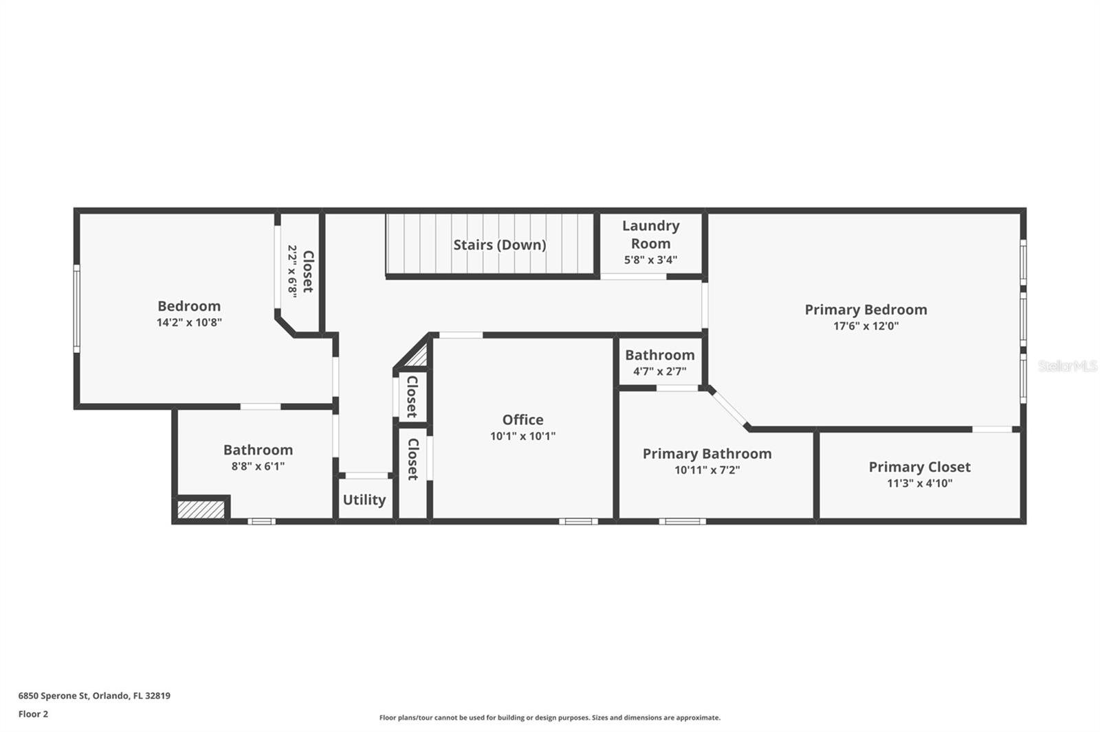
O vendedor que oferece US $ 10.000 no custo de fechamento. Bem -vindo ao Vistas no Phillips Commons, um condomínio fechado lindamente mantido em um dos bairros mais desejáveis de Orlando. Convenientemente localizado a poucos minutos do Universal Studios, da Disney, das principais rodovias e do Restaurant Row, esta área oferece um estilo de vida vibrante. Este Townhome de 3 quartos totalmente atualizado está pronto para mudar, com novos aparelhos de aço inoxidável (2024), recém-instalados Pella Windows (2024), um novo AC (2024), uma lavadora e secadora (2023), piso de madeira luxuoso e pisos de madeira e segunda renovados (2017) com um banho vibrante. O nível principal de conceito aberto brilhante possui portas deslizantes expansivas de 3 painéis que levam a um pátio sereno exibido-perfeito para o café da manhã ou o relaxamento da noite. A ampla luz natural preenche os dois níveis da casa, criando uma atmosfera brilhante e convidativa. Desfrute de comodidades no estilo resort, incluindo uma piscina comunitária e tranquilidade com o sistema de portão automatizado e a patrulha de segurança noturna. Isso é mais do que apenas um lar; É um estilo de vida esperando para ser abraçado. Não perca sua oportunidade de possuir nesta comunidade altamente procurada. Agende sua turnê privada hoje e experimente tudo o que as vistas do Phillips Commons têm a oferecer!
Considerações Financeiras
Preço:
$419,900
Taxa de HOA:
385
Valor do Imposto:
$4069.22
Preço por m²:
$251.74
Descrição Legal do Imposto:
Vistas no Phillips Commons 61/93 lote 149
Características Exteriores
Tamanho do Lote:
2292
Características do Lote:
N/D
Beira-mar:
Não
Vagas de Estacionamento:
N/D
Estacionamento:
N/D
Telhado:
Telha
Piscina:
Não
Características da Piscina:
N/D
Características Interiores
Quartos:
3
Banheiros:
3
Aquecimento:
Central
Resfriamento:
Central Aérea
Eletrodomésticos:
Secadora, fogão, geladeira, lavadora
Mobiliado:
Não
Andar:
Madeira
Níveis:
Dois
Características Adicionais
Subtipo de Imóvel:
Moradia
Estilo:
N/D
Ano de Construção:
2006
Tipo de Construção:
Bloco, estuque, quadro
Vagas na Garagem:
Sim
Vagas Cobertas:
N/D
Orientação da Fachada:
Leste
Animais Permitidos:
Não
Condição Especial:
Nenhum
Características Adicionais:
Calçada
Características Adicionais 2:
Verifique com HOA
Mapa
  • Endereço
    6850 SPERONE ST
Fale com um profissional
Por Que Nos Escolher?
  • Comunicação e Transparência
  • Negociação Qualificada
  • Rede Profissional Robusta
  • Suporte Pós-Venda
Propriedades em Destaque

Imóveis relacionados

avt
Daniel Dourado
$ 309,290
img
  • Featured
  • Active
Townhouse

114 E DAVIS BLVD #4

  • 4
  • 4
  • 261 m²
avt
Daniel Dourado
$ 1,495,000
img
  • Featured
  • Active
Townhouse

2429 MAGNOLIA RESERVE RD

  • 3
  • 3
  • 179 m²
avt
Daniel Dourado
$ 379,999
img
  • Featured
  • Active
Townhouse

2433 MAGNOLIA RESERVE RD

  • 3
  • 3
  • 179 m²
avt
Daniel Dourado
$ 384,580
avt
Daniel Dourado
$ 358,485
avt
Daniel Dourado
$ 354,715
img
  • Featured
  • Active
Townhouse

545 VINCINDA CREST WAY

  • 2
  • 3
  • 114 m²
avt
Daniel Dourado
$ 276,500
avt
Daniel Dourado
$ 295,000
avt
Daniel Dourado
$ 238,000
avt
Daniel Dourado
$ 299,000
avt
Daniel Dourado
$ 235,000
img
  • Featured
  • Active
Townhouse

4319 SPINNAKER COVE LN

  • 4
  • 4
  • 235 m²
avt
Daniel Dourado
$ 699,000