Active

$2,199,999

Características:
  • 6 Quartos
  • 7 Banheiros
  • 460 m²
Visão Geral
  • ID: MFRO6316499
  • Quartos: 6
  • Banheiros: 7
  • Tamanho: 460 m²
Detalhes do Imóvel
Observações
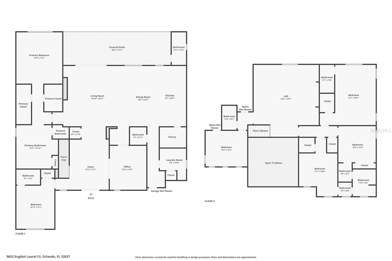
Luxo que vive no coração de Lake Nona-Propriedade aprimorada por designers com atualizações excepcionais Bem-vindo à elegância refinada e conforto diário nesta residência de luxo meticulosamente atualizada, idealmente situada na comunidade fechada e fechada de Laurel Pointe Lake Nona. Com apelo de meio-fio atemporal com uma varanda da frente coberta e uma entrada de duas portas duplas, esta casa abre para um dramático hall de entrada de dois andares com tetos altos de 25 pés, definindo o tom para o layout espaçoso e sofisticado que se desenrola por toda parte. A expansiva sala grande apresenta um teto dividido, vigas de madeira personalizadas e um centro de entretenimento embutido com prateleiras de madeira exótica flutuantes e uma lareira-perfeitamente ancoradas para reuniões ou noites tranquilas. No coração da casa, a cozinha do chef é uma verdadeira peça. Possui uma ilha de quartzo de grandes dimensões, backsplash de pedra natural cortada à mão em um impressionante padrão de espinha de peixe duplo e um conjunto completo de eletrodomésticos de luxo de KitchenAid premium. Armários de madeira sólida com gavetas de cauda e hardware de close suave reflete artesanato excepcional e qualidade atemporal. A cozinha é aprimorada ainda mais por uma espaçosa despensa e uma despensa de mordomo-beliscando beleza com função para a melhor experiência culinária. Uma área de jantar casual brilhante oferece vistas do retiro do quintal, fazendo com que todas as refeições pareçam especiais. A suíte primária privada no nível principal é um verdadeiro santuário, destacado por vigas de madeira personalizadas, uma parede de destaque cinza abafada de designer, armários duplos e um banheiro inspirado em spa com uma grande banheira, chuveiro luxuoso expansivo, vanidades duplas e um armário de água privado. Uma suíte de convidado no térreo oferece flexibilidade e privacidade para os visitantes. No andar de cima, um loft generoso com centro de entretenimento embutido e prateleiras flutuantes de madeira exótica são cercadas por espaçosos quartos secundários-dois com um banho compartilhado e áreas de vaidade separadas, uma com um banheiro de salão e outro com uma suíte com uma porta de celeiro e um banco de janelas. A segunda suíte primária no segundo andar oferece espaço e estilo excepcionais, apresentando uma parede de pedra natural de espinha de penhor de cedro e seu próprio banho privativo-ideal para uma vida multigeracional ou acomodações luxuosas de hóspedes. Living ao ar livre e retiro da piscina Saia para um verdadeiro oásis de estilo resort, projetado para relaxamento e entretenimento. A piscina de água salgada possui um acabamento Pebbletec e é cercado por um elegante deck de pedra cortado em quartzo branco. Uma prateleira de sol cuidadosamente projetada com espreguiçadeiras em pool convida as tardes preguiçosas, enquanto o spa de telha de mosaico de carvão brilhante cria um ponto focal deslumbrante com espaço para uma multidão. O sistema de piscina autolimpante adiciona conveniência sem esforço, complementada por um banho de cabana completo e um lanai coberto com teto de barnboard de cedro e detalhes em parede para maior calor e luxo. Divirta-se com estilo com uma pérgola inspirada no resort, vestida com cortinas esvoaçantes e uma cozinha externa embutida equipada com uma grade de aço inoxidável de ponta, um capô de rampa inoxidável de grandes dimensões e um generoso espaço de preparação. Telas elétricas retráteis e pistas de sol criam uma transição perfeita entre vida interna e externa. Adicional: Placa e Batten Accent Wall no hall de entrada Portas de celeiro de vidro para a sala flexível/escritório Mudroom com zona de queda personalizada Sistema de som embutido na cozinha, sala de família e lanai Persianas de plantações por toda parte Piso de garagem para guardiões com armazenamento aéreo Sistema de amaciador de água Sistema de segurança pré-fio
Considerações Financeiras
Preço:
$2,199,999
Taxa de HOA:
248
Valor do Imposto:
$29434.41
Preço por m²:
$444.09
Descrição Legal do Imposto:
Laurel Pointe Fase 1 107/79 Lote 12
Características Exteriores
Tamanho do Lote:
9815
Características do Lote:
Limites da cidade, paisagística, nível, perto de campo de golfe, perto de transporte público, lote grande, privado, calçada, semestuário de rua, pavimentado
Beira-mar:
Sim
Vagas de Estacionamento:
N/D
Estacionamento:
Gradeira, estação (s) de carregamento de veículos elétricos, abridor de porta de garagem, rostos de garagem lateral, garagem para carrinho de golfe, estacionamento do carrinho de golfe, nível do solo, fora da rua, superdimensionados
Telhado:
Telha
Piscina:
Sim
Características da Piscina:
Limpador de automóvel, livre de cloro, deck, iluminação de fibra óptica, gunite, aquecida, em terra, iluminação, acesso ao banho externo, água salgada, gabinete de tela, auto -limpeza, ladrilho
Características Interiores
Quartos:
6
Banheiros:
7
Aquecimento:
Central, Elétrica
Resfriamento:
Air Central, Zoned, fã do sótão
Eletrodomésticos:
Geladeira de bar, forno de convecção, cozinheira, lava -louças, descarte, secador, aquecedor de água a gás, microondas, capuz de alcance, geladeira, aquecedor de água sem tanques, lavadora, amaciador de água
Mobiliado:
Não
Andar:
Carpete, Azulejo Cerâmico, Epóxi, Vinil Luxo
Níveis:
Dois
Características Adicionais
Subtipo de Imóvel:
Residência Unifamiliar
Estilo:
N/D
Ano de Construção:
2024
Tipo de Construção:
Tipo HardiPlank, Estuque
Vagas na Garagem:
Sim
Vagas Cobertas:
N/D
Orientação da Fachada:
Leste
Animais Permitidos:
Sim
Condição Especial:
Nenhum
Características Adicionais:
Iluminação, grelha ao ar livre, cozinha ao ar livre, caixa de correio privada, calçada, portas deslizantes, aspersores medidos
Características Adicionais 2:
Comprador para verificar todas as restrições de arrendamento com HOA
Mapa
  • Endereço
    9652 ENGLISH LAUREL CT
Fale com um profissional
Por Que Nos Escolher?
  • Comunicação e Transparência
  • Negociação Qualificada
  • Rede Profissional Robusta
  • Suporte Pós-Venda
Propriedades em Destaque

Imóveis relacionados

avt
Daniel Dourado
$ 385,000
avt
Daniel Dourado
$ 960,000
avt
Daniel Dourado
$ 459,900
avt
Daniel Dourado
$ 345,000
avt
Daniel Dourado
$ 439,900
avt
Daniel Dourado
$ 289,000
avt
Daniel Dourado
$ 550,000
avt
Daniel Dourado
$ 599,998
avt
Daniel Dourado
$ 262,500
avt
Daniel Dourado
$ 419,900
avt
Daniel Dourado
$ 511,500