Active

$1,295,000

Características:
  • Quartos
  • 0 Banheiros
  • 0 m²
Visão Geral
  • ID: MFRA4657391
  • Quartos:
  • Banheiros: 0
  • Tamanho: 0 m²
Detalhes do Imóvel
Observações
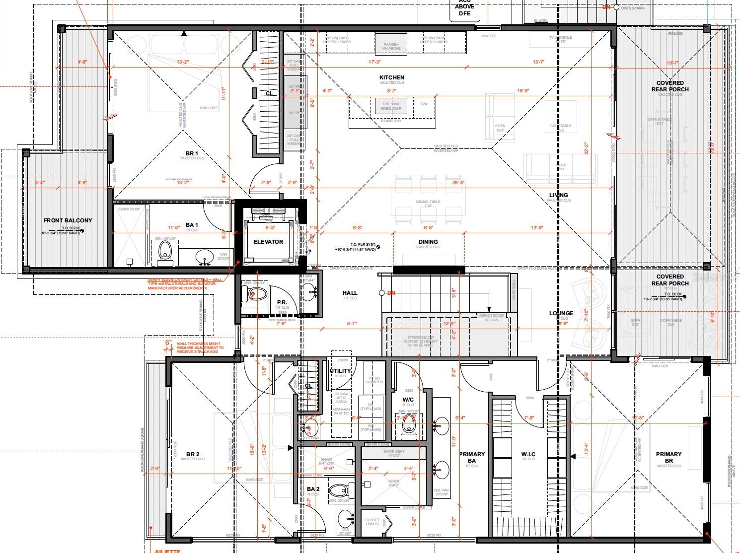
Descubra o potencial excepcional da 640 Lyons Lane, um lote vago perfeitamente situado em uma rua única em North Longboat Key, com casas apenas de um lado e áreas úmidas protegidas do outro. Esta propriedade inclui planos permitidos para uma impressionante casa de três quartos, três e meio-batiz, oferecendo uma excelente oportunidade para construir a residência dos seus sonhos na procurada Key Longboat. Os planos existentes mostram um layout bem projetado, apresentando uma espaçosa suíte primária com vistas amplas sobre o canal tranquilo. Para aqueles que buscam espaço adicional, os planos podem ser atualizados para adicionar outro nível, aprimorando ainda mais o valor e a área de estar da propriedade. Desfrute de vistas de água de tirar o fôlego da frente e da traseira da propriedade, criando um ambiente de vida sereno e pitoresco. Além de seu fascínio, a propriedade inclui uma piscina recém -instalada e uma doca de barco conveniente com um elevador de 10.000 lb, todos integrados perfeitamente ao novo design planejado, perfeito para abraçar o estilo de vida de barco da Flórida. Desfrute de acesso direto às baías de Millar e Sarasota, sem pontes fixas ao Golfo, oferecendo conveniência incomparável para os entusiastas da barco. Esta listagem é apenas para o lote e não inclui o custo da construção. No entanto, os planos permitidos, pesquisas e outra documentação essencial estão incluídos. Os compradores têm a flexibilidade de começar de novo com novos planos, se desejar. O preço está disponível para os planos permitidos existentes do contratado, mas o comprador é livre para escolher qualquer construtor para a construção. Esteja você procurando criar uma residência permanente ou um refúgio de férias de luxo, a 640 Lyons Lane oferece a tela ideal. Não perca esta oportunidade de possuir um pedaço do paraíso em Longboat Key, com proximidade com praias intocadas, campos de golfe e refeições requintadas.
Considerações Financeiras
Preço:
$1,295,000
Taxa de HOA:
N/D
Valor do Imposto:
$14172
Preço por m²:
$130.54
Descrição Legal do Imposto:
Lote 13 Sleepy Lagoon Park No 2 PI#78636.0000/8
Características Exteriores
Tamanho do Lote:
9920
Características do Lote:
N/D
Beira-mar:
Sim
Vagas de Estacionamento:
N/D
Estacionamento:
N/D
Telhado:
N/D
Piscina:
Não
Características da Piscina:
N/D
Características Interiores
Quartos:
Banheiros:
0
Aquecimento:
N/D
Resfriamento:
N/D
Eletrodomésticos:
N/D
Mobiliado:
Não
Andar:
N/D
Níveis:
N/D
Características Adicionais
Subtipo de Imóvel:
N/D
Estilo:
N/D
Ano de Construção:
N/D
Tipo de Construção:
N/D
Vagas na Garagem:
Não
Vagas Cobertas:
N/D
Orientação da Fachada:
Norte
Animais Permitidos:
Não
Condição Especial:
Nenhum
Características Adicionais:
N/D
Características Adicionais 2:
N/D
Mapa
  • Endereço
    640 LYONS LN
Fale com um profissional
Por Que Nos Escolher?
  • Comunicação e Transparência
  • Negociação Qualificada
  • Rede Profissional Robusta
  • Suporte Pós-Venda
Propriedades em Destaque

Imóveis relacionados

avt
Daniel Dourado
$ 1,800,000
img
  • Featured
  • Active

3555 62ND ST E

  • 0
  • 0 m²
avt
Daniel Dourado
$ 294,000
img
  • Featured
  • Active

1004 E CHELSEA ST

  • 0
  • 0 m²
avt
Daniel Dourado
$ 499,998
img
  • Featured
  • Active

10611 SUMNER RD

  • 0
  • 0 m²
avt
Daniel Dourado
$ 875,000
avt
Daniel Dourado
$ 249,900
img
  • Featured
  • Active

3813 3825 BAL HARBOR BLVD

  • 0
  • 0 m²
avt
Daniel Dourado
$ 299,900
img
  • Featured
  • Active

0000 SW 202 ST

  • 0
  • 0 m²
avt
Daniel Dourado
$ 675,000
img
  • Featured
  • Active

1828 MOORINGS CT

  • 0
  • 0 m²
avt
Daniel Dourado
$ 295,000
img
  • Featured
  • Active

200 STILLWATER DR

  • 0
  • 0 m²
avt
Daniel Dourado
$ 325,000
img
  • Featured
  • Active

4550 HIGHWAY 524

  • 0
  • 0 m²
avt
Daniel Dourado
$ 289,500
img
  • Featured
  • Active

537 N POLLARD

  • 0
  • 0 m²
avt
Daniel Dourado
$ 895,000
avt
Daniel Dourado
$ 2,200,000