Active

$415,000

Características:
  • 5 Quartos
  • 3 Banheiros
  • 264 m²
Visão Geral
  • ID: MFRV4945303
  • Quartos: 5
  • Banheiros: 3
  • Tamanho: 264 m²
Detalhes do Imóvel
Observações
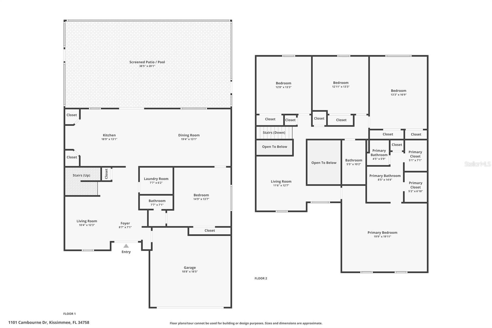
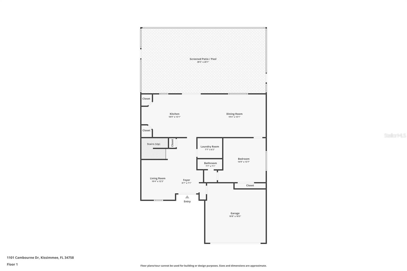
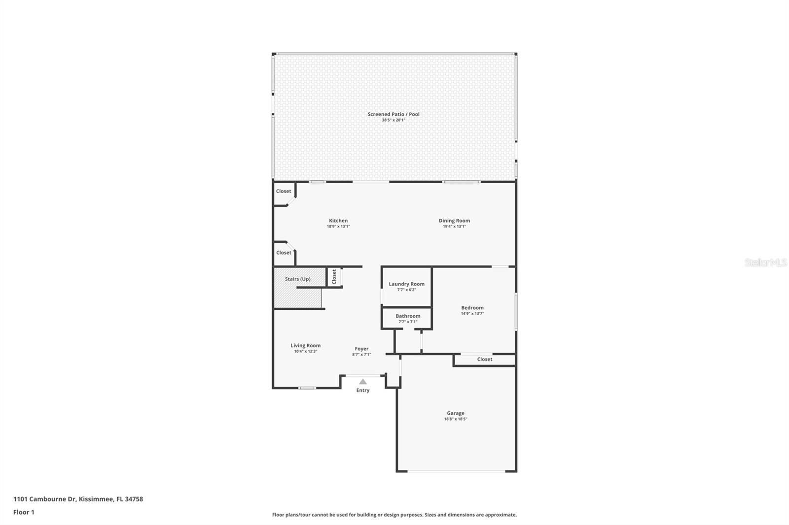
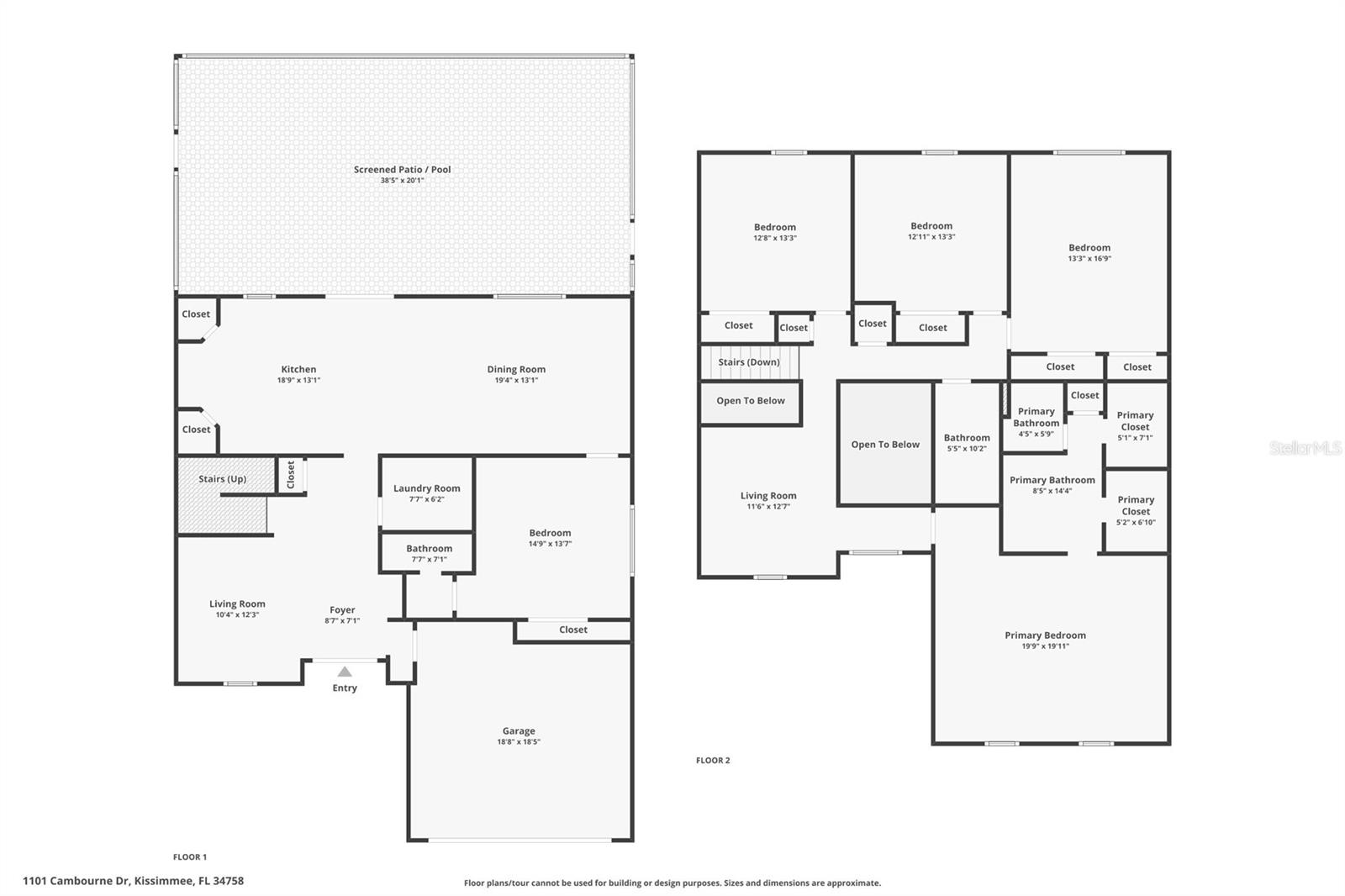
Uma ou mais fotos foram virtualmente encenadas. Descubra a sua nova casa! Localizada nos procurados Villages at Poinciana, esta residência de dois andares fica em um terreno de esquina de tamanho generoso e totalmente cercado de vinil, oferecendo muito espaço ao ar livre, incluindo uma piscina privativa com tela e um pátio estendido perfeito para relaxar ou receber amigos. Entre para encontrar pintura fresca e carpete novo, criando uma atmosfera acolhedora desde o início. No interior, um hall de entrada bem iluminado leva você a uma sala de jantar formal e a uma suíte de hóspedes versátil com banheiro completo - ideal para visitantes que pernoitam ou familiares. A sala familiar aberta flui perfeitamente para a área de jantar e cozinha bem equipada, com balcões de superfície sólida, eletrodomésticos de aço inoxidável, amplos armários e despensas espaçosas. No andar de cima, desfrute de um amplo loft para noites de cinema ou área de recreação, três quartos confortáveis, além de uma espaçosa suíte do proprietário completa com espaço para um recanto de leitura ou escrivaninha. O banheiro principal inclui closet, pia dupla, chuveiro independente e banheira de jardim relaxante. Aproveite o ar livre o ano todo com uma varanda coberta e uma piscina protegida a poucos passos da sua porta dos fundos. Pisos de madeira, construção de blocos no térreo, telhado de telha e sistema de ar-condicionado dividido acrescentam conforto e durabilidade. Comodidades próximas: parques, quadras esportivas, playgrounds, piscinas comunitárias, salões de festas para eventos, academias de ginástica e diversos parques recreativos. Em poucos minutos, encontre shopping centers, novos restaurantes e principais vias expressas para acesso rápido aos resorts e atrações da área de Orlando, como Walt Disney World, Universal Orlando e SeaWorld. Os parques locais oferecem trilhas para caminhada, áreas de piquenique, quadras de tênis, pickleball, vôlei, quadras de basquete e parques dedicados para cães para donos de animais de estimação. Eventos comunitários são realizados regularmente, juntamente com fácil acesso a escolas que atendem todos os níveis de ensino. Esta é uma rara oportunidade de possuir um dos maiores lotes do Village 2, combinando privacidade, atualizações modernas e acesso imbatível a tudo o que Poinciana oferece. Agende seu passeio hoje e veja por si mesmo o que torna esta casa e bairro tão especiais.
Considerações Financeiras
Preço:
$415,000
Taxa de HOA:
90
Valor do Imposto:
$5494.28
Preço por m²:
$145.92
Descrição Legal do Imposto:
POINCIANA V 2 NBD 1 PB 3 PG 75 BLK 580 LOTE 1 34/26/28
Características Exteriores
Tamanho do Lote:
15638
Características do Lote:
N/D
Beira-mar:
Não
Vagas de Estacionamento:
N/D
Estacionamento:
N/D
Telhado:
Telha
Piscina:
Sim
Características da Piscina:
No chão
Características Interiores
Quartos:
5
Banheiros:
3
Aquecimento:
Central
Resfriamento:
Central Aérea
Eletrodomésticos:
Microondas, Fogão, Geladeira
Mobiliado:
Não
Andar:
Carpete, Azulejo Cerâmico, Outro, Madeira
Níveis:
Dois
Características Adicionais
Subtipo de Imóvel:
Residência Unifamiliar
Estilo:
N/D
Ano de Construção:
2003
Tipo de Construção:
Bloquear
Vagas na Garagem:
Sim
Vagas Cobertas:
N/D
Orientação da Fachada:
Leste
Animais Permitidos:
Não
Condição Especial:
Nenhum
Características Adicionais:
Outro
Características Adicionais 2:
Verifique com HOA
Mapa
  • Endereço
    1101 CAMBOURNE DR
Fale com um profissional
Por Que Nos Escolher?
  • Comunicação e Transparência
  • Negociação Qualificada
  • Rede Profissional Robusta
  • Suporte Pós-Venda
Propriedades em Destaque

Imóveis relacionados

avt
Daniel Dourado
$ 340,000
avt
Daniel Dourado
$ 350,000
avt
Daniel Dourado
$ 264,000
avt
Daniel Dourado
$ 327,385
avt
Daniel Dourado
$ 635,000
avt
Daniel Dourado
$ 535,000
avt
Daniel Dourado
$ 717,000
avt
Daniel Dourado
$ 660,000