Active

$750,000

Características:
  • Quartos
  • 0 Banheiros
  • 557 m²
Visão Geral
  • ID: MFRW7865085
  • Quartos:
  • Banheiros: 0
  • Tamanho: 557 m²
Detalhes do Imóvel
Observações
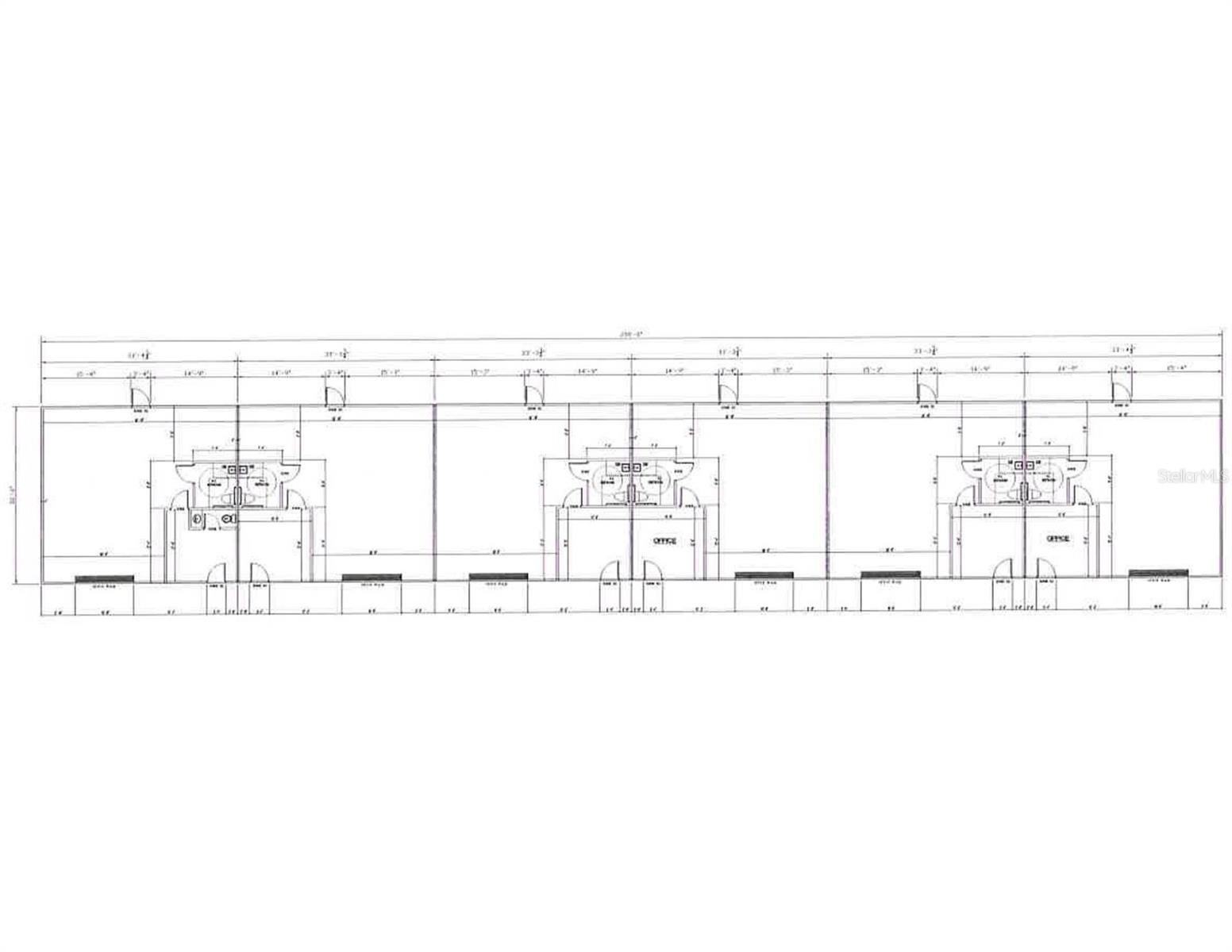
Pré-Construção. A ser construído. A ser construído. Este é um edifício de metal de alta demanda que oferece a oportunidade de renda de 6 inquilinos ou talvez seja um ocupante proprietário se for adequado a você. Oferece unidades de 6/1000 pés quadrados com um escritório de 100 pés quadrados com banheiro em cada um. Todo o trabalho foi feito para você. A engenharia civil, planos, permitir, suprimentos de construção, portas, isolamento, suprimentos elétricos e até sua caixa de correio. O lote está limpo e pronto para ir. A única despesa adicional é contratar um contratado, que o proprietário é um contratado licenciado, e podemos providenciar que ele construa se você escolher.
Considerações Financeiras
Preço:
$750,000
Taxa de HOA:
N/D
Valor do Imposto:
$1210.94
Preço por m²:
$125
Descrição Legal do Imposto:
SUNRISE ACRES UNREC PLAT COM SW COR TH N00DG 55' 47"E 702.94 FT FOR POB TH CONT N00 DG 55' 47"E 315.25 FT TH S89 DG 58' 49"E 179.09 FT TH S00DG 55' 47"W 320.63 FT TH N88DG 15' 31"W 179.09 FT TO POB EX[...]
Características Exteriores
Tamanho do Lote:
47480
Características do Lote:
Lote de esquina
Beira-mar:
Não
Vagas de Estacionamento:
N/D
Estacionamento:
Vagas de Estacionamento - 13 a 18, Comuns
Telhado:
Metal
Piscina:
Não
Características da Piscina:
N/D
Características Interiores
Quartos:
Banheiros:
0
Aquecimento:
N/D
Resfriamento:
Central Aérea
Eletrodomésticos:
N/D
Mobiliado:
Não
Andar:
N/D
Níveis:
N/D
Características Adicionais
Subtipo de Imóvel:
Uso Misto
Estilo:
N/D
Ano de Construção:
2024
Tipo de Construção:
Estrutura metálica
Vagas na Garagem:
Não
Vagas Cobertas:
N/D
Orientação da Fachada:
N/D
Animais Permitidos:
Não
Condição Especial:
Nenhum
Características Adicionais:
N/D
Características Adicionais 2:
N/D
Mapa
  • Endereço
    14150 HICKS RD
Fale com um profissional
Por Que Nos Escolher?
  • Comunicação e Transparência
  • Negociação Qualificada
  • Rede Profissional Robusta
  • Suporte Pós-Venda
Propriedades em Destaque

Imóveis relacionados

avt
Daniel Dourado
$ 1,399,500
avt
Daniel Dourado
$ 1,600,000
avt
Daniel Dourado
$ 299,000
img
  • Featured
  • Active
Mixed Use

7075 KINGSPOINTE PKWY #9

  • 0
  • 1237 m²
avt
Daniel Dourado
$ 3,650,000
avt
Daniel Dourado
$ 1,800,000
avt
Daniel Dourado
$ 530,000
avt
Daniel Dourado
$ 1,199,000
img
  • Featured
  • Active
Mixed Use

Calle 28 URB. MIRAFLORES

  • 0
  • 2118 m²
avt
Daniel Dourado
$ 950,000
avt
Daniel Dourado
$ 649,000
img
  • Featured
  • Active
Mixed Use

PR-172 KM 7.5 HACIENDA EL REMANSO, CAÑABONCITO WARD

  • 0
  • 0 m²
avt
Daniel Dourado
$ 1,600,000
avt
Daniel Dourado
$ 1,150,000
avt
Daniel Dourado
$ 2,490,000