Active

$375,000

Características:
  • 2 Quartos
  • 2 Banheiros
  • 171 m²
Visão Geral
  • ID: MFRFC313293
  • Quartos: 2
  • Banheiros: 2
  • Tamanho: 171 m²
Detalhes do Imóvel
Observações
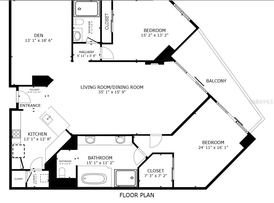
Se você sonha em acordar com vistas cintilantes do rio/oceano e viver o verdadeiro estilo de vida de um condomínio na Flórida, este é o lugar certo. Localizada em Marina Grande, em Halifax, esta espaçosa residência à beira-rio oferece a combinação perfeita de sofisticação e conforto. A partir do momento em que você entra, você será atraído pelas vistas panorâmicas do rio Halifax e do Oceano Atlântico a partir da sala de estar, dos quartos e da varanda ampla, ideal para o café da manhã ou o pôr do sol à noite. O layout aberto inclui um escritório que pode facilmente servir como escritório doméstico, sala de mídia ou espaço aconchegante para hóspedes. Cada detalhe desta casa foi projetado para estilo e função. Você vai adorar o piso de cerâmica atualizado com aparência de madeira, os armários personalizados e a moderna lareira elétrica que adiciona calor e personalidade. A cozinha é um destaque com bancadas de quartzo, armários de madeira ricos e eletrodomésticos de aço inoxidável - perfeitos para cozinhar ou se divertir. A suíte principal parece um retiro com acesso à varanda privativa, pia dupla, box amplo e banheira de hidromassagem relaxante. Morar em Marina Grande, no Halifax, significa que você terá acesso a ótimas comodidades que farão com que todos os dias pareçam férias em um resort: entrada vigiada, duas piscinas à beira-rio, academia de ginástica com estúdios de ioga e dança, cinema, salão de bilhar, biblioteca e muito mais. Aproveite o melhor dos dois mundos, uma vida tranquila à beira-rio com fácil acesso aos restaurantes, entretenimento e praias arenosas de Daytona Beach. Venha experimentar como é realmente viver em um condomínio de luxo perto da água em Marina Grande, em Halifax. **Todas as informações registradas no MLS pretendem ser precisas, mas não podem ser garantidas. **Algumas das imagens são virtualmente encenadas.
Considerações Financeiras
Preço:
$375,000
Taxa de HOA:
1250
Valor do Imposto:
$4845
Preço por m²:
$203.47
Descrição Legal do Imposto:
UNIDADE 1703 BLDG 1 MARINA GRANDE NO CONDOMÍNIO HALIFAX I PER OR 6136 PG 4670 PER OU 6565 PG 1430 PER OU 6587 PG 1314 PER OU 7417 PG 4446 PER OU 7841 PG 3980 PER OU 8069 PG 2419 PER OU 8446 PG 2199
Características Exteriores
Tamanho do Lote:
122171
Características do Lote:
N/D
Beira-mar:
Não
Vagas de Estacionamento:
N/D
Estacionamento:
Atribuído, Convidado
Telhado:
Outro
Piscina:
Não
Características da Piscina:
N/D
Características Interiores
Quartos:
2
Banheiros:
2
Aquecimento:
Central, Elétrica
Resfriamento:
Central Aérea
Eletrodomésticos:
Forno Embutido, Cooktop, Lava Louça, Descarte, Secadora, Microondas, Geladeira, Lavadora
Mobiliado:
Sim
Andar:
Tapete, Azulejo Cerâmico
Níveis:
Três ou mais
Características Adicionais
Subtipo de Imóvel:
Condomínio
Estilo:
N/D
Ano de Construção:
2007
Tipo de Construção:
Bloquear
Vagas na Garagem:
Sim
Vagas Cobertas:
N/D
Orientação da Fachada:
Sudeste
Animais Permitidos:
Não
Condição Especial:
Nenhum
Características Adicionais:
Sacada
Características Adicionais 2:
Consulte as regras da comunidade para restrições
Mapa
  • Endereço
    231 RIVERSIDE DR #1703
Fale com um profissional
Por Que Nos Escolher?
  • Comunicação e Transparência
  • Negociação Qualificada
  • Rede Profissional Robusta
  • Suporte Pós-Venda
Propriedades em Destaque

Imóveis relacionados

img
  • Featured
  • Active
Condominium

5740 MIDNIGHT PASS RD #104F

  • 2
  • 2
  • 134 m²
avt
Daniel Dourado
$ 1,399,000
avt
Daniel Dourado
$ 549,900
avt
Daniel Dourado
$ 725,000
avt
Daniel Dourado
$ 874,990
avt
Daniel Dourado
$ 1,200,000
img
  • Featured
  • Active
Condominium

111 S PINEAPPLE AVE #1205

  • 3
  • 4
  • 230 m²
avt
Daniel Dourado
$ 2,695,000
img
  • Featured
  • Active
Condominium

5420 EAGLES POINT CIR #304

  • 2
  • 2
  • 123 m²
avt
Daniel Dourado
$ 525,000
img
  • Featured
  • Active
Condominium

5701 BAHIA DEL MAR CIR #302

  • 2
  • 2
  • 100 m²
avt
Daniel Dourado
$ 539,900
avt
Daniel Dourado
$ 259,000
avt
Daniel Dourado
$ 2,150,000
avt
Daniel Dourado
$ 205,000
avt
Daniel Dourado
$ 1,375,000